Bildegalleri

Eiendomsmegler Norge v/ Johan R. Elieson har gleden av å ønske velkommen til visning av Soleieveien 59!
Justneshalvøya
Strøken, nyere selveierleilighet over to etasjer med solrike uteområder og fantastisk utsikt! 2 garasjeplasser medfølger
Prisantydning6 290 000 kr
Nøkkelinfo
- Boligtype
- Leilighet
- Eieform
- Eier (Selveier)
- Soverom
- 3
- Internt bruksareal
- 122 m² (BRA-i)
- Bruksareal
- 130 m²
- Eksternt bruksareal
- 8 m² (BRA-e)
- Balkong/Terrasse
- 33 m² (TBA)
- Etasje
- 2
- Byggeår
- 2020
- Energimerking
- B - Rød
- Rom
- 5
- Tomteareal
- 701 m² (eiet)
Fasiliteter
Balkong/Terrasse
Barnevennlig
Garasje/P-plass
Heis
Kjæledyr tillatt
Peis/Ildsted
Rolig
Utsikt
Turterreng
Lademulighet
Balansert ventilasjon
Om boligen
Velkommen til visning av Soleieveien 59!
Leiligheten holder en gjennomgående god standard og er betydelig oppgradert fra standard leveranse.
Leiligheten går over to etasjer og inneholder følgende:
2. etasje: Gang, stue/ kjøkken, baderom og tre soverom. Utgang til terrasse fra kjøkken.
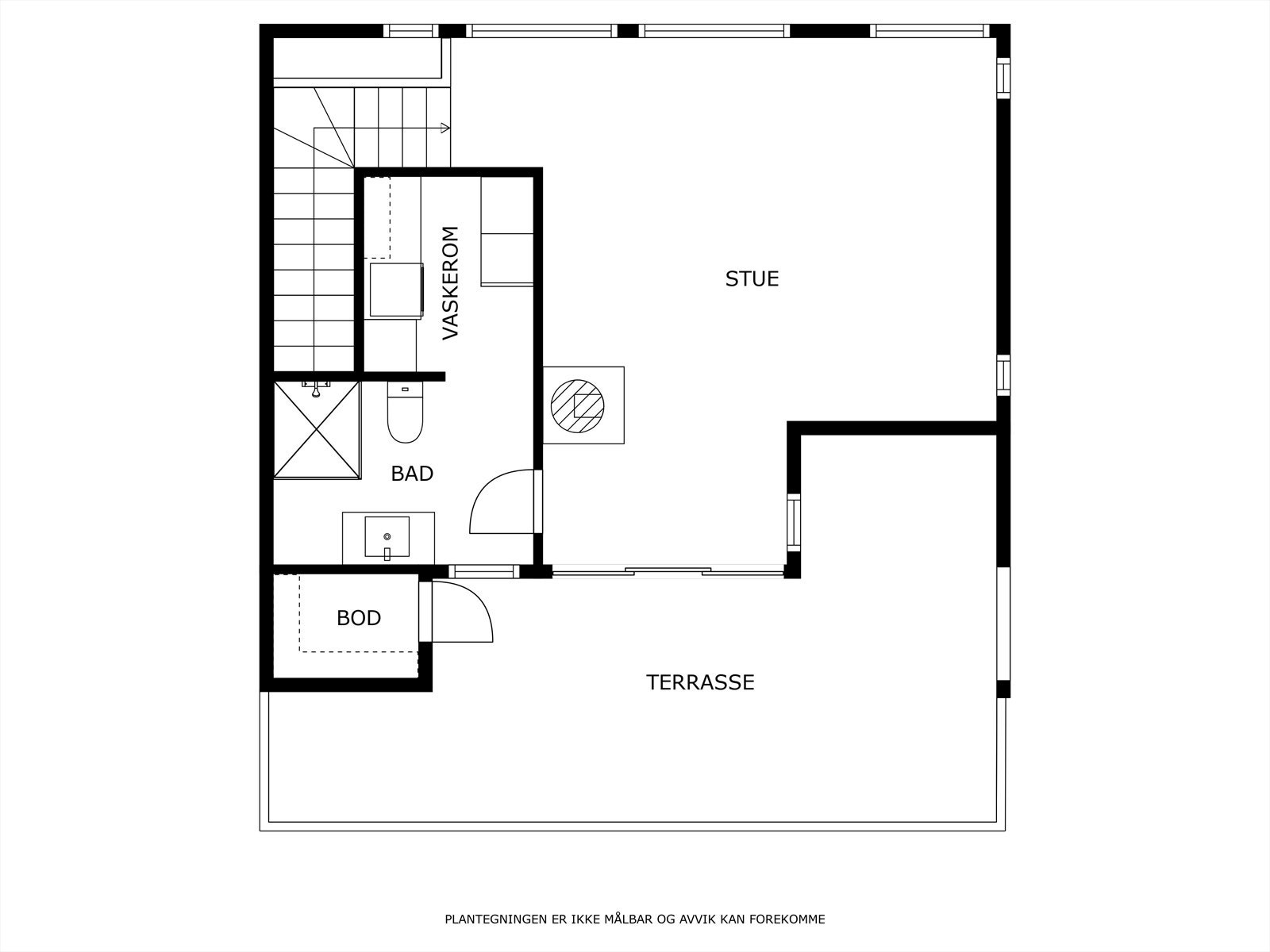
3. etasje: Stue og baderom/ vaskerom. Utgang til solrik terrasse samt utvendig bod.
Det medfølger to parkeringsplasser (en med el.lader), samt bod i garasjekjeller.
Barnevennlig og attraktiv beliggenhet på solrik tomt på Justneshalvøya, kun ca. 8 km. fra Kristiansand sentrum. Kort vei til UiA, dagligvareforretning på Fagerholt, bussholdeplass, barnehage, barneskole og ungdomsskole. I nærområdet finner man også gode bademuligheter i sjø og ferskvann, samt et av byens flotteste turterreng i Jegersberg.
Leiligheten holder en gjennomgående god standard og er betydelig oppgradert fra standard leveranse.
Leiligheten går over to etasjer og inneholder følgende:
2. etasje: Gang, stue/ kjøkken, baderom og tre soverom. Utgang til terrasse fra kjøkken.
3. etasje: Stue og baderom/ vaskerom. Utgang til solrik terrasse samt utvendig bod.
Det medfølger to parkeringsplasser (en med el.lader), samt bod i garasjekjeller.
Barnevennlig og attraktiv beliggenhet på solrik tomt på Justneshalvøya, kun ca. 8 km. fra Kristiansand sentrum. Kort vei til UiA, dagligvareforretning på Fagerholt, bussholdeplass, barnehage, barneskole og ungdomsskole. I nærområdet finner man også gode bademuligheter i sjø og ferskvann, samt et av byens flotteste turterreng i Jegersberg.
NB: Knappen for å vise hele beskrivelsen har kun en visuell effekt.
NB: Knappen for å vise hele beskrivelsen har kun en visuell effekt.
Salgsoppgaven beskriver vesentlig og lovpålagt informasjon om eiendommen
Se komplett salgsoppgaveNyttige lenker
Nærområdet
Eiendomsmegler Norge Kristiansand
Best der du bor
Annonseinformasjon
| FINN-kode | 422888077 |
|---|---|
| Sist endret | 16. jan. 2026 14:22 |
| Referanse | 50250096 |
Annonsene kan være mangelfulle i forhold til lovpålagt opplysningsplikt. Før bindende avtale inngås oppfordres interessenter til å innhente komplett informasjon fra meglerforetaket, selger eller utleier.















































