Bildegalleri

EIE Jessheim v/Christian Brodshaug presenterer Normann Hjelles veg 25!
Solgt
NY PRIS! Familiebolig med stor terrasse | Integrert garasje | 3 soverom, kontor, 2 bad, vaskerom
Prisantydning4 790 000 kr
Nøkkelinfo
- Boligtype
- Tomannsbolig
- Eieform
- Eier (Selveier)
- Soverom
- 3
- Internt bruksareal
- 156 m² (BRA-i)
- Bruksareal
- 156 m²
- Byggeår
- 2023
- Energimerking
- B - Rød
- Tomteareal
- 210 m² (eiet)
Fasiliteter
Barnevennlig
Balkong/Terrasse
Garasje/P-plass
Peis/Ildsted
Moderne
Rolig
Balansert ventilasjon
Om boligen
EIE Jessheim v/Brodshaug presenterer Normann Hjelles veg 25 - en ny tomannsbolig ferdig bygd i 2023 med god standard og gode løsninger. Boligen ligger i en blindvei i barnevennlig område på Dal, samt gangavstand til Dal stasjon.
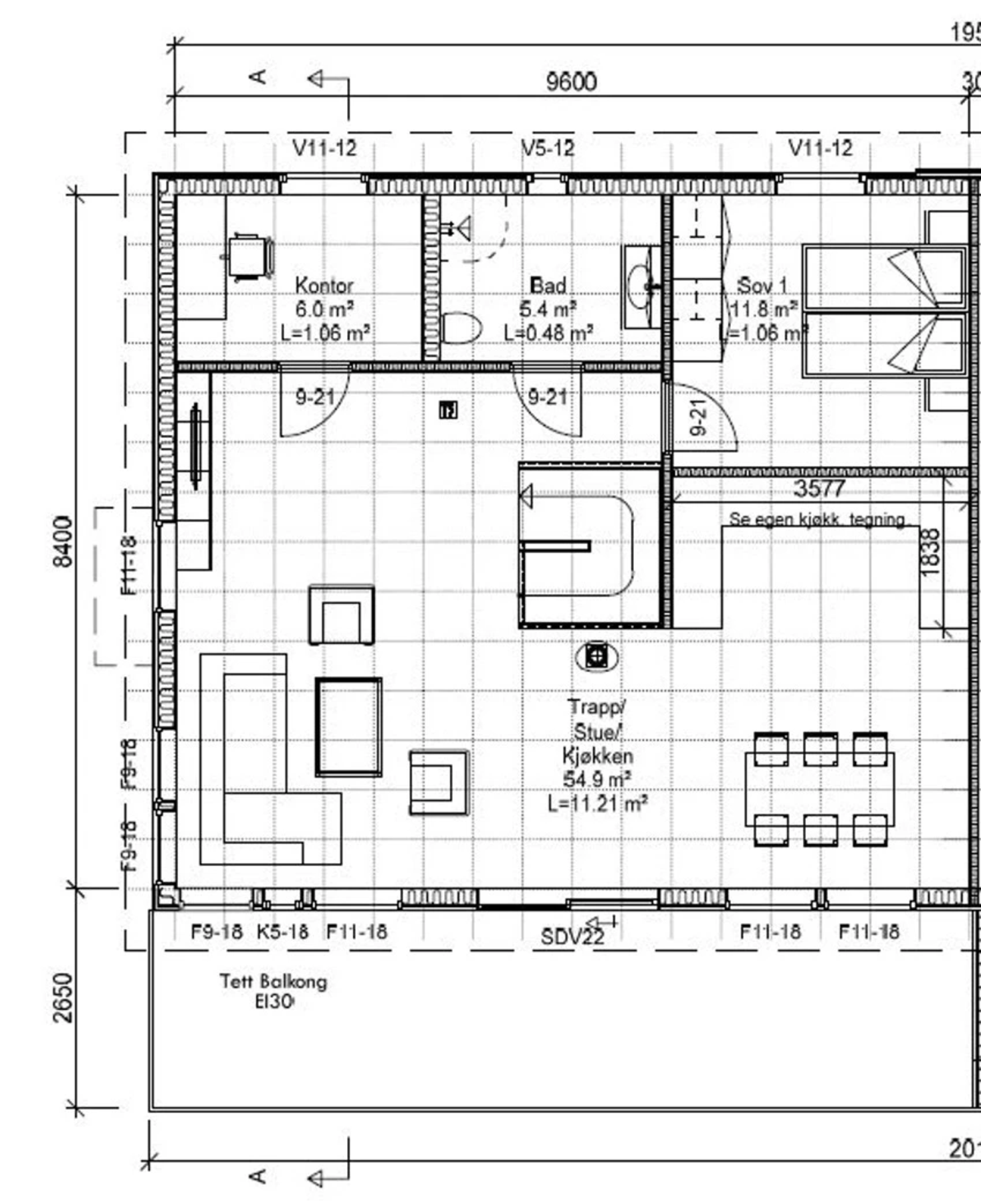
Boligen byr på en smart planløsning og godt utnyttet areal. 1.etasje har adkomst via inngangsdør eller den integrerte garasjen. Fra garasjeinngangen kommer man rett inn i teknisk/vaskerom, som også egner seg som gang. Ellers i etasjen finnes 2 gode soverom, ett moderne bad og en romslig entré.
2. etasje innehar en god stue/kjøkken løsning med romslig stueplass mot en åpen kjøkkenløsning i egen del av rommet. Samt soverom, kontor og bad her også. Utgang til fin terrasse fra stuen.
Det er ytterligere parkeringsplass på gårdsplassen.
Boligen byr på en smart planløsning og godt utnyttet areal. 1.etasje har adkomst via inngangsdør eller den integrerte garasjen. Fra garasjeinngangen kommer man rett inn i teknisk/vaskerom, som også egner seg som gang. Ellers i etasjen finnes 2 gode soverom, ett moderne bad og en romslig entré.
2. etasje innehar en god stue/kjøkken løsning med romslig stueplass mot en åpen kjøkkenløsning i egen del av rommet. Samt soverom, kontor og bad her også. Utgang til fin terrasse fra stuen.
Det er ytterligere parkeringsplass på gårdsplassen.
NB: Knappen for å vise hele beskrivelsen har kun en visuell effekt.
NB: Knappen for å vise hele beskrivelsen har kun en visuell effekt.
Salgsoppgaven beskriver vesentlig og lovpålagt informasjon om eiendommen
Se komplett salgsoppgaveNyttige lenker
Nærområdet
EIE eiendomsmegling Jessheim
Annonseinformasjon
| FINN-kode | 422746887 |
|---|---|
| Sist endret | 10. feb. 2026 15:13 |
| Referanse | 20251320 |
Annonsene kan være mangelfulle i forhold til lovpålagt opplysningsplikt. Før bindende avtale inngås oppfordres interessenter til å innhente komplett informasjon fra meglerforetaket, selger eller utleier.






































