Bildegalleri

Vollgata 30 og 32 er en svært innholdsrik eiendom presentert av Tegneby og Grønnerød Landbruksmegling
Landlig og unik eiendom med 2 bolighus - Bolig fra 2022 - Ny garasje - Kort vei til Hønefoss og Sandvika!
Prisantydning14 900 000 kr
Nøkkelinfo
- Boligtype
- Gårdsbruk/Småbruk
- Eieform
- Eier (Selveier)
- Soverom
- 3
- Internt bruksareal
- 403 m² (BRA-i)
- Bruksareal
- 481 m²
- Eksternt bruksareal
- 36 m² (BRA-e)
- Innglasset balkong
- 42 m² (BRA-b)
- Balkong/Terrasse
- 92 m² (TBA)
- Etasje
- 2
- Byggeår
- 2022
- Energimerking
- B - Oransje
- Tomteareal
- 6 031 m² (eiet)
Om boligen
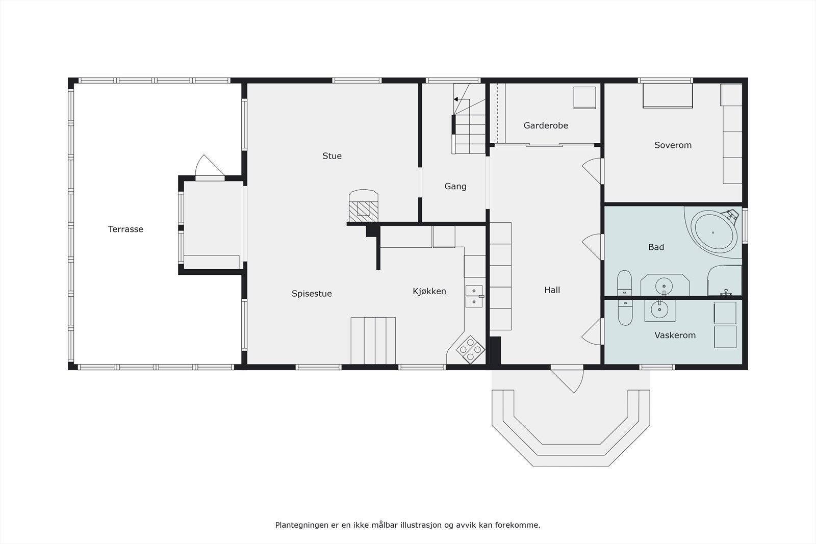
Vollgata 30 og 32 - Her bor du landlig, men med korte avstander til både sentrum av Hønefoss og Sandvika. En unik eiendom med to bolighus, uthus/anneks med høy standard, ny garasje fra 2025 og et verksted/garasje med gode lagringsmuligheter. Eiendommen har fin beliggenhet med korte avstander til skole, barnehage og alt som trengs i hverdagen!
Det første bolighuset er svært innbydende fra 2022 med moderne løsninger og lekre materialvalg. Boligen byr blant annet på fire soverom, to bad og innglasset uteplass. Det andre huset er fra 1939, byr på 191 kvm bruksareal og 2 soverom i andre etasje.
Begge boligene har utgang til eget hageområde, og ligger med det litt skjermet fra hverandre. Innholdsrik eiendom med stort potensiale for gode utleiemuligheter som må oppleves. Velkommen på visning!
Det første bolighuset er svært innbydende fra 2022 med moderne løsninger og lekre materialvalg. Boligen byr blant annet på fire soverom, to bad og innglasset uteplass. Det andre huset er fra 1939, byr på 191 kvm bruksareal og 2 soverom i andre etasje.
Begge boligene har utgang til eget hageområde, og ligger med det litt skjermet fra hverandre. Innholdsrik eiendom med stort potensiale for gode utleiemuligheter som må oppleves. Velkommen på visning!
NB: Knappen for å vise hele beskrivelsen har kun en visuell effekt.
NB: Knappen for å vise hele beskrivelsen har kun en visuell effekt.
Salgsoppgaven beskriver vesentlig og lovpålagt informasjon om eiendommen
Se komplett salgsoppgaveNyttige lenker
Nærområdet

TEGNEBY & GRØNNERØD LANDBRUKSMEGLING AS
Velkommen til oss
Annonseinformasjon
| FINN-kode | 422644884 |
|---|---|
| Sist endret | 21. nov. 2025 13:10 |
| Referanse | GAR30.2557 |
Annonsene kan være mangelfulle i forhold til lovpålagt opplysningsplikt. Før bindende avtale inngås oppfordres interessenter til å innhente komplett informasjon fra meglerforetaket, selger eller utleier.














































