Bildegalleri

Velkommen til Heggedalsveien 240B! Foto: Digit Media AS
Oppgradert og velholdt bolig - Romslig stue med god takhøyde - Garasje - Bad fra 2023 - Nærhet til buss, tog og marka.
Nøkkelinfo
- Boligtype
- Enebolig
- Eieform
- Eier (Selveier)
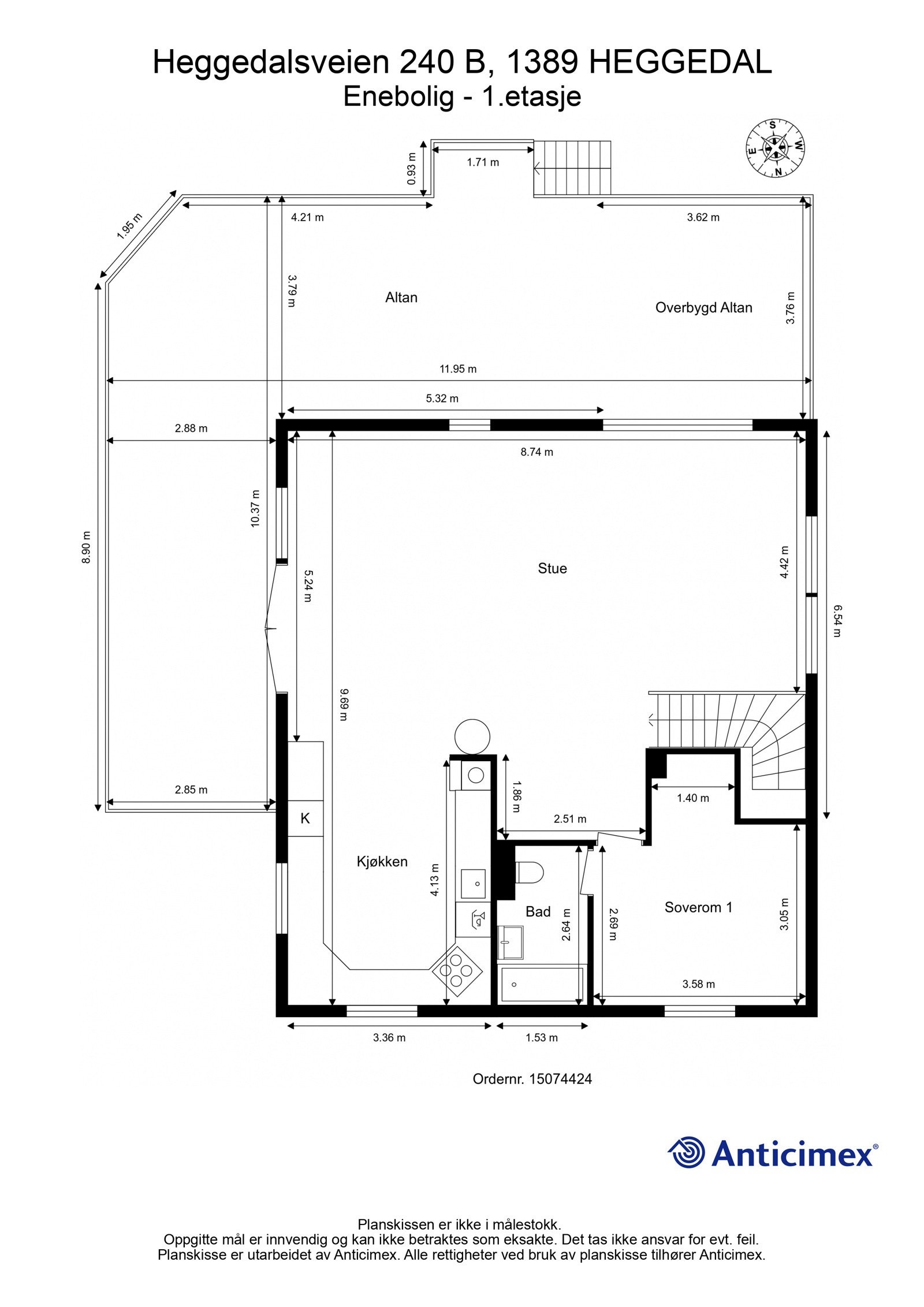
- Soverom
- 3
- Internt bruksareal
- 166 m² (BRA-i)
- Bruksareal
- 208 m²
- Eksternt bruksareal
- 42 m² (BRA-e)
- Balkong/Terrasse
- 65 m² (TBA)
- Byggeår
- 1985
- Energimerking
- E - Oransje
- Tomteareal
- 1 031 m² (eiet)
Fasiliteter
Visning
Om boligen
Koselig beliggenhet i veletablert og meget barnevennlig boligområde mellom Heggedal og Solberg. Her bor du tilbaketrukket i landlige omgivelser, men er likevel i Asker sentrum på 10 minutter!
Det er svært gode solforhold på eiendommen. På sommerstid har området flere vann med bademuligheter, opparbeidet sandvolleybane og varierte turmuligheter. Vinterstid er det enkel tilgang til flere langrennsløyper, lysløype og turskøytebane.
- De fleste vinduer ble byttet i 2021
- Varmepumpe med 2 innedeler fra 2020
- Innhold i sikringsskapet ble skiftet i 2020
- Bad i 1. etasje fra 2020
- Balansert ventilasjon fra 2020
- De fleste rom er malt/tapetsert etter 2020 (himling i stue i 2024)
- Kjøkken med granitt steinplate fra 2005
- Integrert kjøleskap, oppvaskmaskin, stekeovn og koketopp
- Peisovn fra 2006
Salgsoppgaven beskriver vesentlig og lovpålagt informasjon om eiendommen
Se komplett salgsoppgaveNyttige lenker
Nærområdet

FREM EIENDOMSMEGLING
Annonsene kan være mangelfulle i forhold til lovpålagt opplysningsplikt. Før bindende avtale inngås oppfordres interessenter til å innhente komplett informasjon fra meglerforetaket, selger eller utleier.





















































