Bildegalleri

Leie ut til Google? Hel tomannsbolig og innredet hybel - Meget solid utleieobjekt - Sentralt!
Prisantydning4 990 000 kr
Nøkkelinfo
- Boligtype
- Tomannsbolig
- Eieform
- Selveier
- Soverom
- 5
- Internt bruksareal
- 211 m² (BRA-i)
- Bruksareal
- 366 m²
- Eksternt bruksareal
- 155 m² (BRA-e)
- Balkong/Terrasse
- 9 m² (TBA)
- Byggeår
- 1900
- Energimerking
- G - Rød
- Tomteareal
- 410 m² (eiet)
Fasiliteter
Barnevennlig
Balkong/Terrasse
Garasje/P-plass
Kabel-TV
Offentlig vann/kloakk
Sentralt
Bredbåndstilknytning
Om boligen
PrivatMegleren har gleden av å presentere Tolleskogen 2 - En hel tomannsbolig + hybeldel
Kort kortalt:
- Hel tomannsbolig + hybeldel
- Godt utleieobjekt
- Det er gjort gode oppgraderinger i boligen.
- Sentral beliggenhet
- 2 bad fra 2025
- 2 kjøkken fra 2025
- Oppusset overflater 2025
- Garasje
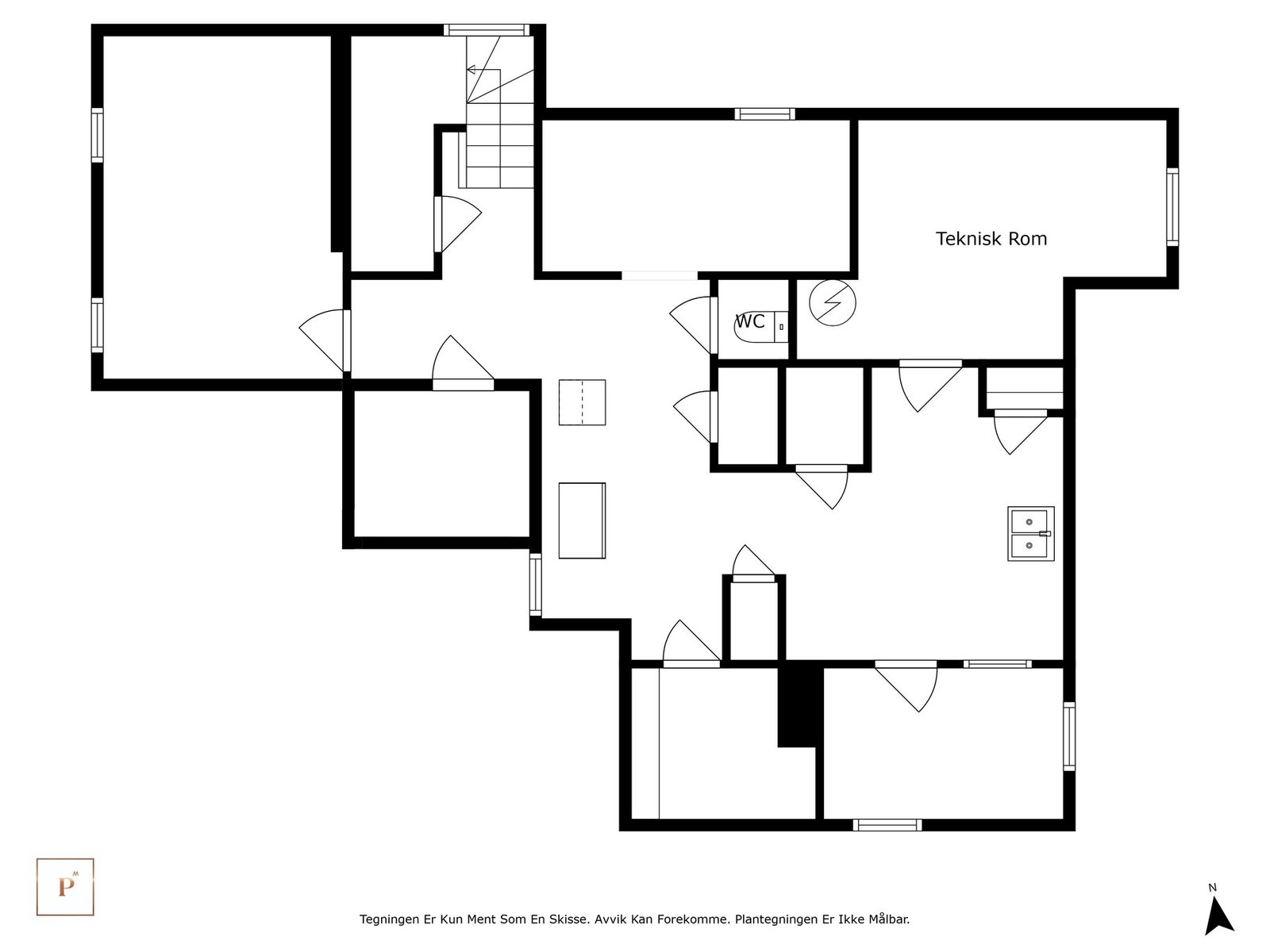
Inneholder:
1.etg:
Entrè/gang, stue, kjøkken, Bad/wc og 2 soverom i leilighet.
Hybel: Stue/kjøkken og bad/wc.
2.etg:
Entrè, trapperom/gang, stue, kjøkken, 3 soverom, bad/wc og separat toalettrom.
Kjeller:
I kjeller er det toalettrom, vaskekjeller og kjølerom, samt flere bodrom.
Loft:
Diverse loftsrom.
Kort kortalt:
- Hel tomannsbolig + hybeldel
- Godt utleieobjekt
- Det er gjort gode oppgraderinger i boligen.
- Sentral beliggenhet
- 2 bad fra 2025
- 2 kjøkken fra 2025
- Oppusset overflater 2025
- Garasje
Inneholder:
1.etg:
Entrè/gang, stue, kjøkken, Bad/wc og 2 soverom i leilighet.
Hybel: Stue/kjøkken og bad/wc.
2.etg:
Entrè, trapperom/gang, stue, kjøkken, 3 soverom, bad/wc og separat toalettrom.
Kjeller:
I kjeller er det toalettrom, vaskekjeller og kjølerom, samt flere bodrom.
Loft:
Diverse loftsrom.
NB: Knappen for å vise hele beskrivelsen har kun en visuell effekt.
NB: Knappen for å vise hele beskrivelsen har kun en visuell effekt.
Salgsoppgaven beskriver vesentlig og lovpålagt informasjon om eiendommen
Se komplett salgsoppgaveNyttige lenker
Nærområdet
PrivatMegleren Telemark
Kun det beste på dine vegne
Annonseinformasjon
| FINN-kode | 422121161 |
|---|---|
| Sist endret | 12. mai 2026 06:45 |
| Referanse | 103250109 |
Annonsene kan være mangelfulle i forhold til lovpålagt opplysningsplikt. Før bindende avtale inngås oppfordres interessenter til å innhente komplett informasjon fra meglerforetaket, selger eller utleier.












































