Bildegalleri

Velkommen til Gladenveien 15C! Presentert av Renate Finnanger Fløan v/Nordvik Majorstuen
Solgt
Lys og moderne selveier i bygg fra 2012 med solrik terrasse på 10 m² - Kjøkken og gulv fra 2021 - Fyring og v.vann inkl.
Prisantydning4 700 000 kr
Nøkkelinfo
- Boligtype
- Leilighet
- Eieform
- Eier (Selveier)
- Soverom
- 1
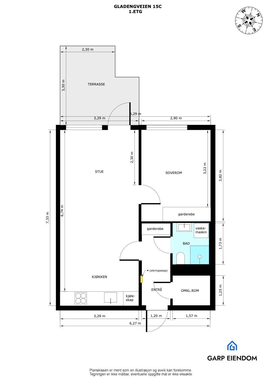
- Internt bruksareal
- 46 m² (BRA-i)
- Bruksareal
- 51 m²
- Eksternt bruksareal
- 5 m² (BRA-e)
- Balkong/Terrasse
- 10 m² (TBA)
- Etasje
- 1
- Byggeår
- 2012
- Energimerking
- C - Mørkegrønn
- Rom
- 2
- Tomteareal
- 4 752 m²
Fasiliteter
Takterrasse
Balkong/Terrasse
Barnevennlig
Bredbåndstilknytning
Heis
Kjæledyr tillatt
Kabel-TV
Offentlig vann/kloakk
Parkett
Rolig
Sentralt
Vaktmester-/vektertjeneste
Turterreng
Balansert ventilasjon
Om boligen
En lys og moderne 2-roms selveierleilighet i bygg fra 2012, beliggende skjermet og sentralt på populære Ensjø.
Her bor man stille og rolig til vendt ut mot grønne og pent opparbeidede fellesarealer. Attraktiv beliggenhet hvor alt av fasiliteter og servicetilbud ligger i umiddelbar nærhet med blant annet svært gode kollektivforbindelser med t-bane og buss.
Stor skjermet markterrasse på 10 m² med gode solforhold
Lave felleskostnader inkl. varmtvann, fyring og internett
Balansert ventilasjon og fjernvarme
Moderne enstavs eikeparkett, 2021
Lekkert kjøkken fra Kvik, 2021
God og arealeffektiv planløsning
Omkledningsrom/innvendig bod
Mulighet for garasjeleie
Generøst soverom
Store vindusflater
Felles takterrasse
Utleie tillatt
Bod i kjeller
Her bor man stille og rolig til vendt ut mot grønne og pent opparbeidede fellesarealer. Attraktiv beliggenhet hvor alt av fasiliteter og servicetilbud ligger i umiddelbar nærhet med blant annet svært gode kollektivforbindelser med t-bane og buss.
Stor skjermet markterrasse på 10 m² med gode solforhold
Lave felleskostnader inkl. varmtvann, fyring og internett
Balansert ventilasjon og fjernvarme
Moderne enstavs eikeparkett, 2021
Lekkert kjøkken fra Kvik, 2021
God og arealeffektiv planløsning
Omkledningsrom/innvendig bod
Mulighet for garasjeleie
Generøst soverom
Store vindusflater
Felles takterrasse
Utleie tillatt
Bod i kjeller
NB: Knappen for å vise hele beskrivelsen har kun en visuell effekt.
NB: Knappen for å vise hele beskrivelsen har kun en visuell effekt.
Salgsoppgaven beskriver vesentlig og lovpålagt informasjon om eiendommen
Se komplett salgsoppgaveNyttige lenker
Nærområdet
Nordvik Majorstuen
Annonseinformasjon
| FINN-kode | 422064723 |
|---|---|
| Sist endret | 29. aug. 2025 10:39 |
| Referanse | 8-0435/25 |
Annonsene kan være mangelfulle i forhold til lovpålagt opplysningsplikt. Før bindende avtale inngås oppfordres interessenter til å innhente komplett informasjon fra meglerforetaket, selger eller utleier.
































