Bildegalleri

Flott nybygd leilighet i massivtre - 3 soverom - Nærhet til både sentrum og skisporet
Prisantydning3 750 000 kr
Nøkkelinfo
- Boligtype
- Leilighet
- Eieform
- Eier (Selveier)
- Soverom
- 3
- Internt bruksareal
- 80 m² (BRA-i)
- Bruksareal
- 80 m²
- Byggeår
- 2024
- Rom
- 4
- Tomteareal
- 1 308 m² (eiet)
Om boligen
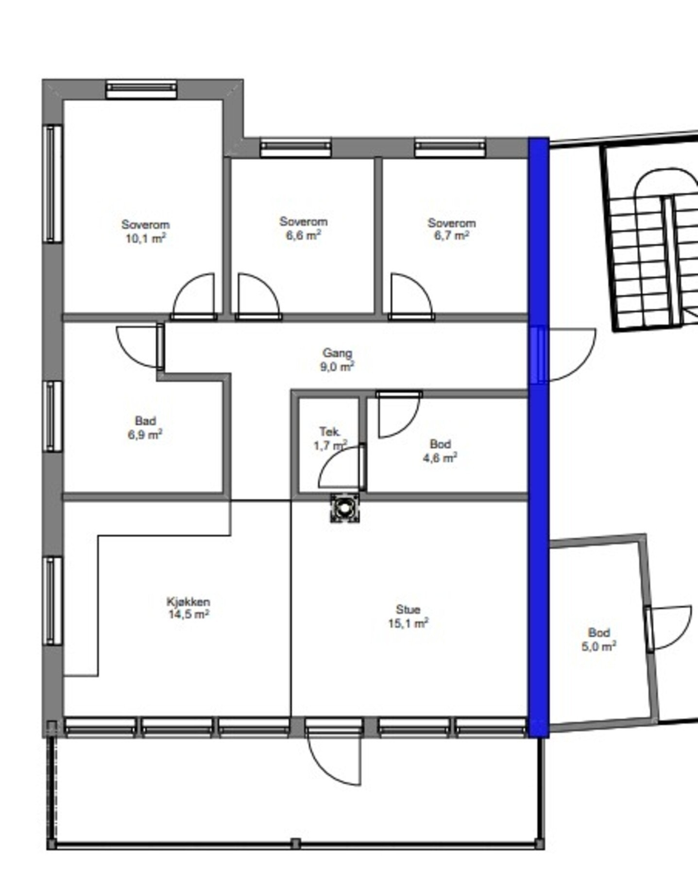
Ny, moderne leilighet på Geilo oppført i eksklusive massivtreelementer. Boligen får en gjennomført, lun atmosfære med smarte løsninger og kvalitetsmaterialer. Planløsningen rommer tre soverom, åpen stue/kjøkkenløsning, romslig bad og god lagringsplass med innvendig bod. Det er også grunnarbeid og strømtilrettelegging for potensiell utebod. Varmekilder inkluderer elektrisk varmefolie i gulv og balansert ventilasjon. Parkeringsplasser finnes på nordsiden av bygget. Eiendommen ligger inntil skibakken - kun 3 minutters gange/staking - med kort vei til sentrum og servicetilbud. Leiligheten er en del av et nybyggprosjekt som ferdigstilles fortløpende.
NB: Knappen for å vise hele beskrivelsen har kun en visuell effekt.
NB: Knappen for å vise hele beskrivelsen har kun en visuell effekt.
Salgsoppgaven beskriver vesentlig og lovpålagt informasjon om eiendommen
Se komplett salgsoppgaveNyttige lenker
Nærområdet
Privatmegleren Herleiksplass & Partnere
Kun det beste på dine vegne
Annonseinformasjon
| FINN-kode | 422037122 |
|---|---|
| Sist endret | 01. des. 2025 19:40 |
| Referanse | 315251148 |
Annonsene kan være mangelfulle i forhold til lovpålagt opplysningsplikt. Før bindende avtale inngås oppfordres interessenter til å innhente komplett informasjon fra meglerforetaket, selger eller utleier.




























