Bildegalleri

Velkommen til populære Teisen Park og denne fine hjørneleiligheten!
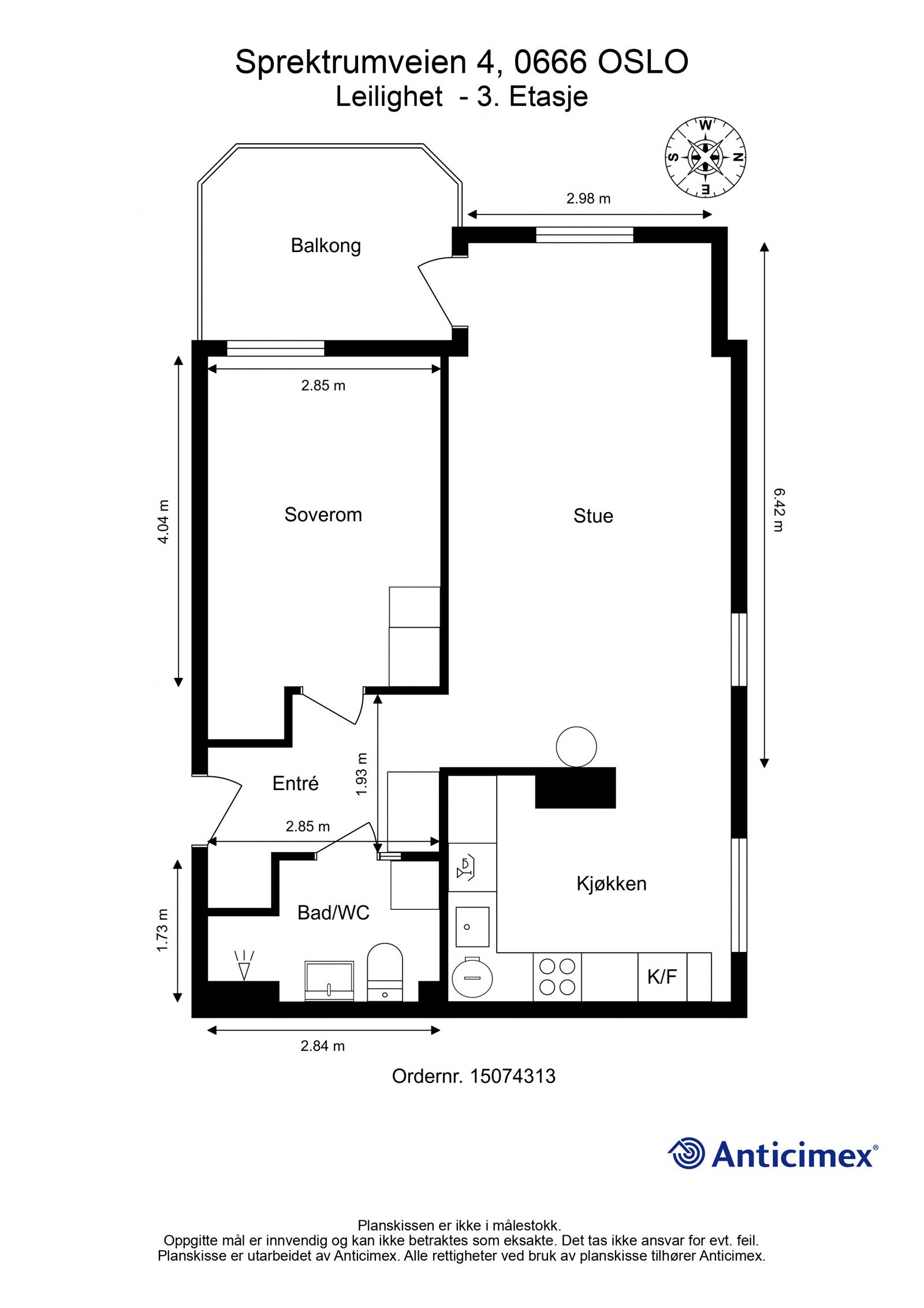
Lys og romslig 2-roms hjørneleil. med vestvendt balkong. Stue med peis. Attraktivt BRL med flotte fellesområder
Nøkkelinfo
- Boligtype
- Leilighet
- Eieform
- Andel
- Soverom
- 1
- Internt bruksareal
- 55 m² (BRA-i)
- Bruksareal
- 66 m²
- Eksternt bruksareal
- 6 m² (BRA-e)
- Balkong/Terrasse
- 7 m² (TBA)
- Etasje
- 3
- Byggeår
- 1953
- Energimerking
- D - Rød
- Rom
- 2
- Tomteareal
- 99 627 m² (eiet)
Fasiliteter
Om boligen
Velkommen til Teisen Park!
Lys og romslig 2-roms hjørneleilighet med god beliggenhet i 3. etasje. Leiligheten ligger skjermet og fint til med flott utsyn over nærområdet og store grøntområder. Kort vei til butikker, skoler, barnehager og off. kommunikasjon.
Leiligheten inneholder:
- Stor stue med hyggelig peis
- Delvis adskilt kjøkken med god skap- og benkeplass
- Solrik, vestvendt balkong med nydelig utsikt
- Luftig soverom med garderobeskap
- Bad med opplegg for vaskemaskin
- Entré med garderobeskap
- To kjellerboder (tot. 5m²) og en loftsbod (gulvareal 14m²)
Attraktivt borettslag med frodige fellesområder, grillplasser og sittegrupper, to oppgraderte lekepkasser, utendørs treningspark, fellesvaskeri og pent selskapslokale til leie for beboerne.Parkeringsplasser i BRL til leie etter venteliste.
Salgsoppgaven beskriver vesentlig og lovpålagt informasjon om eiendommen
Se komplett salgsoppgaveNyttige lenker
Nærområdet
OBOS eiendomsmeglere - Ensjø
Annonseinformasjon
| FINN-kode | 422037043 |
|---|---|
| Sist endret | 29. aug. 2025 10:09 |
| Referanse | 718250049 |
Annonsene kan være mangelfulle i forhold til lovpålagt opplysningsplikt. Før bindende avtale inngås oppfordres interessenter til å innhente komplett informasjon fra meglerforetaket, selger eller utleier.




































