Bildegalleri

Kristoffer Mjåtveit har gleden av å presentere Bidenkaps gate 3!
Solgt
St.Hanshaugen ved Pilestredet Park
Lys, pen og arealeffektiv 3-roms med markterrasse - Vender i sin helhet mot bakgård - IN-ordning - Akto VV og fyring
Prisantydning3 250 000 kr
Nøkkelinfo
- Boligtype
- Leilighet
- Eieform
- Andel
- Soverom
- 2
- Internt bruksareal
- 45 m² (BRA-i)
- Bruksareal
- 49 m²
- Eksternt bruksareal
- 4 m² (BRA-e)
- Etasje
- 2
- Byggeår
- 1940
- Energimerking
- F - Mørkegrønn
- Rom
- 3
- Tomteareal
- 819 m² (eiet)
Fasiliteter
Balkong/Terrasse
Barnevennlig
Bredbåndstilknytning
Heis
Kabel-TV
Offentlig vann/kloakk
Parkett
Rolig
Sentralt
Turterreng
Om boligen
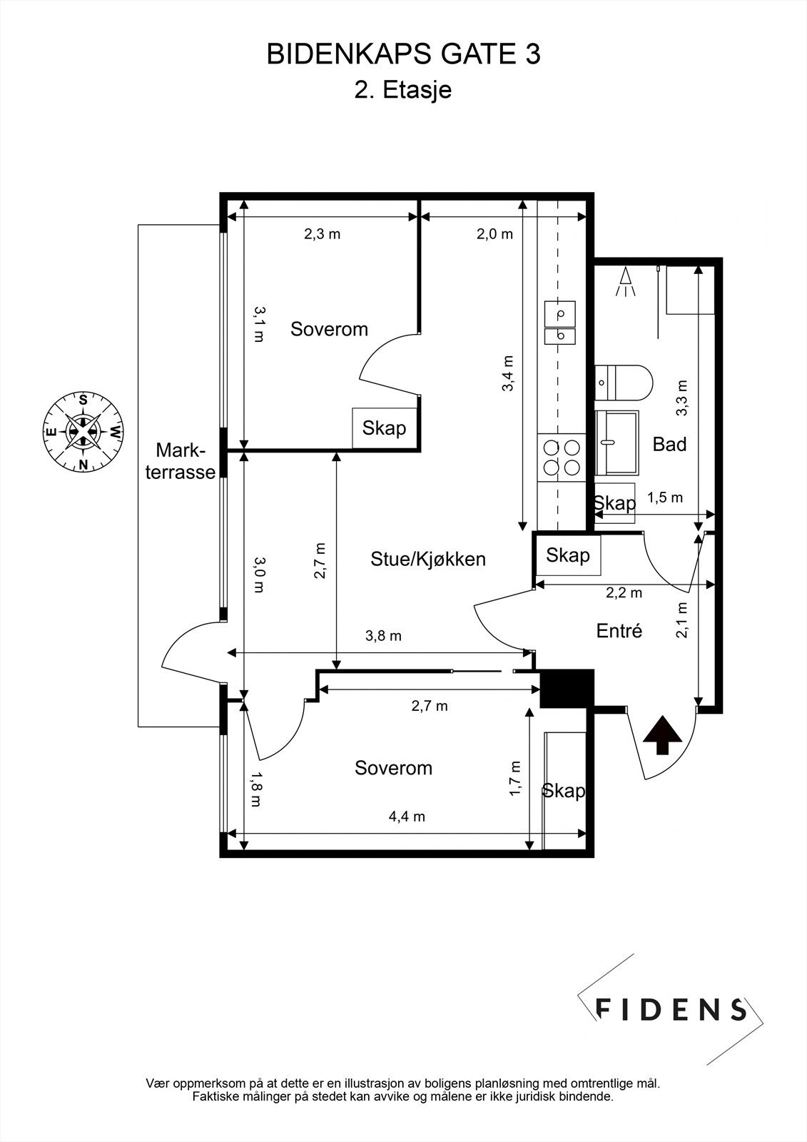
Lys, pen og godt utnyttet 3-roms med markterrasse. Leiligheten vender i sin helhet mot rolig og pent opparbeidet bakgård.
Leiligheten har attraktiv og sentral beliggenhet på St. Hanshaugen rett ved Pilestredet Park. Umiddelbar nærhet til "alt" man trenger i hverdagen, en beliggenhet som byr på en fantastisk kombinasjon av byliv og grønn ro.
Leiligheten har en optimal planløsning, og inneholder entré, åpen kjøkken- og stueløsning, to soverom og bad.
Leiligheten har attraktiv og sentral beliggenhet på St. Hanshaugen rett ved Pilestredet Park. Umiddelbar nærhet til "alt" man trenger i hverdagen, en beliggenhet som byr på en fantastisk kombinasjon av byliv og grønn ro.
Leiligheten har en optimal planløsning, og inneholder entré, åpen kjøkken- og stueløsning, to soverom og bad.
- Skjermet, hellelagt markterrasse på 12 kvm. mot bakgård
- Store vindusflater og svært god takhøyde på 2,74 meter
- Akto fjernvarme og fiberinternett inkl. i FK
- Ved innfrielse av andel fellesgjeld vil felleskostnadene reduseres til 2 886,-
- Bygg omgjort til boliger i 2008
- Heis
- Ingen dok.avgift
- Tilbaketrukket område
NB: Knappen for å vise hele beskrivelsen har kun en visuell effekt.
NB: Knappen for å vise hele beskrivelsen har kun en visuell effekt.
Salgsoppgaven beskriver vesentlig og lovpålagt informasjon om eiendommen
Se komplett salgsoppgaveNyttige lenker
Nærområdet
Nordvik St.Hanshaugen
Annonseinformasjon
| FINN-kode | 421963907 |
|---|---|
| Sist endret | 15. okt. 2025 19:10 |
| Referanse | 5-0338/25 |
Annonsene kan være mangelfulle i forhold til lovpålagt opplysningsplikt. Før bindende avtale inngås oppfordres interessenter til å innhente komplett informasjon fra meglerforetaket, selger eller utleier.




































