Bildegalleri

Velkommen til Øvre Fagervei 16; en Innholdsrik enebolig på solrik hjørnetomt- solcellepaneler på tak- garasje- stor hage- utsikt til elva.
Skarpnes - Nedenes
Lekker enebolig med attraktiv beliggenhet og pent opparbeidet hjørnetomt - Nydelig utsikt - Bergvarme og solcelleanlegg
Prisantydning8 500 000 kr
Nøkkelinfo
- Boligtype
- Enebolig
- Eieform
- Eier (Selveier)
- Soverom
- 3
- Internt bruksareal
- 153 m² (BRA-i)
- Bruksareal
- 222 m²
- Eksternt bruksareal
- 69 m² (BRA-e)
- Balkong/Terrasse
- 59 m² (TBA)
- Etasje
- 2
- Byggeår
- 2014
- Energimerking
- B - Oransje
- Rom
- 5
- Tomteareal
- 598 m² (eiet)
Fasiliteter
Balkong/Terrasse
Barnevennlig
Garasje/P-plass
Hage
Offentlig vann/kloakk
Parkett
Rolig
Sentralt
Utsikt
Turterreng
Lademulighet
Balansert ventilasjon
Visning
Ta kontakt med megler for avtale om privatvisning.
Ønsker du kun å bli holdt orientert, kan du fra eiendommens hjemmeside få varsel om solgtpris, eller kontakte megler.
VisningspåmeldingOm boligen
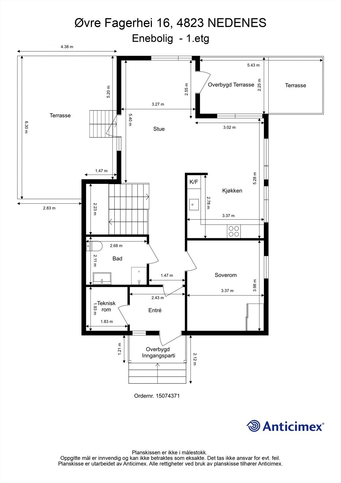
Meget innholdsrik og lekker enebolig med en rekke fine løsninger, stor hjørnetomt og nydelig beliggenhet i solrike forhold på Nedenes. Eiendommen har vannbåren gulvvarme fra bergvarmeanlegg, som gjør eiendommen svært energieffektiv. Det er dobbel garasje, terrasser (delvis overbygd) både foran og på baksiden av boligen, stort hageareal med pen beplantning. Innkjørsel er asfaltert og det er gjerde i glass som rammer inn hagen samt terrasser. Uteområdet har flere "soner" hvor man kan nyte solen hele dagen. Både enebolig og garasje er oppført over to plan. 1. etasje inneholder kjøkken, stue, soverom, bad, bod og gang/entre. Underetasjen består bad med sauna, to soverom, bod og tv-stue.
NB: Knappen for å vise hele beskrivelsen har kun en visuell effekt.
NB: Knappen for å vise hele beskrivelsen har kun en visuell effekt.
Salgsoppgaven beskriver vesentlig og lovpålagt informasjon om eiendommen
Se komplett salgsoppgaveNyttige lenker
Nærområdet
Krogsveen Arendal
Velkommen til en enklere boligreise.
Annonseinformasjon
| FINN-kode | 421951623 |
|---|---|
| Sist endret | 10. des. 2025 07:57 |
| Referanse | KR47.25111 |
Annonsene kan være mangelfulle i forhold til lovpålagt opplysningsplikt. Før bindende avtale inngås oppfordres interessenter til å innhente komplett informasjon fra meglerforetaket, selger eller utleier.

















































