Bildegalleri

Velkommen til Sundenga 12. Ny og flott halvpart av tomannsbolig sentralt i Rælingen.
Ny og lekker familiebolig med garasje, del i 1.etg. ideelt for utleie, 5 sov. Påkostet standard og sentral beliggenhet.
Nøkkelinfo
- Boligtype
- Enebolig
- Eieform
- Eier (Selveier)
- Soverom
- 5
- Internt bruksareal
- 191 m² (BRA-i)
- Eksternt bruksareal
- 23 m² (BRA-e)
- Balkong/Terrasse
- 12 m² (TBA)
- Byggeår
- 2025
- Rom
- 8
- Tomteareal
- 520 m² (eiet)
Fasiliteter
Visning
Om boligen
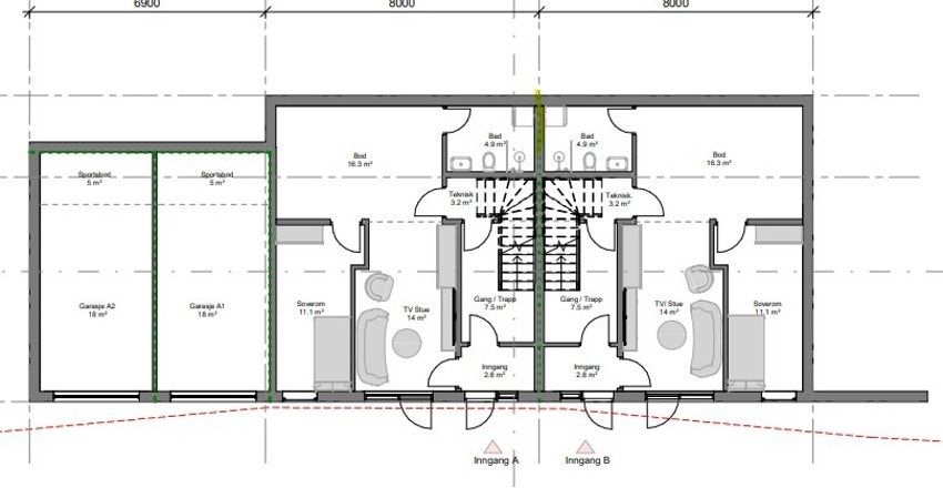
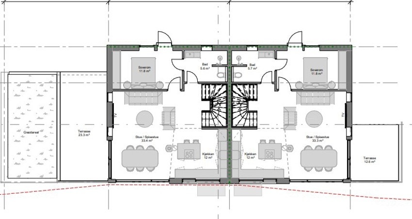
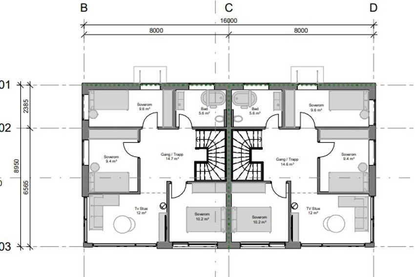
Velkommen til Sundenga 12 - en helt ny og moderne halvpart av tomannsbolig med attraktiv beliggenhet i Rælingen! Her får du en innflyttingsklar bolig med høy standard, gjennomtenkt planløsning og alt tilrettelagt for en enkel, komfortabel og aktiv hverdag. Boligen går over tre etasjer og har et bruksareal på ca. 214 m² med hele fem soverom, tre bad, romslig stue/kjøkken i åpen løsning og en ekstra loftstue - perfekt for barnefamilier eller deg som ønsker god plass. Tilrettelagt for utleie med egen inngang i 1. etg.
Ferdigstillelse er planlagt til våren 2026, og kjøper du nå, får du gleden av å flytte rett inn i en splitter ny bolig - med lav dokumentavgift og minimalt vedlikehold i mange år fremover. Parkering i garasje og på gårdsplass.
Salgsoppgaven beskriver vesentlig og lovpålagt informasjon om eiendommen
Se komplett salgsoppgaveNyttige lenker
Nærområdet

PrivatMegleren Lillestrøm
Annonseinformasjon
| FINN-kode | 421848112 |
|---|---|
| Sist endret | 04. feb. 2026 03:10 |
| Referanse | 24250241 |
Annonsene kan være mangelfulle i forhold til lovpålagt opplysningsplikt. Før bindende avtale inngås oppfordres interessenter til å innhente komplett informasjon fra meglerforetaket, selger eller utleier.














