Bildegalleri

Velkommen til Sanglundvegen 12A, presentert av Inger Helene Simensen. Foto: Pil Branding (Kim Rognmo).
Hamar
Tiltalende og påkostet familiebolig med usjenert hage. Nyere kjøkken og bad. Dobbelgarasje.
Prisantydning8 790 000 kr
Nøkkelinfo
- Boligtype
- Enebolig
- Eieform
- Eier (Selveier)
- Soverom
- 3
- Internt bruksareal
- 167 m² (BRA-i)
- Bruksareal
- 209 m²
- Eksternt bruksareal
- 42 m² (BRA-e)
- Balkong/Terrasse
- 42 m² (TBA)
- Byggeår
- 2000
- Energimerking
- D - Rød
- Tomteareal
- 754 m² (eiet)
Fasiliteter
Barnevennlig
Balkong/Terrasse
Garasje/P-plass
Offentlig vann/kloakk
Peis/Ildsted
Utsikt
Sentralt
Moderne
Rolig
Balansert ventilasjon
Om boligen
EIE har gleden av å presentere denne tiltalende eneboligen i Sanglundvegen 12A!
Eiendommen ligger i et attraktivt og etablert boligområde på Solvang. Fra boligen er det kort avstand til barnehager, skoler, idrettsanlegg og butikker.
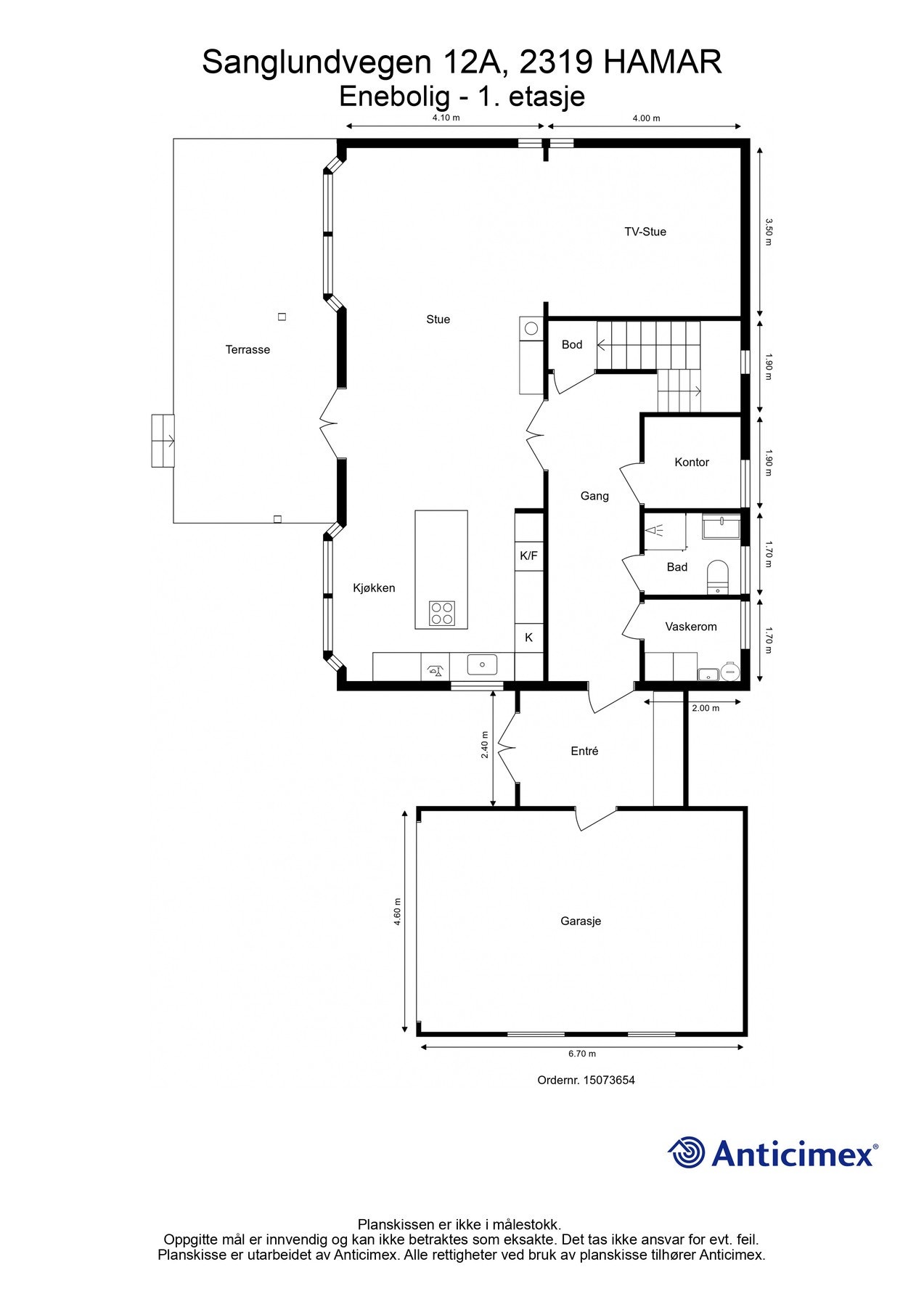
Boligen har en familievennlig og praktisk planløsning med romslige arealer. Det er stue, kjøkken (2019), kontor, vaskerom og bad i 1. etasjen. I 2. etasjen er det tre soverom, walk-in closet og et nyere flislagt bad (2023). Det er utgang til fine uteplasser fra begge etasjer, og fra balkongen er det flott utsikt. Hagen er pent skjermet med hekk og har en lekestue hvor barna kan boltre seg. I den koselige utestuen kan kveldene nytes ved utepeisen. Gode parkeringsmuligheter i dobbelgarasje med praktisk inngang direkte til entreen. Stor oppkjørsel.
Denne flotte eneboligen fra 2000 kombinerer moderne komfort med solid kvalitet. Her får du en gjennomført bolig med flotte oppgraderinger og en usjenert hage som gir deg fullt privatliv. Her er det fint å bo!
Eiendommen ligger i et attraktivt og etablert boligområde på Solvang. Fra boligen er det kort avstand til barnehager, skoler, idrettsanlegg og butikker.
Boligen har en familievennlig og praktisk planløsning med romslige arealer. Det er stue, kjøkken (2019), kontor, vaskerom og bad i 1. etasjen. I 2. etasjen er det tre soverom, walk-in closet og et nyere flislagt bad (2023). Det er utgang til fine uteplasser fra begge etasjer, og fra balkongen er det flott utsikt. Hagen er pent skjermet med hekk og har en lekestue hvor barna kan boltre seg. I den koselige utestuen kan kveldene nytes ved utepeisen. Gode parkeringsmuligheter i dobbelgarasje med praktisk inngang direkte til entreen. Stor oppkjørsel.
Denne flotte eneboligen fra 2000 kombinerer moderne komfort med solid kvalitet. Her får du en gjennomført bolig med flotte oppgraderinger og en usjenert hage som gir deg fullt privatliv. Her er det fint å bo!
NB: Knappen for å vise hele beskrivelsen har kun en visuell effekt.
NB: Knappen for å vise hele beskrivelsen har kun en visuell effekt.
Salgsoppgaven beskriver vesentlig og lovpålagt informasjon om eiendommen
Se komplett salgsoppgaveNyttige lenker
Nærområdet
EIE eiendomsmegling Innlandet
Annonseinformasjon
| FINN-kode | 421835049 |
|---|---|
| Sist endret | 07. feb. 2026 13:56 |
| Referanse | 72250242 |
Annonsene kan være mangelfulle i forhold til lovpålagt opplysningsplikt. Før bindende avtale inngås oppfordres interessenter til å innhente komplett informasjon fra meglerforetaket, selger eller utleier.



















































