Bildegalleri

Velkommen til en en luftig og moderne leilighet i Christian Krohgs gate 30!
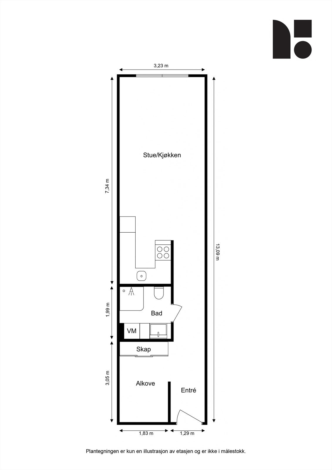
Lekker og moderne fabrikkleilighet med Akerselva som nabo. Felles takterrasse. Vv, fyring & strøm inkl. Heis.
Nøkkelinfo
- Boligtype
- Leilighet
- Eieform
- Andel
- Soverom
- 0
- Internt bruksareal
- 42 m² (BRA-i)
- Bruksareal
- 44 m²
- Eksternt bruksareal
- 2 m² (BRA-e)
- Etasje
- 4
- Byggeår
- 1903
- Energimerking
- G - Mørkegrønn
- Rom
- 1
- Tomteareal
- 1 357 m² (eiet)
Fasiliteter
Om boligen
Leiligheten har en gjennomtenkt planløsning med god arealutnyttelse og smarte løsninger for oppbevaring. Heisen tar deg rett opp til en felles takterrasse et stille og solrikt sted for beboerne, med panoramautsikt over Oslo. Perfekt for varme sommerdager eller sammenkomster med venner.
Høydepunkt:
-Kjøkken fra 2022
-Delikat bad
-Internett, strøm og fyring/vv inkl
-Heis
-Fantastisk felles takterrasse med gode solforhold
-Supersentralt
-Ingen forkjøpsrett
-Bod
Salgsoppgaven beskriver vesentlig og lovpålagt informasjon om eiendommen
Se komplett salgsoppgaveNærområdet
Aktiv Gamle Oslo/Bjørvika
Prisstatistikk
Christian Krohgs gate 30
på annonsen
prisantydning per kvadratmeter
Prisfordeling
Pris per m² ligger 660 kr over snittet for leiligheter i Grünerløkka - Sofienberg.
Grafen viser antall leiligheter solgt i Grünerløkka - Sofienberg siste året fordelt på pris per m² - totalt 2 425 leiligheter
Antall boliger
Kvadratmeterpris tilsvarer prisantydning pluss fellesgjeld per kvadratmeter (p-rom eller BRA-i). Prisene i grafen er avrundet til nærmeste 1000 kr.
Annonseinformasjon
| FINN-kode | 421701803 |
|---|---|
| Sist endret | 24. nov. 2025 21:10 |
| Referanse | 1002250242 |
Annonsene kan være mangelfulle i forhold til lovpålagt opplysningsplikt. Før bindende avtale inngås oppfordres interessenter til å innhente komplett informasjon fra meglerforetaket, selger eller utleier.































