Bildegalleri

Solgt
LUND/KIRKEVEIEN
Romslig 3-roms selveierleilighet med egen p-plass i bakgård - Heis - Solrik vestvendt balkong - Trappefritt!
Prisantydning3 990 000 kr
Nøkkelinfo
- Boligtype
- Leilighet
- Eieform
- Eier (Selveier)
- Soverom
- 2
- Internt bruksareal
- 71 m² (BRA-i)
- Bruksareal
- 84 m²
- Eksternt bruksareal
- 13 m² (BRA-e)
- Balkong/Terrasse
- 6 m² (TBA)
- Etasje
- 4
- Byggeår
- 1984
- Rom
- 3
- Tomteareal
- 599 m² (eiet)
Fasiliteter
Balkong/Terrasse
Garasje/P-plass
Heis
Kabel-TV
Offentlig vann/kloakk
Rolig
Sentralt
Turterreng
Lademulighet
Om boligen
Romslig 3-roms eierleilighet med sentral beliggenhet på Lund. Leiligheten har en praktisk planløsning, romslig flislagt vestvendt balkong med fin utsikt., samt fast parkeringsplass i bakgården. Utvendig ble bygget betydelig pusset opp i 2017/18 hvor det bla. ble lagt ny taktekking, etterisolert yttervegger, nye veggplater, nye vinduer, ny verandadør, glass på terrasser, nytt ventilasjonsanlegg, nytt callinganlegg mm.
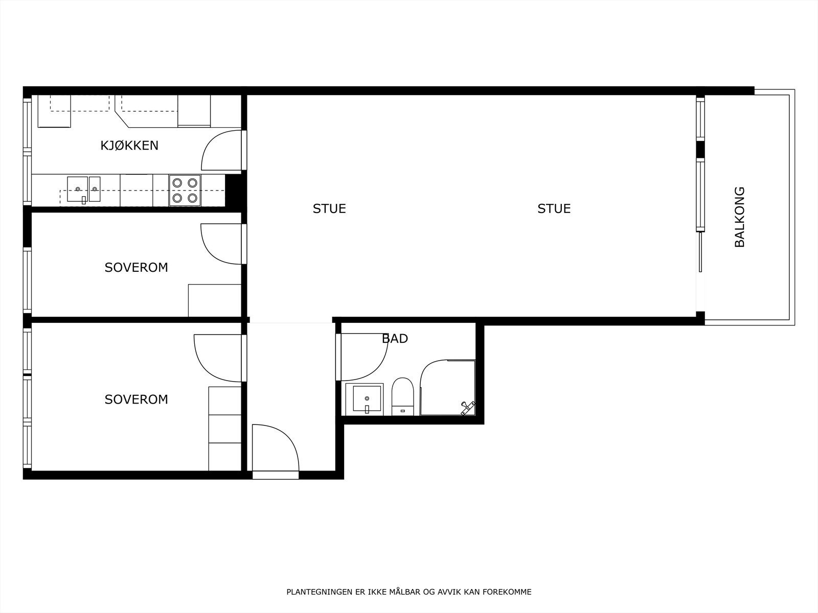
Leiligheten har trappefri adkomst og inneholder følgende rom:
4. Etg:
Gang, romslig stue med god plass for spisestue, separat kjøkken, flislagt bad og 2 soverom.
I tillegg medfølger stor bod i byggets underetg. Felles sykkelrom.
Fra leiligheten har du gang- og sykkelavstand til sentrum, forøvrig finner du dagligvarebutikk og bakeri og buss-stopp i umiddelbar nærhet.
Leiligheten har trappefri adkomst og inneholder følgende rom:
4. Etg:
Gang, romslig stue med god plass for spisestue, separat kjøkken, flislagt bad og 2 soverom.
I tillegg medfølger stor bod i byggets underetg. Felles sykkelrom.
Fra leiligheten har du gang- og sykkelavstand til sentrum, forøvrig finner du dagligvarebutikk og bakeri og buss-stopp i umiddelbar nærhet.
NB: Knappen for å vise hele beskrivelsen har kun en visuell effekt.
NB: Knappen for å vise hele beskrivelsen har kun en visuell effekt.
Salgsoppgaven beskriver vesentlig og lovpålagt informasjon om eiendommen
Se komplett salgsoppgaveNyttige lenker
Nærområdet
Eiendomsmegler Norge Kristiansand
Det viktigste stedet i Norge er der du bor
Annonseinformasjon
| FINN-kode | 421635550 |
|---|---|
| Sist endret | 29. aug. 2025 10:59 |
| Referanse | SORM11.25380 |
Annonsene kan være mangelfulle i forhold til lovpålagt opplysningsplikt. Før bindende avtale inngås oppfordres interessenter til å innhente komplett informasjon fra meglerforetaket, selger eller utleier.


























