Bildegalleri

Velkommen til Nordahl Bruns gate 8! Gården ble totalrenovert i 2013.
Solgt
St.Hanshaugen/Meyerløkka
Lys 2-roms med sydvendt balkong - God takhøyde - Heis - Gården totalrenovert i 2013 -Ingen forkjøpsrett eller dok.avgift
Prisantydning5 350 000 kr
Nøkkelinfo
- Boligtype
- Leilighet
- Eieform
- Andel
- Soverom
- 1
- Internt bruksareal
- 50 m² (BRA-i)
- Bruksareal
- 54 m²
- Eksternt bruksareal
- 4 m² (BRA-e)
- Balkong/Terrasse
- 5 m² (TBA)
- Etasje
- 3
- Byggeår
- 1868
- Energimerking
- G - Rød
- Tomteareal
- 754 m² (eiet)
Fasiliteter
Balkong/Terrasse
Kabel-TV
Heis
Offentlig vann/kloakk
Parkett
Sentralt
Bredbåndstilknytning
Moderne
Om boligen
Velkommen til Nordahl Bruns gate 8!
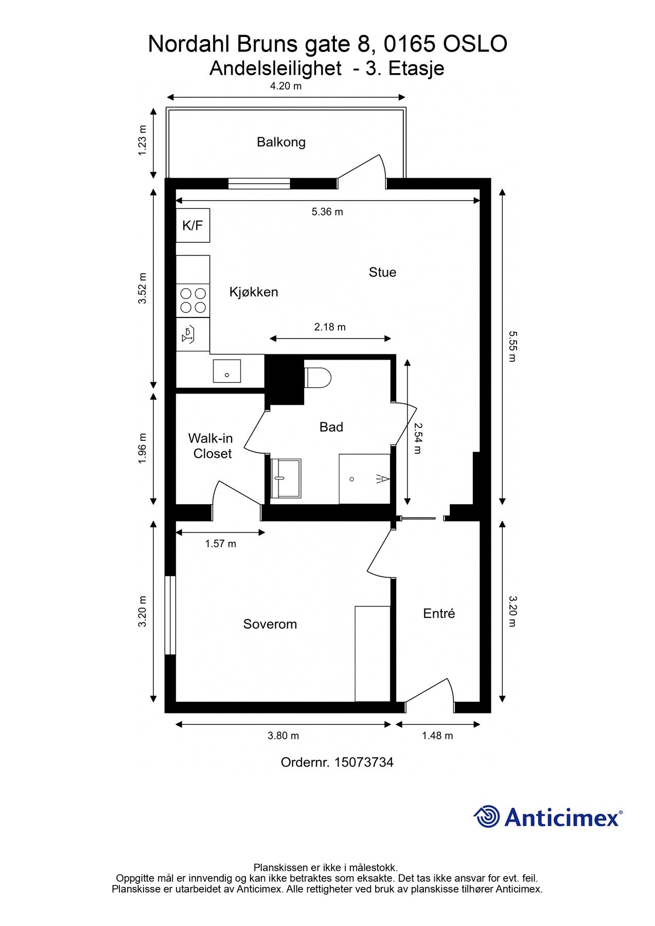
Lys 2-roms med sydvendt balkong. Leiligheten inneholder en åpen stue/kjøkkenløsning med plass til spisebord, soverom med walk-in garderobe, bad og entré. Det er god takhøyde på 3 meter.
Gården er fra 1868, men ble ombygget (totalrenovert) i 2013. Veggene ble malt og sparklet sommeren 2025, det ble satt inn ny oppvaskmaskin i 2024 og vaskemaskin i 2023.
Borettslaget har de siste årene påkostet bakgården med hyggelig pergola og grillplass.
Verdt å merke seg:
- Varmtvann, kabel-TV og fibernett inkl. i fellesutgifter
- Heis
- Kjellerbod
- Felles låsbar sykkelbod
- Ingen dok.avgift eller forkjøpsrett
- Hyggelig bakgård
- Mulighet for rask overtakelse
Mangler du egenkapital? Boligen kan kjøpes med Finit Deleie.
Velkommen til visning!
Lys 2-roms med sydvendt balkong. Leiligheten inneholder en åpen stue/kjøkkenløsning med plass til spisebord, soverom med walk-in garderobe, bad og entré. Det er god takhøyde på 3 meter.
Gården er fra 1868, men ble ombygget (totalrenovert) i 2013. Veggene ble malt og sparklet sommeren 2025, det ble satt inn ny oppvaskmaskin i 2024 og vaskemaskin i 2023.
Borettslaget har de siste årene påkostet bakgården med hyggelig pergola og grillplass.
Verdt å merke seg:
- Varmtvann, kabel-TV og fibernett inkl. i fellesutgifter
- Heis
- Kjellerbod
- Felles låsbar sykkelbod
- Ingen dok.avgift eller forkjøpsrett
- Hyggelig bakgård
- Mulighet for rask overtakelse
Mangler du egenkapital? Boligen kan kjøpes med Finit Deleie.
Velkommen til visning!
NB: Knappen for å vise hele beskrivelsen har kun en visuell effekt.
NB: Knappen for å vise hele beskrivelsen har kun en visuell effekt.
Salgsoppgaven beskriver vesentlig og lovpålagt informasjon om eiendommen
Se komplett salgsoppgaveNyttige lenker
Nærområdet
EIE eiendomsmegling Vinderen
Annonseinformasjon
| FINN-kode | 421619505 |
|---|---|
| Sist endret | 09. sep. 2025 10:54 |
| Referanse | 31250113 |
Annonsene kan være mangelfulle i forhold til lovpålagt opplysningsplikt. Før bindende avtale inngås oppfordres interessenter til å innhente komplett informasjon fra meglerforetaket, selger eller utleier.
































