Bildegalleri

Velkommen til Konsul Schjelderups vei 1A!
Inaktiv
Bygdøy
Moderne enebolig med solrike takterrasse, skjermet hage og meget god beliggenhet | Garasje
Prisantydning22 950 000 kr
Nøkkelinfo
- Boligtype
- Enebolig
- Eieform
- Selveier
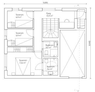
- Soverom
- 3
- Internt bruksareal
- 181 m² (BRA-i)
- Bruksareal
- 198 m²
- Eksternt bruksareal
- 17 m² (BRA-e)
- Balkong/Terrasse
- 35 m² (TBA)
- Byggeår
- 2025
- Energimerking
- B - Oransje
- Tomteareal
- 1 729 m² (eiet)
Visning
Visningen har obligatorisk påmelding.
Kravet om påmelding har vi for å kunne gi deg og andre visningsdeltakere en best mulig opplevelse og service knyttet til gjennomføring av visningen. Velkommen!
VisningspåmeldingOm boligen
Velkommen til Konsul Schjelderups vei 1A!
Boligen er en del av et prosjekt med fire boliger tegnet av arkitekt R21, prosjektet stod ferdig i januar 2025.
Boligen har utgang til terrasse, privat hage og takterrasse, og ligger rundt en trivelig, felles delvis steinsatt uteområde. Her får du uterom tilpasset både ulike tider på døgnet og ulike årstider. Boligen har både garasje med bilheis (plass til 2 biler). Gjennom sin plassering, utforming og materialvalg har boligen en helhetlig og lekker utforming.
Innvendig er det en sosial løsning med plass til hele familien. Her er det en åpen stue/kjøkkenløsning med kjøkkeninnredning levert av Bekkestua kjøkkenstudio, tre lune soverom og tre gode bad hvorav ett har direkte adkomst fra master soverom + vaskerom. Godt med bodplass i kjeller.
Boligen er en del av et prosjekt med fire boliger tegnet av arkitekt R21, prosjektet stod ferdig i januar 2025.
Boligen har utgang til terrasse, privat hage og takterrasse, og ligger rundt en trivelig, felles delvis steinsatt uteområde. Her får du uterom tilpasset både ulike tider på døgnet og ulike årstider. Boligen har både garasje med bilheis (plass til 2 biler). Gjennom sin plassering, utforming og materialvalg har boligen en helhetlig og lekker utforming.
Innvendig er det en sosial løsning med plass til hele familien. Her er det en åpen stue/kjøkkenløsning med kjøkkeninnredning levert av Bekkestua kjøkkenstudio, tre lune soverom og tre gode bad hvorav ett har direkte adkomst fra master soverom + vaskerom. Godt med bodplass i kjeller.
NB: Knappen for å vise hele beskrivelsen har kun en visuell effekt.
NB: Knappen for å vise hele beskrivelsen har kun en visuell effekt.
Salgsoppgaven beskriver vesentlig og lovpålagt informasjon om eiendommen
Se komplett salgsoppgaveNærområdet
Sem & Johnsen
Boliger utenom det vanlige
Annonseinformasjon
| FINN-kode | 421504122 |
|---|---|
| Sist endret | 28. feb. 2026 16:22 |
| Referanse | 20-25-0033 |
Annonsene kan være mangelfulle i forhold til lovpålagt opplysningsplikt. Før bindende avtale inngås oppfordres interessenter til å innhente komplett informasjon fra meglerforetaket, selger eller utleier.









































