Bildegalleri

Velkommen til Gartnerjordet 31e - presentert av Advokatfirmaet Herstad AS!
BUD MOTTATT! Gartnerjordet: Lys og koselig brl-leilighet med åpen stue/kjøkken, ett soverom, utsikt og romslig balkong!
Nøkkelinfo
- Boligtype
- Leilighet
- Eieform
- Andel
- Soverom
- 1
- Internt bruksareal
- 57 m² (BRA-i)
- Eksternt bruksareal
- 5 m² (BRA-e)
- Etasje
- 3
- Byggeår
- 1973
- Energimerking
- G - Rød
Fasiliteter
Om boligen
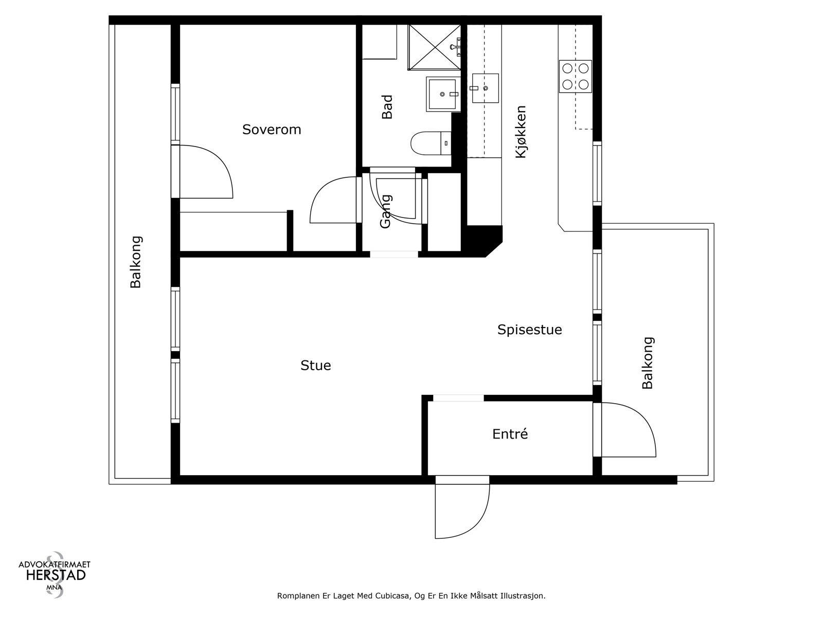
Advokatfirmaet Herstad AS ønsker velkommen til en koselig leilighet i et veldrevet borettslag!
Leiligheten fremstår som lys og innbydende, og har romslig, åpen stue/kjøkkenløsning med gode lysforhold og pent kjøkken med integrerte hvitevarer. Det er ett soverom i leiligheten, og pent bad med dusjkabinett og plass til vaskemaskin.
Byggets fasader, herunder balkonger og vinduer etc, er nettopp renovert i regi av borettslaget.
Fra leiligheten er det kort vei til barne- og ungdomsskole, barnehage og bussholdeplass, og ca et kvarters kjøring til Kirkenes sentrum.
Salgsoppgaven beskriver vesentlig og lovpålagt informasjon om eiendommen
Se komplett salgsoppgaveNyttige lenker
Nærområdet

Advokatfirmaet Herstad AS
Prisstatistikk
Gartnerjordet 31e
på annonsen
prisantydning per kvadratmeter
Prisfordeling
Pris per m² ligger 3 685 kr under snittet for leiligheter i Sør-Varanger.
Grafen viser antall leiligheter solgt i Sør-Varanger siste året fordelt på pris per m² - totalt 27 leiligheter
Antall boliger
Kvadratmeterpris tilsvarer prisantydning pluss fellesgjeld per kvadratmeter (p-rom eller BRA-i). Prisene i grafen er avrundet til nærmeste 1000 kr.
Annonseinformasjon
| FINN-kode | 421379479 |
|---|---|
| Sist endret | 22. nov. 2025 09:29 |
| Referanse | 22250040 |
Annonsene kan være mangelfulle i forhold til lovpålagt opplysningsplikt. Før bindende avtale inngås oppfordres interessenter til å innhente komplett informasjon fra meglerforetaket, selger eller utleier.


































