Bildegalleri

Velkommen til Olivermarka 26. Presentert av EIE eiendomsmegling ved Sissel Longva.
Solgt
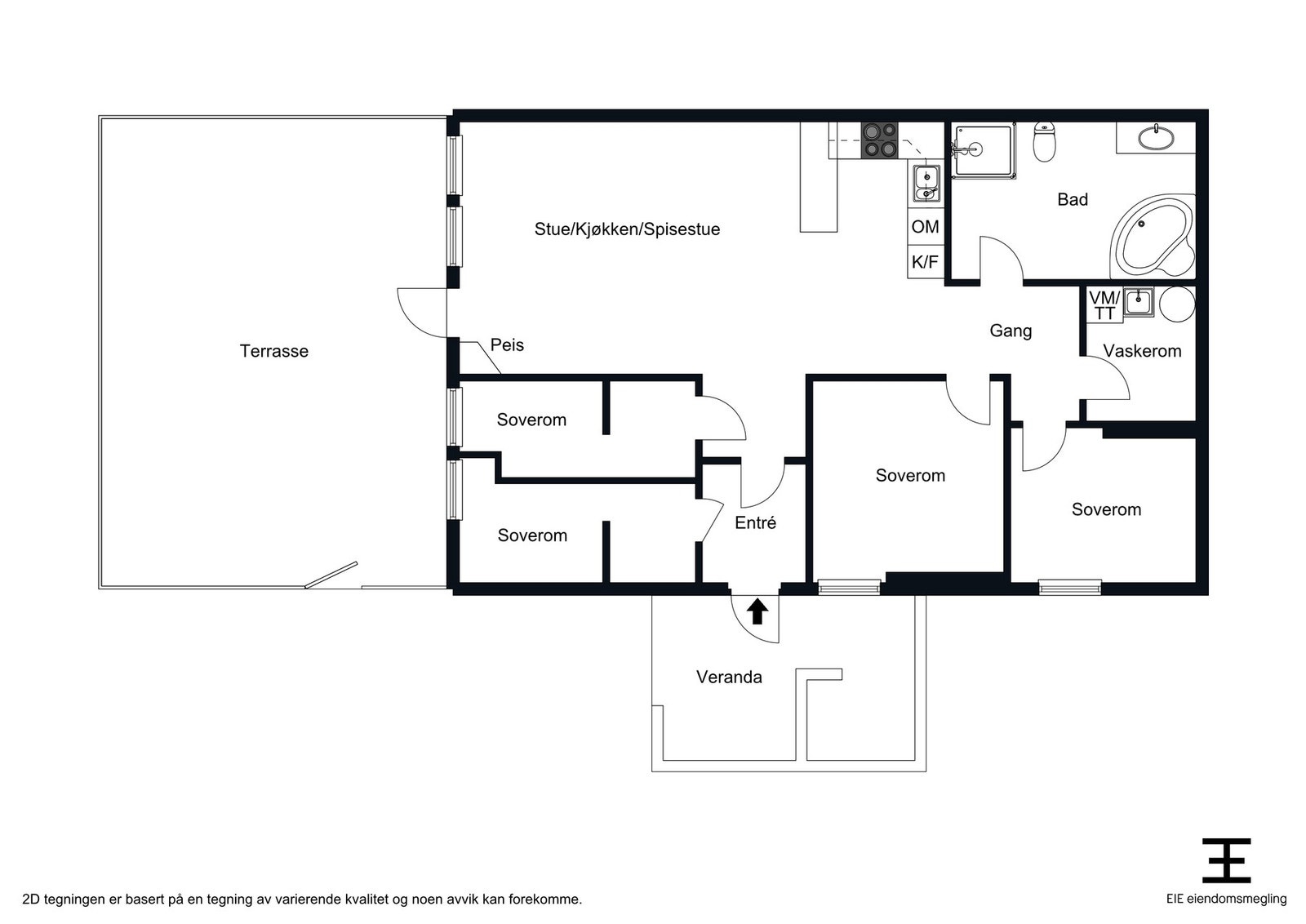
Flott leilighet med trappefri adkomst, stor og solrik terrasse, gasspeis, vaskerom, carport med bod og 3 soverom.
Prisantydning2 990 000 kr
Nøkkelinfo
- Boligtype
- Leilighet
- Eieform
- Eier (Selveier)
- Soverom
- 3
- Internt bruksareal
- 89 m² (BRA-i)
- Bruksareal
- 94 m²
- Eksternt bruksareal
- 5 m² (BRA-e)
- Balkong/Terrasse
- 49 m² (TBA)
- Etasje
- 1
- Byggeår
- 2007
- Energimerking
- D - Rød
- Rom
- 4
- Tomteareal
- 2 351 m² (eiet)
Fasiliteter
Barnevennlig
Balkong/Terrasse
Garasje/P-plass
Offentlig vann/kloakk
Parkett
Peis/Ildsted
Turterreng
Utsikt
Sentralt
Bredbåndstilknytning
Moderne
Rolig
Lademulighet
Om boligen
Romslig leilighet som har praktiske løsninger som for eksempel eget vaskerom, stor og sydvendt terrasse, overbygd inngangsparti og romslig bad.
I stue er det koselig gasspeis og stue innbyr også til varierte møbleringsmuligheter.
Det ene soverommet er oppdelt i to mindre rom, men kan enkelt tilbakeføres til opprinnelig løsning.
Badet er romslig og har både dusjnisje, servantinnredning med 4 skapdører og overskap, samt hjørnebadekar som venter på å bli fylt opp av varmt vann og masse herlig skum, slik at du kan slappe av der.
Leiligheten fremstår som ivaretatt og foran den store terrassen er det pent beplantet.
Carport med låsbar bod i umiddelbar nærhet til leiligheten.
Dersom oppsatt visningstidspunkt ikke passer, ta kontakt for avklaring av eventuell privatvisning.
Mangler du egenkapital? Boligen kan kjøpes med Finit Deleie.
I stue er det koselig gasspeis og stue innbyr også til varierte møbleringsmuligheter.
Det ene soverommet er oppdelt i to mindre rom, men kan enkelt tilbakeføres til opprinnelig løsning.
Badet er romslig og har både dusjnisje, servantinnredning med 4 skapdører og overskap, samt hjørnebadekar som venter på å bli fylt opp av varmt vann og masse herlig skum, slik at du kan slappe av der.
Leiligheten fremstår som ivaretatt og foran den store terrassen er det pent beplantet.
Carport med låsbar bod i umiddelbar nærhet til leiligheten.
Dersom oppsatt visningstidspunkt ikke passer, ta kontakt for avklaring av eventuell privatvisning.
Mangler du egenkapital? Boligen kan kjøpes med Finit Deleie.
NB: Knappen for å vise hele beskrivelsen har kun en visuell effekt.
NB: Knappen for å vise hele beskrivelsen har kun en visuell effekt.
Salgsoppgaven beskriver vesentlig og lovpålagt informasjon om eiendommen
Se komplett salgsoppgaveNyttige lenker
Nærområdet
EIE Eiendomsmegling Ålesund
Annonseinformasjon
| FINN-kode | 421334506 |
|---|---|
| Sist endret | 17. okt. 2025 07:02 |
| Referanse | 17250125 |
Annonsene kan være mangelfulle i forhold til lovpålagt opplysningsplikt. Før bindende avtale inngås oppfordres interessenter til å innhente komplett informasjon fra meglerforetaket, selger eller utleier.



































