Bildegalleri

Flott klassisk enebolig med panorama fjordutsikt, hybel m/egen inngang, dobbelt garasje, store solrike terrasser, 2 nye bad, samt stor barnevennlig flat gressplen høyt hevet over veien!
Inaktiv
HOLMENKOLLEN
Flott enebolig m/hybel+ dbl. garasje signert Lorentz Gedde-Dahl. Panorama fjordutsikt, solrikt, terrasser, barnevennlig!
Prisantydning17 500 000 kr
Nøkkelinfo
- Boligtype
- Enebolig
- Eieform
- Selveier
- Soverom
- 4
- Internt bruksareal
- 324 m² (BRA-i)
- Bruksareal
- 324 m²
- Balkong/Terrasse
- 62 m² (TBA)
- Etasje
- 2
- Byggeår
- 1990
- Energimerking
- D - Oransje
- Rom
- 7
- Tomteareal
- 1 000 m² (eiet)
Fasiliteter
Alarm
Balkong/Terrasse
Barnevennlig
Bredbåndstilknytning
Garasje/P-plass
Hage
Kjæledyr tillatt
Ingen gjenboere
Kabel-TV
Offentlig vann/kloakk
Parkett
Peis/Ildsted
Rolig
Utsikt
Bademulighet
Turterreng
Lademulighet
Visning
Alle våre visninger har obligatorisk påmelding.
Dette gjør vi for å kunne gi deg og andre visningsdeltakere en best mulig opplevelse og service knyttet til gjennomføring av visningen. Velkommen!
VisningspåmeldingOm boligen
- Påkostet enebolig fra 1990 signert Lorentz Gedde-Dahl
- Strålende panoramautsikt over deler av Oslofjorden, Bærumsmarka og Nordmarka
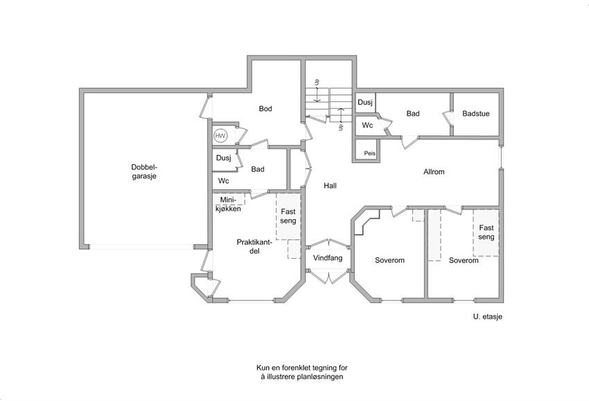
- Attraktiv hybel m/egen inngang
- Solrik og særdeles barnevennlig flat gressplen høyt hevet over veien
- Store vindusflater m/særdeles godt lysinnslipp i alle oppholdsrom
- Store solrike terrasser (tot. ca. 60 kvm.)
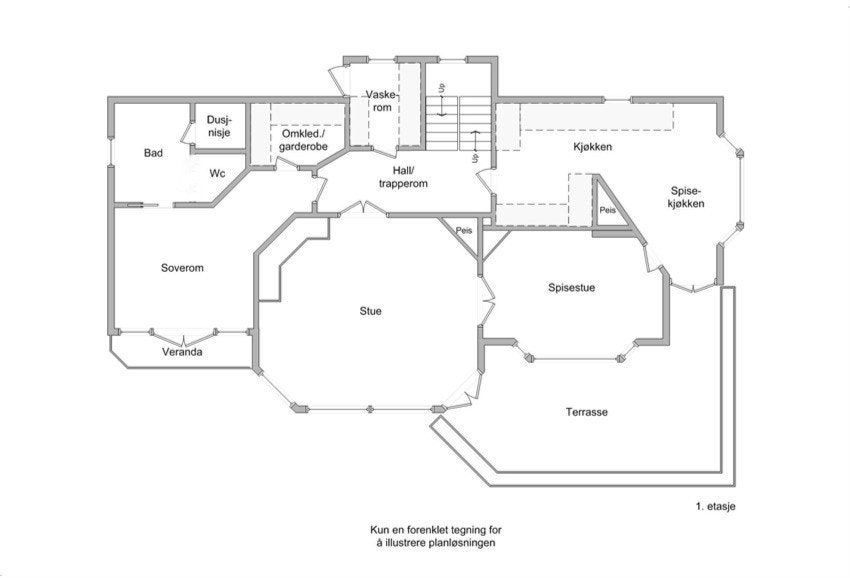
- Romslige oppholdsrom og store plan på ca. 160 kvm. hver seg
- Et solid bygg m/blant annet betong etasjeskillere
- Div. påkostninger senere år m/bl.a. rehabilitering av 2 bad, terrasse, div. elektrisk, 2 varmepumper, div. innredning etc.
- Rikt på flotte detaljer og spesialtilpassede innredninger
- Meget god bodplass i alle etasjer + godt lagringsloft på ca. 30 kvm.
- Dobbelt garasje (ca. 40 kvm.) m/lagringsplass og inngang direkte i boligen.
- Strålende panoramautsikt over deler av Oslofjorden, Bærumsmarka og Nordmarka
- Attraktiv hybel m/egen inngang
- Solrik og særdeles barnevennlig flat gressplen høyt hevet over veien
- Store vindusflater m/særdeles godt lysinnslipp i alle oppholdsrom
- Store solrike terrasser (tot. ca. 60 kvm.)
- Romslige oppholdsrom og store plan på ca. 160 kvm. hver seg
- Et solid bygg m/blant annet betong etasjeskillere
- Div. påkostninger senere år m/bl.a. rehabilitering av 2 bad, terrasse, div. elektrisk, 2 varmepumper, div. innredning etc.
- Rikt på flotte detaljer og spesialtilpassede innredninger
- Meget god bodplass i alle etasjer + godt lagringsloft på ca. 30 kvm.
- Dobbelt garasje (ca. 40 kvm.) m/lagringsplass og inngang direkte i boligen.
NB: Knappen for å vise hele beskrivelsen har kun en visuell effekt.
NB: Knappen for å vise hele beskrivelsen har kun en visuell effekt.
Salgsoppgaven beskriver vesentlig og lovpålagt informasjon om eiendommen
Se komplett salgsoppgaveNærområdet
Sem & Johnsen
Boliger utenom det vanlige
Annonseinformasjon
| FINN-kode | 421322528 |
|---|---|
| Sist endret | 23. apr. 2026 08:07 |
| Referanse | 20-25-1000 |
Annonsene kan være mangelfulle i forhold til lovpålagt opplysningsplikt. Før bindende avtale inngås oppfordres interessenter til å innhente komplett informasjon fra meglerforetaket, selger eller utleier.














































































