Bildegalleri

Velkommen til koselige Sandefjordgata!
Solgt
SAGENE
Nydelig 2-roms med vestvendt balkong - rolig beliggenhet - genial planløsning - vv. og oppvarming inkl. i leie - må sees
Prisantydning4 500 000 kr
Nøkkelinfo
- Boligtype
- Leilighet
- Eieform
- Andel
- Soverom
- 1
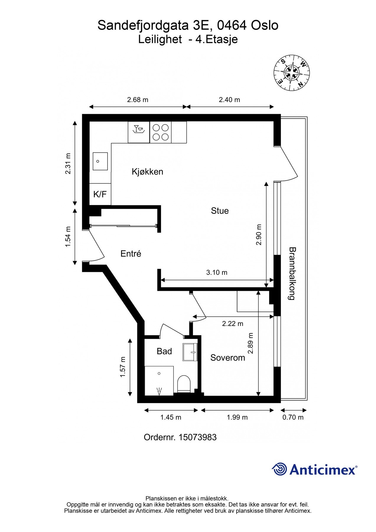
- Internt bruksareal
- 33 m² (BRA-i)
- Bruksareal
- 36 m²
- Eksternt bruksareal
- 3 m² (BRA-e)
- Etasje
- 4
- Byggeår
- 1940
- Energimerking
- E - Mørkegrønn
- Rom
- 2
- Tomteareal
- 2 189 m²
Fasiliteter
Balkong/Terrasse
Offentlig vann/kloakk
Turterreng
Utsikt
Vaktmester-/vektertjeneste
Fellesvaskeri
Sentralt
Bredbåndstilknytning
Moderne
Rolig
Om boligen
Velkommen til denne koselige leiligheten!
Dette er en nydelig 2-roms, der du med en gang får den gode følelsen. Du vet, når alt bare stemmer og det ikke har noe med standarden å gjøre. Ikke for det - standarden er bra den altså, men det er noen steder som bare gir en umiddelbar godfølelse når du kommer inn.
Litt mer konkret kan vi si at planløsningen er meget bra, og at leiligheten føles større enn den er. Den har kvaliteter som vestvendt balkong med sol til solnedgang, og oppe i 4. etg er lyset utmerket. Det er gjort flere oppgraderinger de siste årene, alt godt dokumentert av dagens eier.
Borettslaget er veldig bra, med god oversikt og økonomi. Det er hyggelige fellesområder med benker og bord, og hele eiendommen gir et solid inntrykk. Varmt vann og oppvarming er inkludert i felleskostnadene, så her ligger alt til rette for et forutsigbart bolighold.
Den ligger sentralt til på Sagene, med kort vei til alt du trenger enten det er buss, butikker eller et sted å spise.
Velkommen!
Dette er en nydelig 2-roms, der du med en gang får den gode følelsen. Du vet, når alt bare stemmer og det ikke har noe med standarden å gjøre. Ikke for det - standarden er bra den altså, men det er noen steder som bare gir en umiddelbar godfølelse når du kommer inn.
Litt mer konkret kan vi si at planløsningen er meget bra, og at leiligheten føles større enn den er. Den har kvaliteter som vestvendt balkong med sol til solnedgang, og oppe i 4. etg er lyset utmerket. Det er gjort flere oppgraderinger de siste årene, alt godt dokumentert av dagens eier.
Borettslaget er veldig bra, med god oversikt og økonomi. Det er hyggelige fellesområder med benker og bord, og hele eiendommen gir et solid inntrykk. Varmt vann og oppvarming er inkludert i felleskostnadene, så her ligger alt til rette for et forutsigbart bolighold.
Den ligger sentralt til på Sagene, med kort vei til alt du trenger enten det er buss, butikker eller et sted å spise.
Velkommen!
NB: Knappen for å vise hele beskrivelsen har kun en visuell effekt.
NB: Knappen for å vise hele beskrivelsen har kun en visuell effekt.
Salgsoppgaven beskriver vesentlig og lovpålagt informasjon om eiendommen
Se komplett salgsoppgaveNærområdet
EIE eiendomsmegling Ullevål & Sagene
Annonseinformasjon
| FINN-kode | 421158342 |
|---|---|
| Sist endret | 28. okt. 2025 08:10 |
| Referanse | 15251149 |
Annonsene kan være mangelfulle i forhold til lovpålagt opplysningsplikt. Før bindende avtale inngås oppfordres interessenter til å innhente komplett informasjon fra meglerforetaket, selger eller utleier.


























