Bildegalleri

Det er parkering i en frittstående dobbelgarasje fra 2015. Garasjen har sidedør, innlagt strøm og et areal på ca. 46 kvm. I dag er garasjen innredet med et hendig verksted og lagringsloft over garasjen.
Solgt
Falkum/ Bakken
Klassisk enebolig ved blindvei. Dobbelgarasje, fin utsikt og vakkert uteareal. Populært område, rett ved Bakkestranda.
Prisantydning4 590 000 kr
Nøkkelinfo
- Boligtype
- Enebolig
- Eieform
- Eier (Selveier)
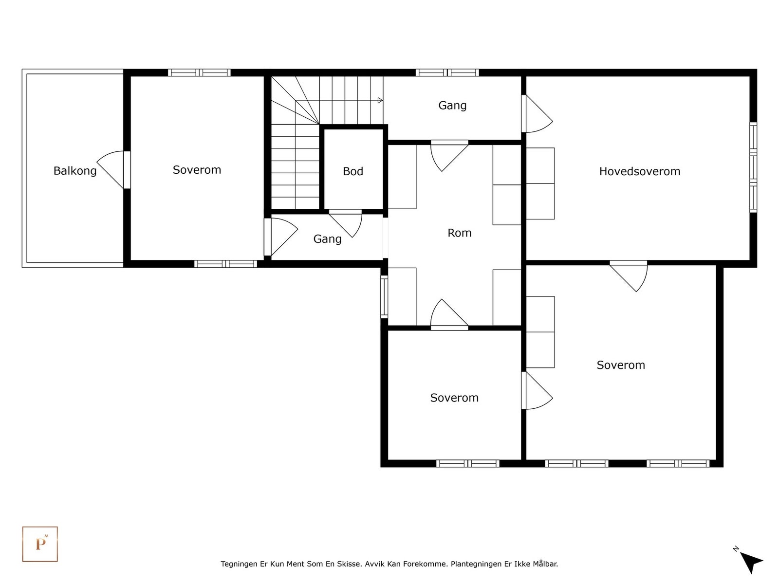
- Soverom
- 4
- Internt bruksareal
- 178 m² (BRA-i)
- Bruksareal
- 216 m²
- Eksternt bruksareal
- 38 m² (BRA-e)
- Balkong/Terrasse
- 41 m² (TBA)
- Byggeår
- 1895
- Energimerking
- G - Gul
- Tomteareal
- 669 m² (eiet)
Fasiliteter
Barnevennlig
Balkong/Terrasse
Garasje/P-plass
Offentlig vann/kloakk
Ingen gjenboere
Turterreng
Utsikt
Rolig
Bademulighet
Om boligen
Sverres gate 8 - Er en klassisk og romslig enebolig med populær beliggenhet på Bakken. Her bor man i et etablert område, rett ved barnehage og Bakkestranda. Det er kort vei til sentrum, og boligen ligger ved en stille og rolig blindvei. Boligen har et vakkert uteområde, med drivhus og frodig beplantning i en inngjerdet hage. Varme dager nytes til fulle på to herlige uteplasser; en romslig terrasse ved inngangen og på en trivelig balkong med vidstrakt utsikt.
Opprinnelig fra 1895 har boligen klassiske rosetter, god takhøyde og store krysspostvinduer. Planløsningen går over to etasjer, med tre stuer og hele fire soverom. To av stuene har ildsteder, og på kjøkkenet er det godt med skapplass. Badet er utstyrt med gulvvarme, og boligen har vaskerom, nyere dobbelgarasje og en bod klargjort til bad.
Velkommen til en hyggelig visning!
Opprinnelig fra 1895 har boligen klassiske rosetter, god takhøyde og store krysspostvinduer. Planløsningen går over to etasjer, med tre stuer og hele fire soverom. To av stuene har ildsteder, og på kjøkkenet er det godt med skapplass. Badet er utstyrt med gulvvarme, og boligen har vaskerom, nyere dobbelgarasje og en bod klargjort til bad.
Velkommen til en hyggelig visning!
NB: Knappen for å vise hele beskrivelsen har kun en visuell effekt.
NB: Knappen for å vise hele beskrivelsen har kun en visuell effekt.
Salgsoppgaven beskriver vesentlig og lovpålagt informasjon om eiendommen
Se komplett salgsoppgaveNyttige lenker
Nærområdet
PrivatMegleren Telemark
Kun det beste på dine vegne
Annonseinformasjon
| FINN-kode | 421113091 |
|---|---|
| Sist endret | 13. sep. 2025 11:04 |
| Referanse | 201250096 |
Annonsene kan være mangelfulle i forhold til lovpålagt opplysningsplikt. Før bindende avtale inngås oppfordres interessenter til å innhente komplett informasjon fra meglerforetaket, selger eller utleier.















































































