Bildegalleri

EIE eiendomsmegling ved Amrinder Singh har gleden av å presentere Andersbakkan 92.
Solgt
Heimdal/Lund Østre
Lekker og påkostet 3-roms selveier fra 2020. Sørvendt balkong. Vannbåren gulvvarme. Nært metrobuss. Parkering*.
Prisantydning2 890 000 kr
Nøkkelinfo
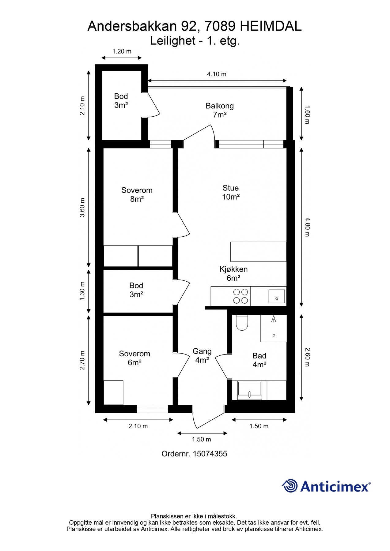
- Boligtype
- Leilighet
- Eieform
- Eier (Selveier)
- Soverom
- 2
- Internt bruksareal
- 45 m² (BRA-i)
- Bruksareal
- 48 m²
- Eksternt bruksareal
- 3 m² (BRA-e)
- Balkong/Terrasse
- 7 m² (TBA)
- Etasje
- 1
- Byggeår
- 2020
- Energimerking
- B - Mørkegrønn
- Rom
- 3
- Tomt
- Eiet
Fasiliteter
Barnevennlig
Balkong/Terrasse
Garasje/P-plass
Kabel-TV
Heis
Offentlig vann/kloakk
Parkett
Turterreng
Utsikt
Bredbåndstilknytning
Moderne
Rolig
Balansert ventilasjon
Om boligen
EIE eiendomsmegling v/ Amrinder Singh har gleden av å presentere en moderne og påkostet 3-roms selveierleilighet - attraktivt beliggende i høy 1. etasje på populære Lund Østre.
Boligen ble oppført i 2020 og fremstår som svært innbydende med gjennomgående høy standard, smakfulle oppgraderinger og en gjennomtenkt planløsning. Her får du en solrik sørvendt balkong, moderne fasiliteter og en beliggenhet som kombinerer naturnær ro med kort vei til alt av servicetilbud.
Høydepunkter du bør merke deg:
- Nybygg fra 2020 med lave bokostnader
- Vannbåren gulvvarme i alle oppholdsrom
- Kvalifiserer til grønt boliglån
- Stilrent kjøkken med kjøkkenøy og integrerte hvitevarer
- Flere påkostede oppgraderinger utover standardleveranse
- Kabel-TV og internett inkludert i felleskostnader
- Solrik, sørvendt balkong med gode solforhold
- Innvendig og utvendig bod
- Kun 5 minutters gange til metrobuss med direkteforbindelse til sentrum
- Mulighet for leie av garasjeplass (kr 2.607,-/mnd)
Boligen ble oppført i 2020 og fremstår som svært innbydende med gjennomgående høy standard, smakfulle oppgraderinger og en gjennomtenkt planløsning. Her får du en solrik sørvendt balkong, moderne fasiliteter og en beliggenhet som kombinerer naturnær ro med kort vei til alt av servicetilbud.
Høydepunkter du bør merke deg:
- Nybygg fra 2020 med lave bokostnader
- Vannbåren gulvvarme i alle oppholdsrom
- Kvalifiserer til grønt boliglån
- Stilrent kjøkken med kjøkkenøy og integrerte hvitevarer
- Flere påkostede oppgraderinger utover standardleveranse
- Kabel-TV og internett inkludert i felleskostnader
- Solrik, sørvendt balkong med gode solforhold
- Innvendig og utvendig bod
- Kun 5 minutters gange til metrobuss med direkteforbindelse til sentrum
- Mulighet for leie av garasjeplass (kr 2.607,-/mnd)
NB: Knappen for å vise hele beskrivelsen har kun en visuell effekt.
NB: Knappen for å vise hele beskrivelsen har kun en visuell effekt.
Salgsoppgaven beskriver vesentlig og lovpålagt informasjon om eiendommen
Se komplett salgsoppgaveNyttige lenker
Nærområdet
EIE eiendomsmegling Heimdal
Annonseinformasjon
| FINN-kode | 420705260 |
|---|---|
| Sist endret | 17. sep. 2025 07:42 |
| Referanse | 97251109 |
Annonsene kan være mangelfulle i forhold til lovpålagt opplysningsplikt. Før bindende avtale inngås oppfordres interessenter til å innhente komplett informasjon fra meglerforetaket, selger eller utleier.




























