Bildegalleri

Velkommen til Nedre Skøyen vei 14 - Presentert av Renate F. Fløan og Fredrik Buer Moe v/Nordvik Majorstuen!
Solgt
Skøyen
Lys og moderne 3r hjørneleilighet fra 2008 - To balkonger (18kvm og 8kvm) vendt mot sydvest - Garasje m/lader og heis
Prisantydning9 750 000 kr
Nøkkelinfo
- Boligtype
- Leilighet
- Eieform
- Selveier
- Soverom
- 2
- Internt bruksareal
- 83 m² (BRA-i)
- Bruksareal
- 88 m²
- Eksternt bruksareal
- 5 m² (BRA-e)
- Balkong/Terrasse
- 26 m² (TBA)
- Etasje
- 3
- Byggeår
- 2008
- Energimerking
- D - Mørkegrønn
- Rom
- 3
- Tomteareal
- 13 949 m² (eiet)
Fasiliteter
Balkong/Terrasse
Barnevennlig
Bredbåndstilknytning
Garasje/P-plass
Heis
Kjæledyr tillatt
Offentlig vann/kloakk
Parkett
Rolig
Sentralt
Utsikt
Vaktmester-/vektertjeneste
Turterreng
Lademulighet
Balansert ventilasjon
Om boligen
Lys og moderne 3-roms hjørneleilighet med etterspurt beliggenhet på Skøyen med nærhet til "alt"! Leiligheten ligger i velholdt bygg fra 2008 med flotte fasiliteter som garasje med lader, heis og to solrike balkonger på hhv. 18 og 8 kvm vendt mot sydvest og vest.
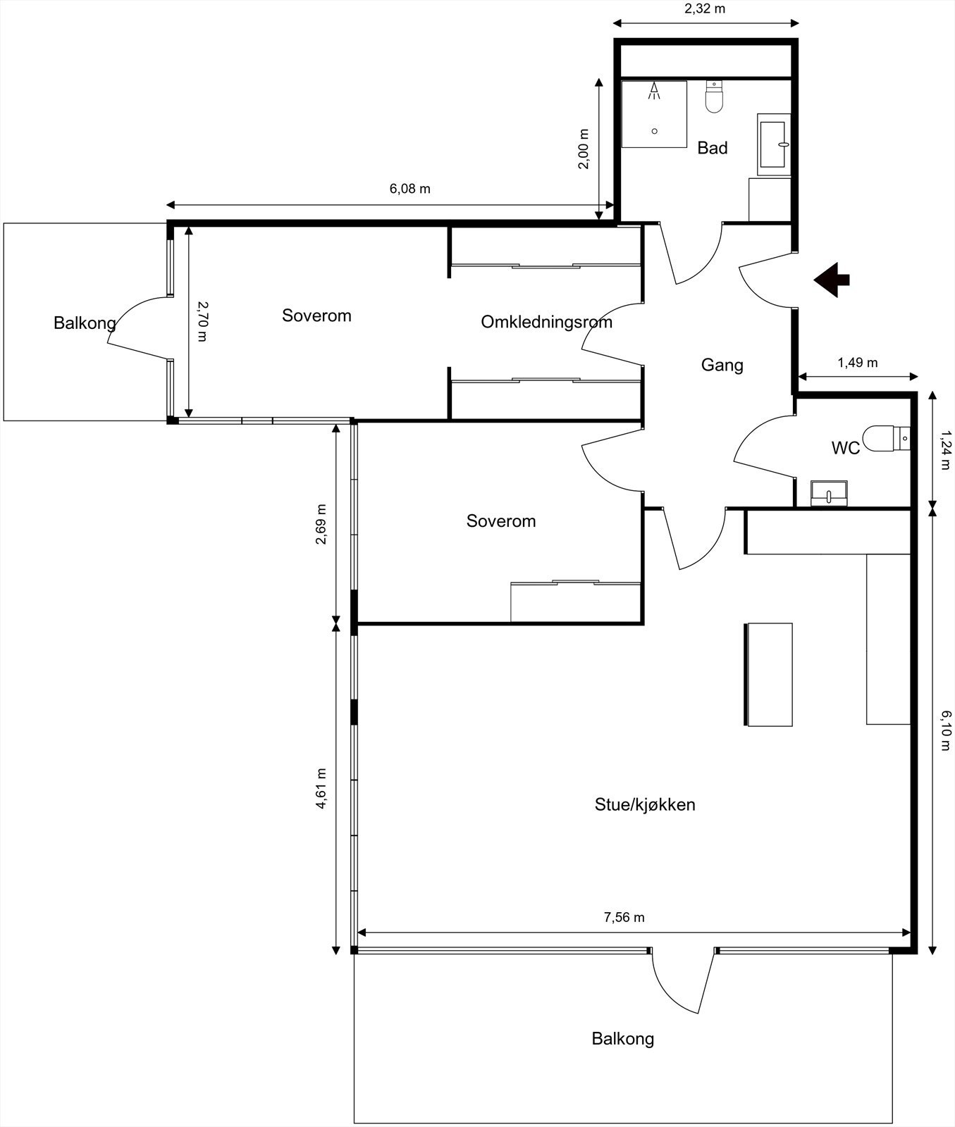
Boligen ligger på hjørnet i byggets 3. etasje med store vindusflater som skaper en lys og luftig atmosfære. Innhold: Romslig stue med delvis åpen kjøkkenløsning (mulighet for øy), 2 soverom hvorav master har walk-through garderobe og balkong, stort og delikat bad med wc + ekstra wc og entré.
Moderne 3r fra 2008
Garasjeplass m/lader
To solrike og store balkonger
Heis fra garasje til leilighetsplan
Fjernvarme og balansert ventilasjon
Meget god planløsning og intern beliggenhet
Sentralt, samtidig skjermet i bilfritt og frodig område
Boligen ligger på hjørnet i byggets 3. etasje med store vindusflater som skaper en lys og luftig atmosfære. Innhold: Romslig stue med delvis åpen kjøkkenløsning (mulighet for øy), 2 soverom hvorav master har walk-through garderobe og balkong, stort og delikat bad med wc + ekstra wc og entré.
Moderne 3r fra 2008
Garasjeplass m/lader
To solrike og store balkonger
Heis fra garasje til leilighetsplan
Fjernvarme og balansert ventilasjon
Meget god planløsning og intern beliggenhet
Sentralt, samtidig skjermet i bilfritt og frodig område
NB: Knappen for å vise hele beskrivelsen har kun en visuell effekt.
NB: Knappen for å vise hele beskrivelsen har kun en visuell effekt.
Salgsoppgaven beskriver vesentlig og lovpålagt informasjon om eiendommen
Se komplett salgsoppgaveNyttige lenker
Nærområdet
Nordvik Majorstuen
Annonseinformasjon
| FINN-kode | 420666217 |
|---|---|
| Sist endret | 27. okt. 2025 13:47 |
| Referanse | 8-0378/25 |
Annonsene kan være mangelfulle i forhold til lovpålagt opplysningsplikt. Før bindende avtale inngås oppfordres interessenter til å innhente komplett informasjon fra meglerforetaket, selger eller utleier.





































