Bildegalleri

Kristoffer Mjåtveit har gleden av å presentere Maries gate 6!
Majorstuen/Vestkanttorget
Lekker, moderne og arealeffektiv leilighet med balkong -Kjøkken og overflater fra 2024 -VV inkl -Perfekt førstegangskjøp
Prisantydning4 490 000 kr
Nøkkelinfo
- Boligtype
- Leilighet
- Eieform
- Eier (Selveier)
- Soverom
- 0
- Internt bruksareal
- 33 m² (BRA-i)
- Bruksareal
- 35 m²
- Eksternt bruksareal
- 2 m² (BRA-e)
- Balkong/Terrasse
- 2 m² (TBA)
- Etasje
- 2
- Byggeår
- 1967
- Energimerking
- G - Rød
- Rom
- 1
- Tomteareal
- 1 047 m² (festet)
- Festeavgift
- 120 000 kr
Fasiliteter
Balkong/Terrasse
Barnevennlig
Bredbåndstilknytning
Fellesvaskeri
Heis
Kabel-TV
Offentlig vann/kloakk
Rolig
Sentralt
Turterreng
Visning
søndag, 11. januar
15:15 – 16:00
Alle våre visninger har påmelding. På denne måten sikrer vi at megler har god oversikt og tid til å imøtekomme alle interessenter. Meld deg på visning ved å trykke på lenken visningspåmelding.
VisningspåmeldingOm boligen
Lekker, innbydende og nyoppusset leilighet som i sin helhet vender mot gårdsrom. Leiligheten ligger i en ettertraktet og rolig gate på Majorstuen. Her bor du midt i smørøyet med umiddelbar nærhet til Vestkanttorvet, Frognerparken, offentlig kommunikasjon og alt av servicefasiliteter.
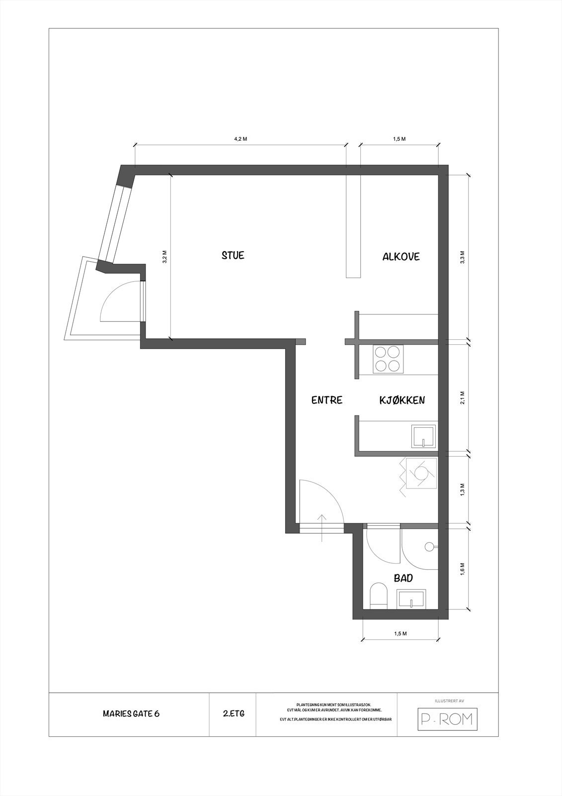
Leiligheten har en arealeffektiv planløsning, og inneholder entré, separat kjøkken, stue med alkove og flislagt bad.
Leiligheten har en arealeffektiv planløsning, og inneholder entré, separat kjøkken, stue med alkove og flislagt bad.
- Nordvestvendt balkong
- Nytt, moderne kjøkken
- Tidsriktige overflater pusset opp i 2024
- God takhøyde på 2,63 meter
- Skjermet alkoveløsning
- Godt med oppbevaringsplass/skapplass
- En rekke smarte løsninger
- Heis
- Opplegg for vaskemaskin i leiligheten og fellesvaskeri
- Lave felleskostnader med varmtvann og internett inkl.
- Mulighet for leie av parkeringsplass
NB: Knappen for å vise hele beskrivelsen har kun en visuell effekt.
NB: Knappen for å vise hele beskrivelsen har kun en visuell effekt.
Salgsoppgaven beskriver vesentlig og lovpålagt informasjon om eiendommen
Se komplett salgsoppgaveNyttige lenker
Nærområdet
Nordvik St.Hanshaugen
Annonseinformasjon
| FINN-kode | 420653182 |
|---|---|
| Sist endret | 05. jan. 2026 12:12 |
| Referanse | 5-0322/25 |
Annonsene kan være mangelfulle i forhold til lovpålagt opplysningsplikt. Før bindende avtale inngås oppfordres interessenter til å innhente komplett informasjon fra meglerforetaket, selger eller utleier.


































