Bildegalleri

Innholdsrik familiebolig på solrik tomt med flott utsikt og godt naboskap.
Bjørkelangen
Stor og innholdsrik familiebolig med flott utsikt, dobbelgarasje og herlige uteområder. Kjeller m/inngang.
Prisantydning5 550 000 kr
Nøkkelinfo
- Boligtype
- Enebolig
- Eieform
- Selveier
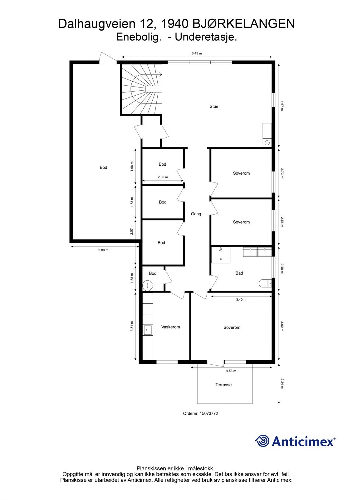
- Soverom
- 3
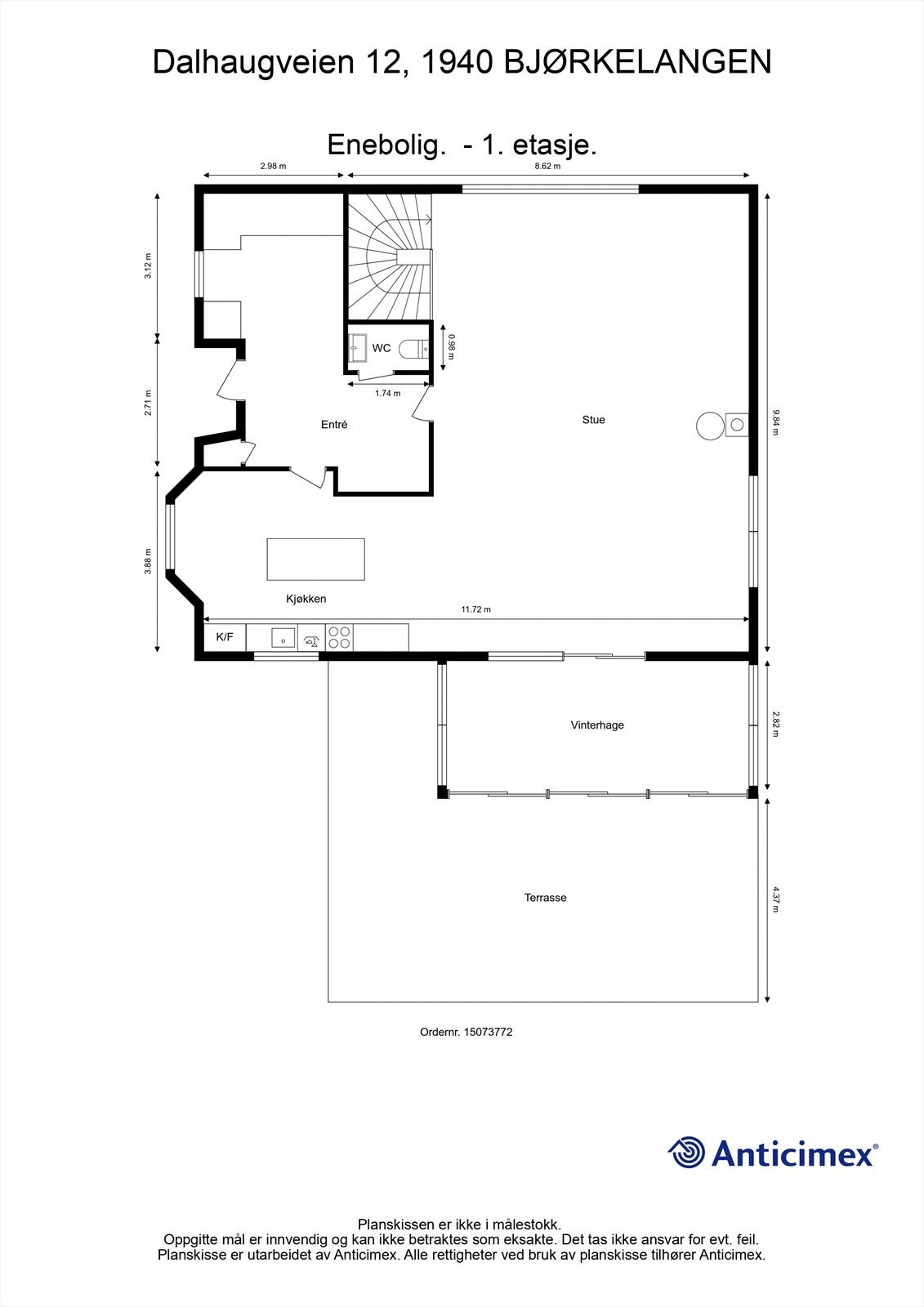
- Internt bruksareal
- 257 m² (BRA-i)
- Bruksareal
- 326 m²
- Eksternt bruksareal
- 51 m² (BRA-e)
- Innglasset balkong
- 18 m² (BRA-b)
- Balkong/Terrasse
- 49 m² (TBA)
- Etasje
- 2
- Byggeår
- 1984
- Energimerking
- Rom
- 6
- Tomteareal
- 926 m² (eiet)
Fasiliteter
Balkong/Terrasse
Barnevennlig
Bredbåndstilknytning
Garasje/P-plass
Hage
Kjæledyr tillatt
Kabel-TV
Offentlig vann/kloakk
Peis/Ildsted
Rolig
Sentralt
Utsikt
Bademulighet
Turterreng
Lademulighet
Visning
tirsdag, 12. mai
18:00 – 19:00
For å delta på visning, ber vi om at du melder deg på. Da sikrer vi at du får nødvendig informasjon og at det er satt av tilstrekkelig med tid. Kontakt megler dersom annet tidspunkt ønskes. Husk å lese salgsoppgaven før visningen, så du stiller forberedt. NB. Visning utgår dersom det ikke er noen påmeldte. Påmelding ønskes i god tid.
Ønsker du kun å bli holdt orientert, kan du fra eiendommens hjemmeside få varsel om solgtpris, eller kontakte megler.
VisningspåmeldingOm boligen
Velkommen til en romslig og gjennomgående oppgradert familiebolig, med god planløsning, store utearealer og flott utsikt. Her får du et hjem som innbyr til både hyggelige sosiale stunder og rolige øyeblikk, i et fredelig og familievennlig miljø.
Kort oppsummert:
- Innholdsrik familiebolig med stor hage og flere solrike terrasser
- Flott utsikt og rolige omgivelser
- Betydelig oppgradert siste 5 år
- Dobbelgarasje og stor gårdsplass med belegningsstein
- Åpen og praktisk planløsning med lyse oppholdsrom og kjellerstue
- Tre soverom, hovedsoverom med utgang
- Vinterhage, peisovner og flere lune uteplasser
Her bor du i et fredelig og familievennlig nabolag, med alt tilrettelagt for å trives både inne og ute.
Kort oppsummert:
- Innholdsrik familiebolig med stor hage og flere solrike terrasser
- Flott utsikt og rolige omgivelser
- Betydelig oppgradert siste 5 år
- Dobbelgarasje og stor gårdsplass med belegningsstein
- Åpen og praktisk planløsning med lyse oppholdsrom og kjellerstue
- Tre soverom, hovedsoverom med utgang
- Vinterhage, peisovner og flere lune uteplasser
Her bor du i et fredelig og familievennlig nabolag, med alt tilrettelagt for å trives både inne og ute.
NB: Knappen for å vise hele beskrivelsen har kun en visuell effekt.
NB: Knappen for å vise hele beskrivelsen har kun en visuell effekt.
Salgsoppgaven beskriver vesentlig og lovpålagt informasjon om eiendommen
Se komplett salgsoppgaveNyttige lenker
Nærområdet
Krogsveen Løren
Verdien av en god megler.
Annonseinformasjon
| FINN-kode | 420644694 |
|---|---|
| Sist endret | 05. mai 2026 07:43 |
| Referanse | KR54.2566 |
Annonsene kan være mangelfulle i forhold til lovpålagt opplysningsplikt. Før bindende avtale inngås oppfordres interessenter til å innhente komplett informasjon fra meglerforetaket, selger eller utleier.

































































