Bildegalleri

EIE eiendomsmegling ved Amrinder Singh har gleden av å presentere Øystein Møylas veg 18C - en moderne og lekker 2-roms selveierleilighet fra 2017 i 1. etasje.
Solgt
Lerkendal/ Sorgenfri
Pen og moderne 2-roms leilighet fra 2017 med hjørnebeliggenhet. Stor terrasse på 15 m². Fjernvarme. Heis. Nært NTNU.
Prisantydning3 390 000 kr
Nøkkelinfo
- Boligtype
- Leilighet
- Eieform
- Eier (Selveier)
- Soverom
- 1
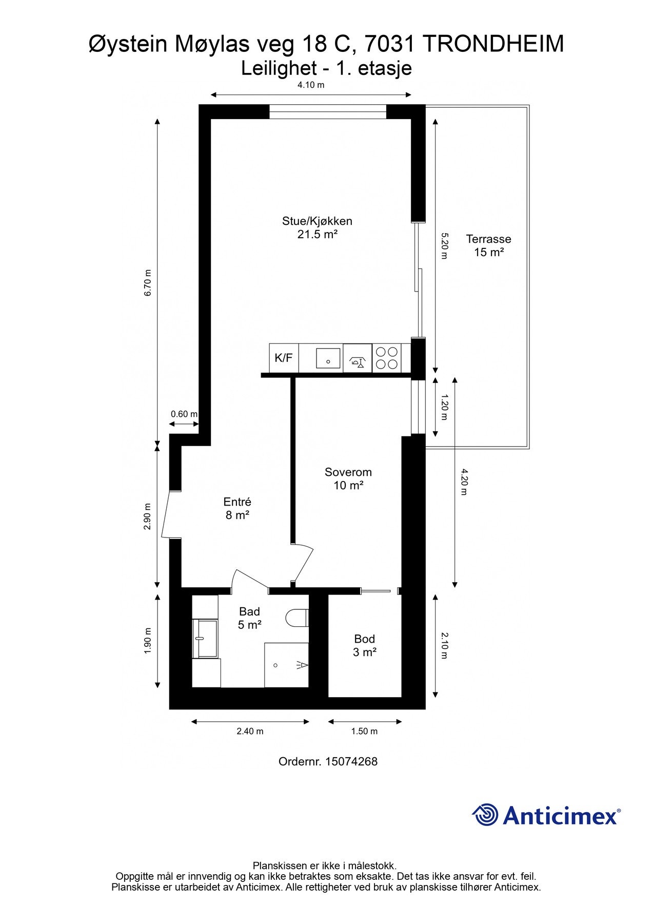
- Internt bruksareal
- 50 m² (BRA-i)
- Bruksareal
- 55 m²
- Eksternt bruksareal
- 5 m² (BRA-e)
- Balkong/Terrasse
- 15 m² (TBA)
- Etasje
- 1
- Byggeår
- 2017
- Energimerking
- C - Mørkegrønn
- Rom
- 2
- Tomt
- Eiet
Fasiliteter
Balkong/Terrasse
Kabel-TV
Heis
Offentlig vann/kloakk
Parkett
Turterreng
Sentralt
Bredbåndstilknytning
Moderne
Rolig
Balansert ventilasjon
Om boligen
EIE eiendomsmegling v/ Amrinder Singh har gleden av å presentere en pen og moderne 2-roms selveierleilighet fra 2017, med attraktiv beliggenhet.
Leiligheten ligger i høy 1. etasje i et nyere bygg, og har en god planløsning. Her får du en åpen stue-/kjøkkenløsning, romslig bad, og to boder - en innvendig og en ekstra bod på ca. 5 kvm i samme etasje. Beliggenheten er både sentral og tilbaketrukket, med kort vei til NTNU, St. Olavs hospital, Lerkendal og flotte turområder.
Dette er verdt å merke seg:
- Attraktiv og sentral beliggenhet i et område i vekst
- Praktisk plassert i høy 1. etasje med enkel adkomst
- Fjernvarme, kabel-TV og internett inkl. i felleskostnader
- Lavt strømforbruk og lave bokostnader
- Heis i bygget
- Solid takstrapport
- Gode solforhold fra ca. kl. 09 til 18:00 om sommeren
- Nærhet til NTNU, St. Olavs, Lerkendal og Trondheim sentrum
- Kort vei til kollektivtransport, dagligvare og rekreasjonsområder
- Tre gjesteparkeringsplasser ute
Velkommen til visning!
Leiligheten ligger i høy 1. etasje i et nyere bygg, og har en god planløsning. Her får du en åpen stue-/kjøkkenløsning, romslig bad, og to boder - en innvendig og en ekstra bod på ca. 5 kvm i samme etasje. Beliggenheten er både sentral og tilbaketrukket, med kort vei til NTNU, St. Olavs hospital, Lerkendal og flotte turområder.
Dette er verdt å merke seg:
- Attraktiv og sentral beliggenhet i et område i vekst
- Praktisk plassert i høy 1. etasje med enkel adkomst
- Fjernvarme, kabel-TV og internett inkl. i felleskostnader
- Lavt strømforbruk og lave bokostnader
- Heis i bygget
- Solid takstrapport
- Gode solforhold fra ca. kl. 09 til 18:00 om sommeren
- Nærhet til NTNU, St. Olavs, Lerkendal og Trondheim sentrum
- Kort vei til kollektivtransport, dagligvare og rekreasjonsområder
- Tre gjesteparkeringsplasser ute
Velkommen til visning!
NB: Knappen for å vise hele beskrivelsen har kun en visuell effekt.
NB: Knappen for å vise hele beskrivelsen har kun en visuell effekt.
Salgsoppgaven beskriver vesentlig og lovpålagt informasjon om eiendommen
Se komplett salgsoppgaveNyttige lenker
Nærområdet
EIE eiendomsmegling Heimdal

Julie Marie Vollan Brennvik
Eiendomsmeglerfullmektig | Sosiale medier ansvarlig
Annonseinformasjon
| FINN-kode | 420466339 |
|---|---|
| Sist endret | 19. aug. 2025 13:14 |
| Referanse | 97251107 |
Annonsene kan være mangelfulle i forhold til lovpålagt opplysningsplikt. Før bindende avtale inngås oppfordres interessenter til å innhente komplett informasjon fra meglerforetaket, selger eller utleier.



















