Bildegalleri

Krogsveen v/Christopher Sand ønsker velkommen til Markveien 7 Foto: Tor Harald Johannessen
Neperud
Innholdsrikt rekkehus med romslig terrasse og gode solforhold | 3 sov, 2 bad | Garasje | Kort vei til skole og barnehage
Prisantydning3 055 000 kr
Nøkkelinfo
- Boligtype
- Rekkehus
- Eieform
- Andel
- Soverom
- 3
- Internt bruksareal
- 113 m² (BRA-i)
- Bruksareal
- 136 m²
- Eksternt bruksareal
- 23 m² (BRA-e)
- Balkong/Terrasse
- 40 m² (TBA)
- Etasje
- 3
- Byggeår
- 1963
- Energimerking
- G - Rød
- Rom
- 4
- Tomteareal
- 8 700 m² (eiet)
Fasiliteter
Balkong/Terrasse
Barnevennlig
Bredbåndstilknytning
Garasje/P-plass
Hage
Ingen gjenboere
Offentlig vann/kloakk
Parkett
Peis/Ildsted
Rolig
Turterreng
Lademulighet
Visning
For å delta på visning, ber vi om at du melder deg på. Da sikrer vi at du får nødvendig informasjon og at det er satt av tilstrekkelig med tid. Kontakt megler dersom annet tidspunkt ønskes. Husk å lese salgsoppgaven før visningen, så du stiller forberedt. Visning utgår dersom det ikke er noen påmeldte. Ønsker du kun å bli holdt orientert, kan du fra eiendommens hjemmeside få varsel om solgtpris, eller kontakte megler.
VisningspåmeldingOm boligen
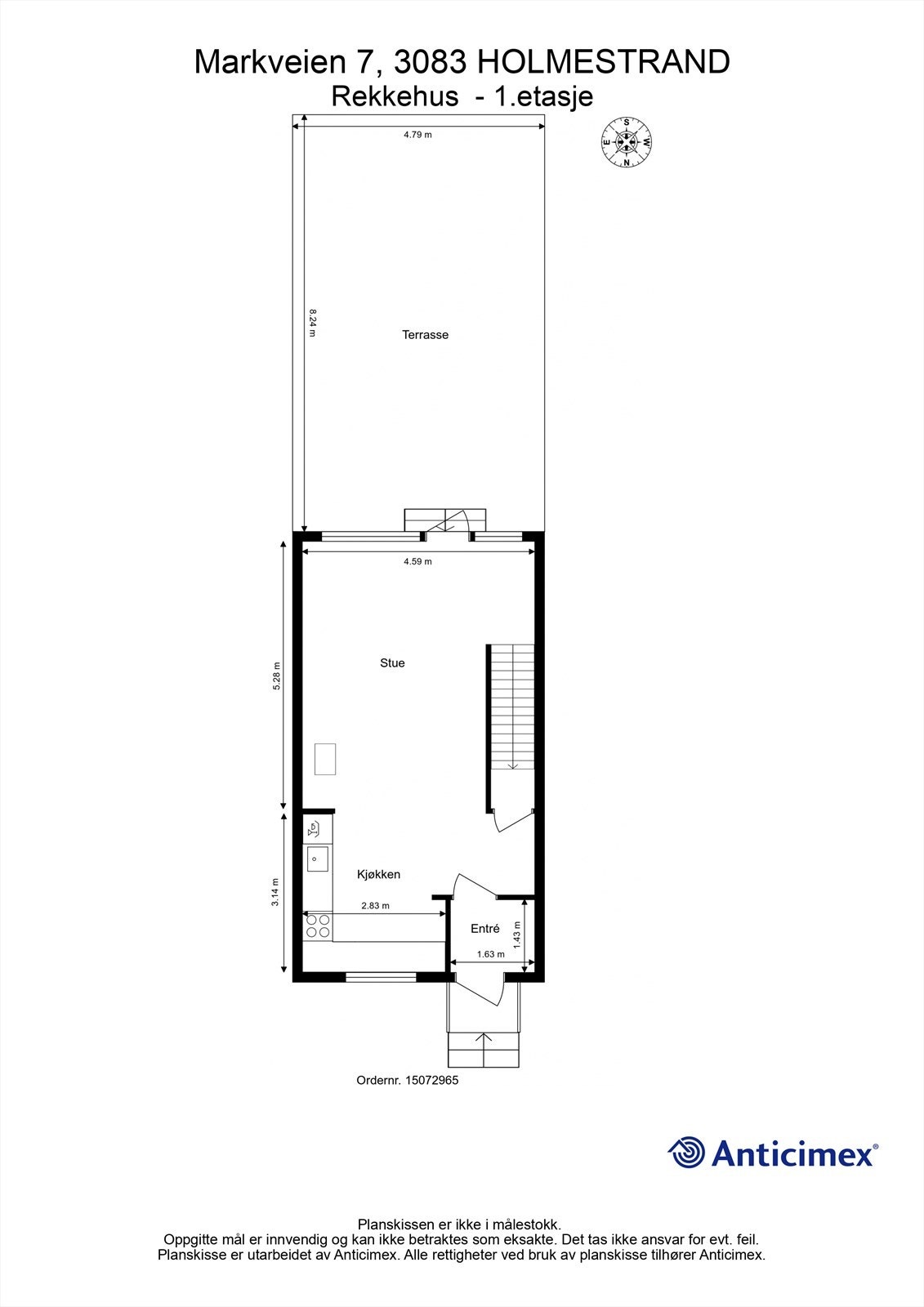
Markveien 7 - Rekkehus over 3 plan
- Romslig rekkehus over tre plan med god planløsning
- 3 soverom - 2 bad - separat vaskerom i kjeller
- Garasjeplass i felles rekke og flere gjesteparkeringer
- Mulighet for El-billader
- Solrik og romslig terrasse på ca. 40kvm med utgang fra stue
- Godt egnet for barnefamilier med flere rom og soner
- Oppvarming med varmepumpe, peisovn og varmekabler
- Oppgradert kjøkken med nyere benk og armatur (2023)
- Gode oppbevaringsmuligheter - flere boder og kaldtloft
- Beliggende i et rolig boligfelt i et etablert borettslag
- Kort gangavstand til dagligvare og diverse servicetilbud
- Kort vei til skole, barnehage og kollektiv transport
- Rask tilkomst til E18
Velkommen til visning!
NB: Knappen for å vise hele beskrivelsen har kun en visuell effekt.
NB: Knappen for å vise hele beskrivelsen har kun en visuell effekt.
Salgsoppgaven beskriver vesentlig og lovpålagt informasjon om eiendommen
Se komplett salgsoppgaveNyttige lenker
Nærområdet
Krogsveen Drammen
Verdien av en god megler.
Annonseinformasjon
| FINN-kode | 420308809 |
|---|---|
| Sist endret | 24. feb. 2026 11:08 |
| Referanse | KR20.25221 |
Annonsene kan være mangelfulle i forhold til lovpålagt opplysningsplikt. Før bindende avtale inngås oppfordres interessenter til å innhente komplett informasjon fra meglerforetaket, selger eller utleier.




































