Bildegalleri

Eiendomsmegler Norge ved Kristian Lossius har gleden av å ønske deg velkommen til Gullvingeveien 113!
Hamrevann
En nyere, påkostet enebolig over 3 etasjer med 2 solrike terrasser. Carport med lader. Meget barnevennlig område.
Prisantydning6 990 000 kr
Nøkkelinfo
- Boligtype
- Enebolig
- Eieform
- Eier (Selveier)
- Soverom
- 4
- Internt bruksareal
- 175 m² (BRA-i)
- Bruksareal
- 182 m²
- Eksternt bruksareal
- 7 m² (BRA-e)
- Balkong/Terrasse
- 67 m² (TBA)
- Byggeår
- 2023
- Energimerking
- B - Rød
- Rom
- 6
- Tomteareal
- 223 m² (eiet)
Fasiliteter
Balkong/Terrasse
Garasje/P-plass
Peis/Ildsted
Rolig
Turterreng
Lademulighet
Om boligen
Eiendomsmegler Norge ved Kristian har gleden av å ønske deg velkommen til Gullvingeveien 113!
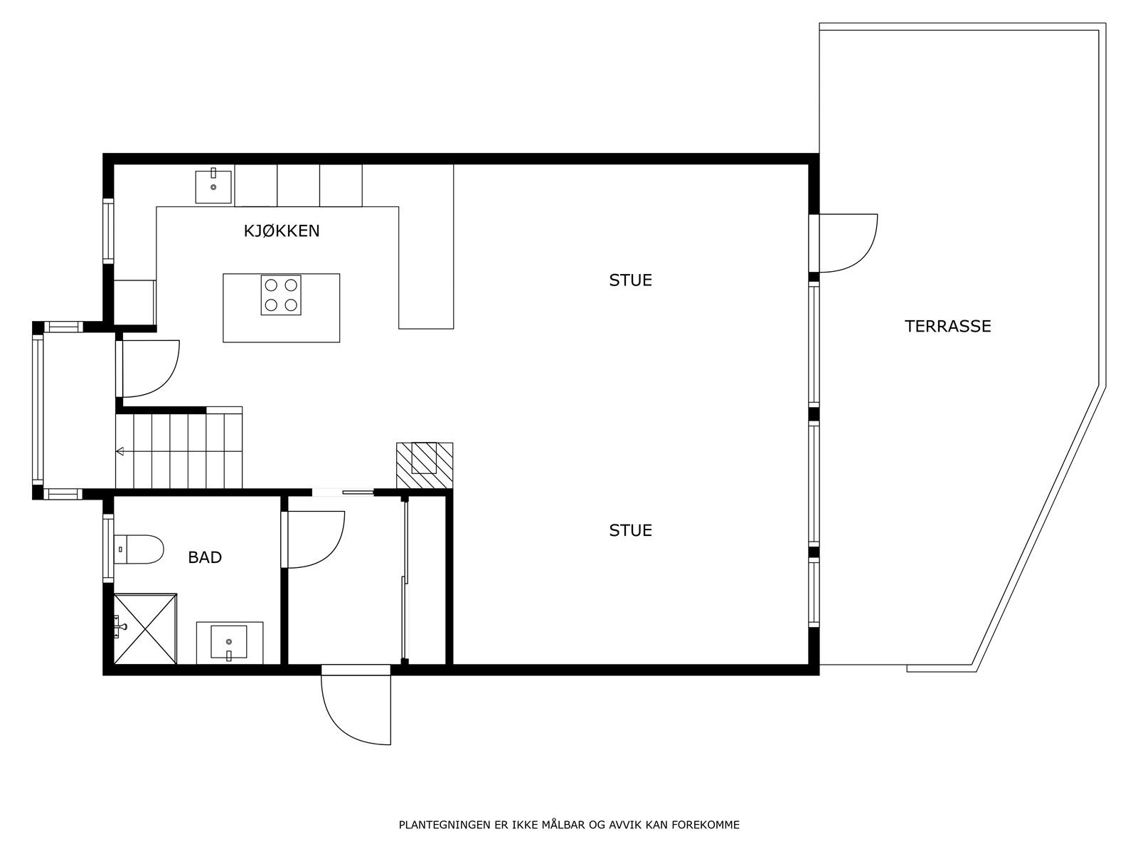
1. etg.: Flislagt gang. Stor skyvedørsgarderobe til oppbevaring. Meget romslig stue med plass til både sofagruppe og spisebord. Fra stuen er det utgang til solrik terrasse. Lekkert kjøkken som har godt med skap og benkeplass. Praktisk kjøkkenøy med oppbevaring. Ellers medfølger også integrerte hvitevarer. Flott flislagt bad med dusjhjørne, vegghengt toalett og servant med underskap.
2. etg.: 4 soverom hvorav hovedsoverom har inngang til walk in garderobe. Lekkert flislagt bad med dusjhjørne, badekar, vegghengt toalett og servant med underskuffer og overspeil.
3. etg.: Loftstue med plass til sofagruppe. Utgang til stor solrik takterrasse med flott utsikt. Utebod, en bod inne og gjestetoalett
1. etg.: Flislagt gang. Stor skyvedørsgarderobe til oppbevaring. Meget romslig stue med plass til både sofagruppe og spisebord. Fra stuen er det utgang til solrik terrasse. Lekkert kjøkken som har godt med skap og benkeplass. Praktisk kjøkkenøy med oppbevaring. Ellers medfølger også integrerte hvitevarer. Flott flislagt bad med dusjhjørne, vegghengt toalett og servant med underskap.
2. etg.: 4 soverom hvorav hovedsoverom har inngang til walk in garderobe. Lekkert flislagt bad med dusjhjørne, badekar, vegghengt toalett og servant med underskuffer og overspeil.
3. etg.: Loftstue med plass til sofagruppe. Utgang til stor solrik takterrasse med flott utsikt. Utebod, en bod inne og gjestetoalett
NB: Knappen for å vise hele beskrivelsen har kun en visuell effekt.
NB: Knappen for å vise hele beskrivelsen har kun en visuell effekt.
Salgsoppgaven beskriver vesentlig og lovpålagt informasjon om eiendommen
Se komplett salgsoppgaveNyttige lenker
Nærområdet
Eiendomsmegler Norge Kristiansand
Det viktigste stedet i Norge er der du bor
Annonseinformasjon
| FINN-kode | 420124204 |
|---|---|
| Sist endret | 05. nov. 2025 09:10 |
| Referanse | 50250105 |
Annonsene kan være mangelfulle i forhold til lovpålagt opplysningsplikt. Før bindende avtale inngås oppfordres interessenter til å innhente komplett informasjon fra meglerforetaket, selger eller utleier.





















































