Bildegalleri

Det er bare 5 min. gange så er dere ved Prestvannet som har bl.a. turstier og lysløype
Attraktiv beliggenhet I Toppen av øya I Godt vedlikeholdt I U.etg. garasjeplasser, verksted I Grenser mot grøntområder
Prisantydning8 950 000 kr
Nøkkelinfo
- Boligtype
- Enebolig
- Eieform
- Eier (Selveier)
- Soverom
- 3
- Internt bruksareal
- 181 m² (BRA-i)
- Bruksareal
- 284 m²
- Eksternt bruksareal
- 103 m² (BRA-e)
- Balkong/Terrasse
- 21 m² (TBA)
- Byggeår
- 1988
- Energimerking
- D - Gul
- Tomteareal
- 538 m² (eiet)
Fasiliteter
Barnevennlig
Balkong/Terrasse
Garasje/P-plass
Offentlig vann/kloakk
Peis/Ildsted
Turterreng
Sentralt
Rolig
Om boligen
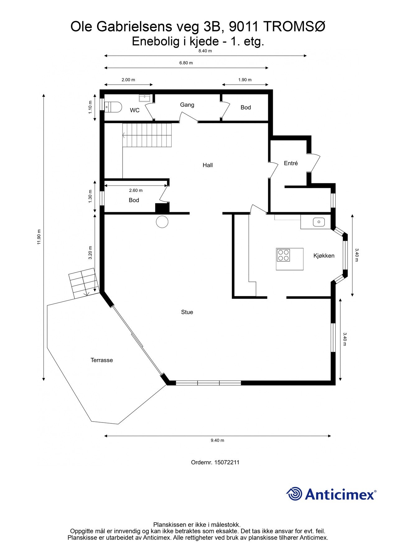
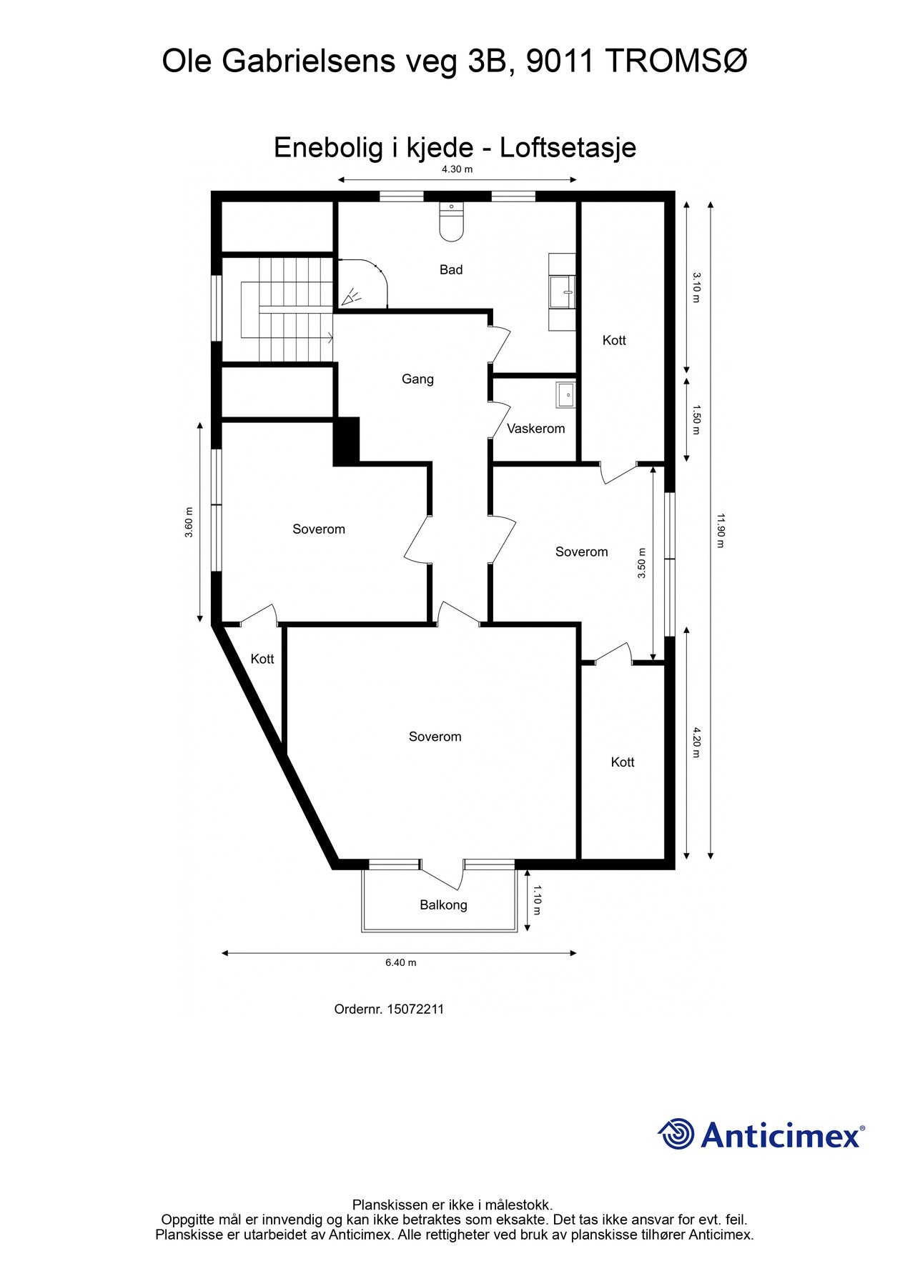
Her får dere en meget innholdsrik enebolig med en flott beliggenhet. Boligen har et areal på 284 kvm inkl. en underetasje med stor garasje, hobbyrom og boder. 1 etg.: Entre, hall, 2 boder, toalettrom, stor stue, spisestue, kjøkken med plass til spisebord. Loftetasjen har 3 meget romslige soverom, lofts gang, bad og vaskerom. Skjermete uteplasser, terrasser med gode solforhold. Boligen er godt vedlikeholdt, størrelsen på rommene gir en god romfølelse. Det er meget god lagringsplass i boder, garderober og i den innholdsrike u.etg.
Boligen ligger i enden av blindvei, i et rolig villastrøk på toppen av Tromsøya og grenser mot grøntarealer. Her kan du gå rett ut i skiløypa, eller nyte fine dager rundt Prestvannet. Gangavstand til sentrum, barne- og ungdomsskole. Boligen fremstår meget attraktiv for den som vil bo sentralt, rolig og ha god plass. Velkommen til visning!
Boligen ligger i enden av blindvei, i et rolig villastrøk på toppen av Tromsøya og grenser mot grøntarealer. Her kan du gå rett ut i skiløypa, eller nyte fine dager rundt Prestvannet. Gangavstand til sentrum, barne- og ungdomsskole. Boligen fremstår meget attraktiv for den som vil bo sentralt, rolig og ha god plass. Velkommen til visning!
NB: Knappen for å vise hele beskrivelsen har kun en visuell effekt.
NB: Knappen for å vise hele beskrivelsen har kun en visuell effekt.
Salgsoppgaven beskriver vesentlig og lovpålagt informasjon om eiendommen
Se komplett salgsoppgaveNærområdet
EIE eiendomsmegling Tromsø
Annonseinformasjon
| FINN-kode | 420101765 |
|---|---|
| Sist endret | 03. okt. 2025 04:01 |
| Referanse | 41251043 |
Annonsene kan være mangelfulle i forhold til lovpålagt opplysningsplikt. Før bindende avtale inngås oppfordres interessenter til å innhente komplett informasjon fra meglerforetaket, selger eller utleier.































