Bildegalleri

Velkommen til Bygdøy allé 65B!
Solgt
Sentralt på Frogner
Lekker toppleilighet over 2 plan med to takterrasser - Heis - Peis - Svært ettertraktet beliggenhet - Klassisk bygård
Prisantydning7 990 000 kr
Nøkkelinfo
- Boligtype
- Leilighet
- Eieform
- Eier (Selveier)
- Soverom
- 2
- Internt bruksareal
- 79 m² (BRA-i)
- Bruksareal
- 91 m²
- Eksternt bruksareal
- 12 m² (BRA-e)
- Balkong/Terrasse
- 21 m² (TBA)
- Etasje
- 5
- Byggeår
- 1899
- Energimerking
- G - Rød
- Rom
- 3
- Tomteareal
- 973 m² (eiet)
Fasiliteter
Takterrasse
Balkong/Terrasse
Bredbåndstilknytning
Heis
Offentlig vann/kloakk
Parkett
Sentralt
Utsikt
Turterreng
Om boligen
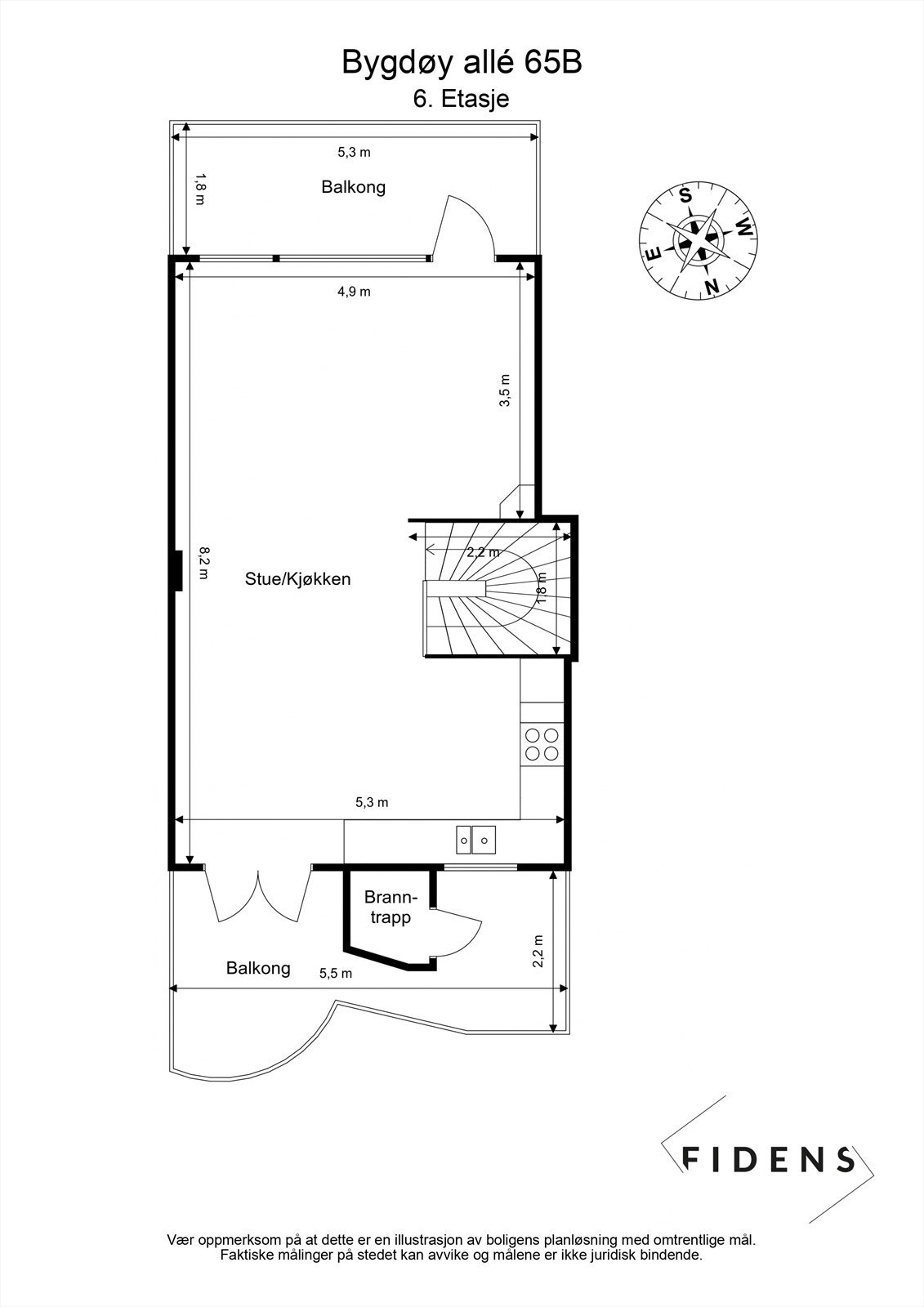
Velkommen til Bygdøy Allé 65B! En flott og gjennomgående leilighet over to plan. Dette er en fantastisk tre- roms leilighet over to plan med to takterrasser. I hovedetasjen er det en luftig stue med åpen kjøkkenløsning og utgang til to takterrasser på hver sin side. I underetasjen er det to gode soverom, et bad og entré/gang.
Verdt å vite:
- Leilighet over to plan i 5 og 6. etasje
- Lys og luftig planløsning med store vindusflater
- Sol hele dagen med en nordvendt takterrasse og en sørvendt takterrasse
- Nye terrassebord på begge balkonger
- To gode soverom
- Inngang fra Thomas Hefteys gate med heis
- 2 boder, hvor den ene har direkte adkomst rett utenfor leiligheten!
- Populær og attraktiv beliggenhet I Bygdøy Allé med kort vei til det man måtte trenge og offentlig transport
Verdt å vite:
- Leilighet over to plan i 5 og 6. etasje
- Lys og luftig planløsning med store vindusflater
- Sol hele dagen med en nordvendt takterrasse og en sørvendt takterrasse
- Nye terrassebord på begge balkonger
- To gode soverom
- Inngang fra Thomas Hefteys gate med heis
- 2 boder, hvor den ene har direkte adkomst rett utenfor leiligheten!
- Populær og attraktiv beliggenhet I Bygdøy Allé med kort vei til det man måtte trenge og offentlig transport
NB: Knappen for å vise hele beskrivelsen har kun en visuell effekt.
NB: Knappen for å vise hele beskrivelsen har kun en visuell effekt.
Salgsoppgaven beskriver vesentlig og lovpålagt informasjon om eiendommen
Se komplett salgsoppgaveNyttige lenker
Nærområdet
Nordvik St.Hanshaugen
Annonseinformasjon
| FINN-kode | 419946702 |
|---|---|
| Sist endret | 21. okt. 2025 13:29 |
| Referanse | 5-0202/24 |
Annonsene kan være mangelfulle i forhold til lovpålagt opplysningsplikt. Før bindende avtale inngås oppfordres interessenter til å innhente komplett informasjon fra meglerforetaket, selger eller utleier.












































