Bildegalleri

Velkommen til Kolstadflata 27 B!
Solgt
Kolstad
Romslig 3-roms andelsleilighet - Innglasset balkong med gode solforhold - Parkering - Barnevennlig - Nærhet til Bymarka
Prisantydning2 490 000 kr
Nøkkelinfo
- Boligtype
- Leilighet
- Eieform
- Andel
- Soverom
- 2
- Internt bruksareal
- 80 m² (BRA-i)
- Bruksareal
- 105 m²
- Eksternt bruksareal
- 13 m² (BRA-e)
- Innglasset balkong
- 12 m² (BRA-b)
- Etasje
- 3
- Byggeår
- 1971
- Energimerking
- F - Rød
- Rom
- 3
- Tomt
- Eiet
Fasiliteter
Barnevennlig
Balkong/Terrasse
Garasje/P-plass
Kabel-TV
Offentlig vann/kloakk
Turterreng
Vaktmester-/vektertjeneste
Bredbåndstilknytning
Rolig
Lademulighet
Balansert ventilasjon
Om boligen
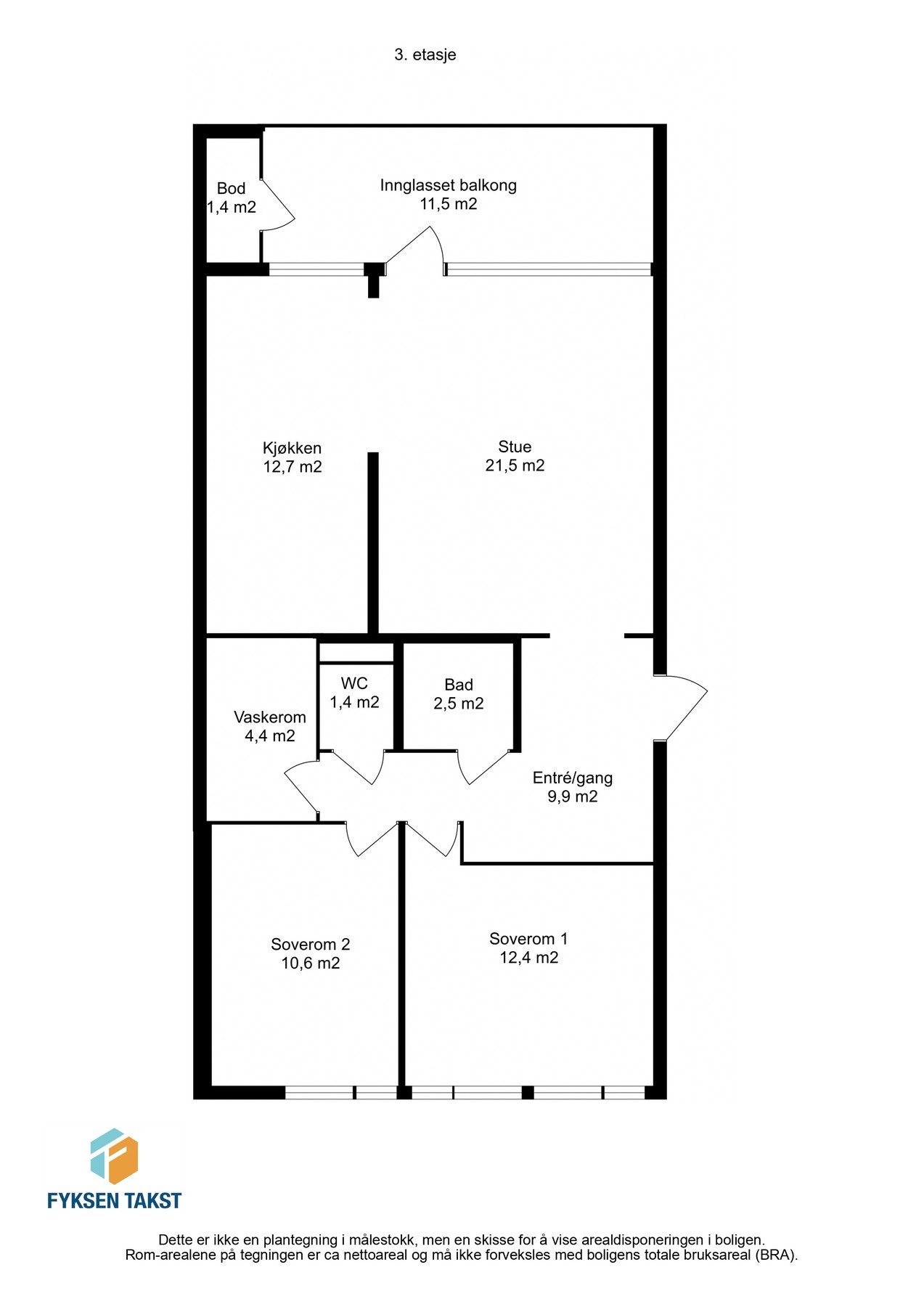
EiendomsMegler 1 ved Lena Børmark har gleden av å presentere en romslig 3-roms andelsleilighet i 3. etasje. Leiligheten ligger fint til i Kolstadflaten borettslag med gangavstand til barnehage, skole og metrobusstopp. For den turglade ligger Bymarka kun en spasertur unna med utallige turmuligheter sommer og vinter.
Kvaliteter verdt å nevne:
Kvaliteter verdt å nevne:
- To romslige soverom.
- Separat toalettrom, vaskerom og bad.
- Innglasset balkong med gode solforhold.
- Store vindusflater som gir rikelig med naturlig lysinnslipp.
- Gode parkeringsmuligheter i borettslaget. Mulighet for elbillader og garasjeplass.
- Praktisk planløsning som gjør det enkelt å møblere.
- Svært gode oppbevaringsmuligheter med to boder i kjeller og en på balkong.
- Nærhet til metrobusstopp med hyppige avganger.
- Internett og kabel-TV inkludert i felleskostnadene.
- Rolig og familievennlig boligområde.
Velkommen til visning!
NB: Knappen for å vise hele beskrivelsen har kun en visuell effekt.
NB: Knappen for å vise hele beskrivelsen har kun en visuell effekt.
Salgsoppgaven beskriver vesentlig og lovpålagt informasjon om eiendommen
Se komplett salgsoppgaveNyttige lenker
Nærområdet
EiendomsMegler 1 Heimdal
Vi loser deg trygt gjennom hele boligsalget
Prisstatistikk
Kolstadflata 27 B
1 145 klikk
på annonsen
34 827 kr
prisantydning per kvadratmeter
Prisfordeling
Pris per m² ligger 10 173 kr under snittet for leiligheter i Trondheim Sør.
Grafen viser antall leiligheter solgt i Trondheim Sør siste året fordelt på pris per m² - totalt 724 leiligheter
Antall boliger
Kvadratmeterpris tilsvarer prisantydning pluss fellesgjeld per kvadratmeter (p-rom eller BRA-i). Prisene i grafen er avrundet til nærmeste 1000 kr.
Annonseinformasjon
| FINN-kode | 419907263 |
|---|---|
| Sist endret | 04. nov. 2025 06:17 |
| Referanse | 31250543 |
Annonsene kan være mangelfulle i forhold til lovpålagt opplysningsplikt. Før bindende avtale inngås oppfordres interessenter til å innhente komplett informasjon fra meglerforetaket, selger eller utleier.




























