Bildegalleri

Svært god romfølelse i stue og kjøkken.
Solgt
Velkommen til Teisen!
Lekker og moderne 3-roms med peis og vestvendt balkong | Oppusset i 2020/2021| Mulighet for leie av parkering!
Prisantydning4 690 000 kr
Nøkkelinfo
- Boligtype
- Leilighet
- Eieform
- Andel
- Soverom
- 2
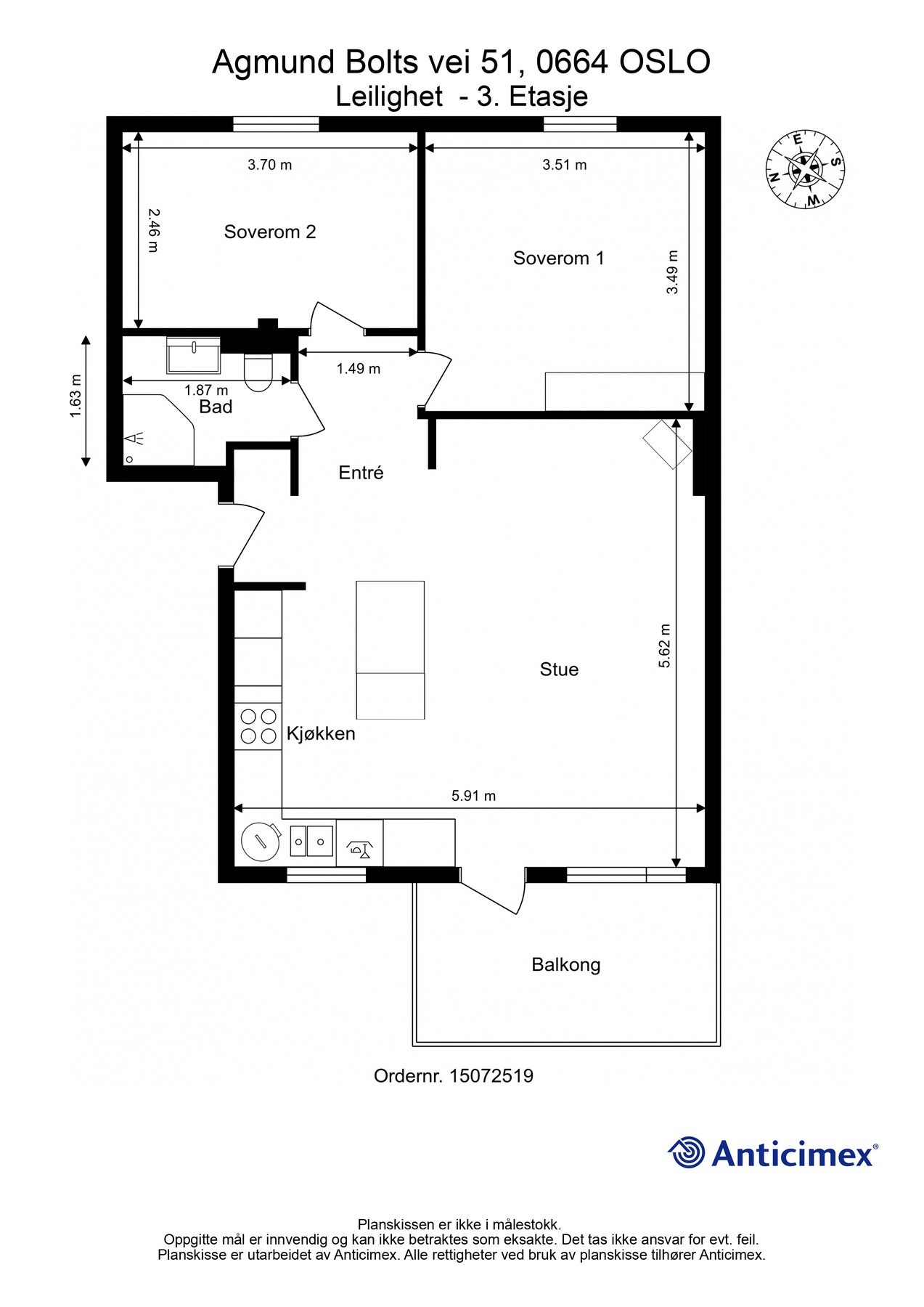
- Internt bruksareal
- 61 m² (BRA-i)
- Bruksareal
- 76 m²
- Eksternt bruksareal
- 15 m² (BRA-e)
- Balkong/Terrasse
- 8 m² (TBA)
- Etasje
- 3
- Byggeår
- 1953
- Energimerking
- E - Rød
- Rom
- 3
- Tomteareal
- 30 969 m² (eiet)
Fasiliteter
Barnevennlig
Balkong/Terrasse
Kabel-TV
Offentlig vann/kloakk
Peis/Ildsted
Turterreng
Sentralt
Bredbåndstilknytning
Moderne
Rolig
Om boligen
Madeleine Skjevik v/EIE Lillestrøm har gleden av å presentere Agmund Bolts vei 51!
En lekker og moderne 3-roms andelsleilighet beliggende godt skjermet beliggenhet i etablert og veldrevet borettslag på Teisen, like ved Helsfyr og Etterstad. Her bor du i et attraktiv område med nærhet til det du trenger i hverdagen og gode tur- og rekreasjonsmuligheter. Leiligheten ligger i 3. etasje og ble betydelig pusset opp i 2020/2021 med blant annet nytt kjøkken med integrerte hvitevarer, forbedret planløsning, nye overflater og nytt EL-anlegg.
Kvaliteter verdt å bemerke:
En lekker og moderne 3-roms andelsleilighet beliggende godt skjermet beliggenhet i etablert og veldrevet borettslag på Teisen, like ved Helsfyr og Etterstad. Her bor du i et attraktiv område med nærhet til det du trenger i hverdagen og gode tur- og rekreasjonsmuligheter. Leiligheten ligger i 3. etasje og ble betydelig pusset opp i 2020/2021 med blant annet nytt kjøkken med integrerte hvitevarer, forbedret planløsning, nye overflater og nytt EL-anlegg.
Kvaliteter verdt å bemerke:
- Åpen stue/kjøkken-løsning
- Solrik vestvendt balkong på 8 m²
- Peisovn
- God bodplass i 3 eksterne boder
- Mulighet for å leie parkering av borettslaget
- Betydelig oppusset i 2020-2021
- Gode kollektivmuligheter
- Kort vei til sentrum, samtidig som det er kort vei til fine turmuligheter!
Velkommen til hyggelig visning!
NB: Knappen for å vise hele beskrivelsen har kun en visuell effekt.
NB: Knappen for å vise hele beskrivelsen har kun en visuell effekt.
Salgsoppgaven beskriver vesentlig og lovpålagt informasjon om eiendommen
Se komplett salgsoppgaveNyttige lenker
Nærområdet
ROMERIKSMEGLEREN AS
Annonseinformasjon
| FINN-kode | 419899528 |
|---|---|
| Sist endret | 25. aug. 2025 12:04 |
| Referanse | 77250104 |
Annonsene kan være mangelfulle i forhold til lovpålagt opplysningsplikt. Før bindende avtale inngås oppfordres interessenter til å innhente komplett informasjon fra meglerforetaket, selger eller utleier.



























