Bildegalleri

Wessels gate 8 presenteres av EIE Eiendomsmegling ved Tobias Røang.
Solgt
Pilestredet Park / St. Hanshaugen
Lys og delikat 2-roms med balkong i moderne bygg fra 2008. Vender mot bakgård. "Alt" inkl. i felleskostnadene.
Prisantydning4 990 000 kr
Nøkkelinfo
- Boligtype
- Leilighet
- Eieform
- Andel
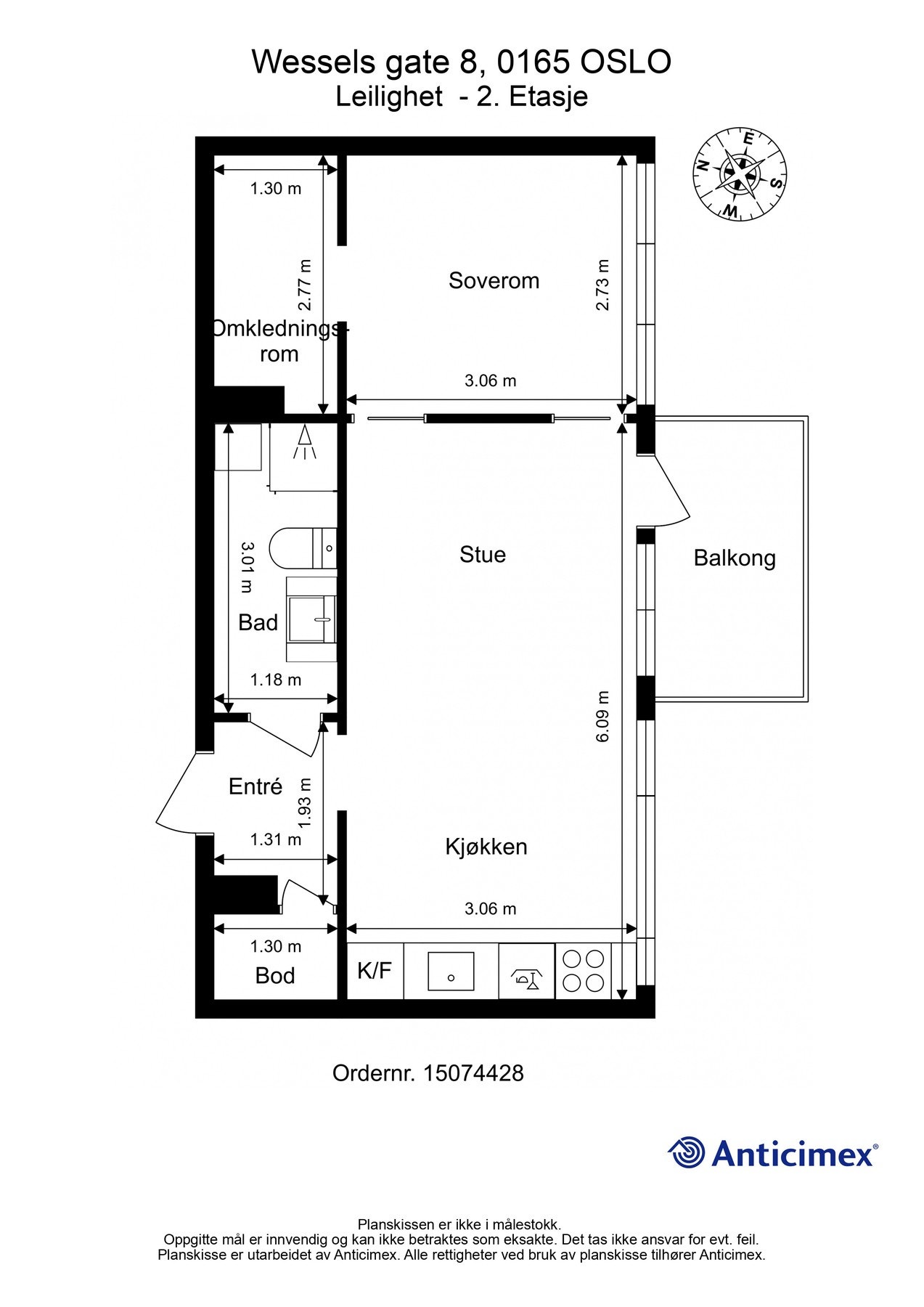
- Soverom
- 1
- Internt bruksareal
- 40 m² (BRA-i)
- Bruksareal
- 45 m²
- Eksternt bruksareal
- 5 m² (BRA-e)
- Balkong/Terrasse
- 5 m² (TBA)
- Etasje
- 2
- Byggeår
- 2008
- Energimerking
- D - Mørkegrønn
- Rom
- 2
- Tomteareal
- 819 m² (eiet)
Fasiliteter
Balkong/Terrasse
Kabel-TV
Heis
Offentlig vann/kloakk
Parkett
Vaktmester-/vektertjeneste
Sentralt
Bredbåndstilknytning
Moderne
Rolig
Balansert ventilasjon
Om boligen
Velkommen til Wessels gate 8 - en lys og delikat 2-roms leilighet med attraktiv beliggenhet. Leiligheten har rikelig med naturlig lysinnslipp fra store vinduer, samt generøs takhøyde. På tross av den sentrale beliggenheten oppleves leiligheten som rolig og usjenert, da den i sin helhet vender mot bakgård. Bygården er bygget om og rehabilitert i 2008 og er utstyrt med moderne fasiliteter som heis og balansert ventilasjon.
Høydepunkter:
- Vender i sin helhet mot bakgård
- Bygg fra 2008 med moderne fasiliteter
- Godt utnyttet og funksjonell planløsning
- Balkong på ca. 5 kvm
- Rikelig av naturlig lysinnslipp fra store vindusflater
- Generøs takhøyde opptil 2,74 meter
- Parkettgulv
- A-konto fyring og varmtvann, samt internett inkludert
- Lave omkostninger
- Frodig, velstelt og barnevennlig bakhage
- Kort vei til buss, trikk og t-bane
- Kort vei til parker og grøntarealer
Eiendommen ligger i et attraktivt og sentralt boligområde i populære Pilestredet Park, ved St. Hanshaugen i Oslo.
Høydepunkter:
- Vender i sin helhet mot bakgård
- Bygg fra 2008 med moderne fasiliteter
- Godt utnyttet og funksjonell planløsning
- Balkong på ca. 5 kvm
- Rikelig av naturlig lysinnslipp fra store vindusflater
- Generøs takhøyde opptil 2,74 meter
- Parkettgulv
- A-konto fyring og varmtvann, samt internett inkludert
- Lave omkostninger
- Frodig, velstelt og barnevennlig bakhage
- Kort vei til buss, trikk og t-bane
- Kort vei til parker og grøntarealer
Eiendommen ligger i et attraktivt og sentralt boligområde i populære Pilestredet Park, ved St. Hanshaugen i Oslo.
NB: Knappen for å vise hele beskrivelsen har kun en visuell effekt.
NB: Knappen for å vise hele beskrivelsen har kun en visuell effekt.
Salgsoppgaven beskriver vesentlig og lovpålagt informasjon om eiendommen
Se komplett salgsoppgaveNyttige lenker
Nærområdet
Mekleriet Oslo
Annonseinformasjon
| FINN-kode | 419513577 |
|---|---|
| Sist endret | 06. okt. 2025 10:07 |
| Referanse | 99251247 |
Annonsene kan være mangelfulle i forhold til lovpålagt opplysningsplikt. Før bindende avtale inngås oppfordres interessenter til å innhente komplett informasjon fra meglerforetaket, selger eller utleier.




























