Bildegalleri

Velkommen til Gamle Drammensvei 184, presentert av eiendomsmegler Edvard Chapsang v/EIE eiendomsmegling avdeling Sandvika! Foto: Luxe AS (Anders Kjøndal)
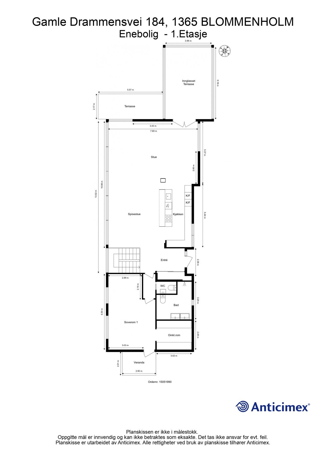
LEKKER ARK.TEGNET FUNKIS ENEBOLIG M/ FJORDUTSIKT - FLOTTE UTEOMRÅDER - 2 MÅL TOMT - U.ETG. M/SEPARAT INNGANG - BÅTPLASS*
Prisantydning19 950 000 kr
Nøkkelinfo
- Boligtype
- Enebolig
- Eieform
- Eier (Selveier)
- Soverom
- 4
- Internt bruksareal
- 274 m² (BRA-i)
- Bruksareal
- 276 m²
- Eksternt bruksareal
- 2 m² (BRA-e)
- Balkong/Terrasse
- 18 m² (TBA)
- Etasje
- 2
- Byggeår
- 1966
- Energimerking
- G - Oransje
- Rom
- 6
- Tomteareal
- 2 002 m² (eiet)
Fasiliteter
Barnevennlig
Balkong/Terrasse
Garasje/P-plass
Kabel-TV
Ingen gjenboere
Parkett
Peis/Ildsted
Turterreng
Utsikt
Om boligen
Stilren og lekker arkitekttegnet enebolig, med fantastisk utsikt mot Kalvøya og Båthavnen på Blommenholm, fjorden og nærområdet for øvrig. Her bor du med et levende maleri gjennom de store panorama vinduene, året rundt. Med boligen følger båtplass på Lakseberget, perfekt for deg som ønsker å nyte livet på sjøen.
Eiendommen er vesentlig påkostet og har en god standard, gode løsninger og fine detaljer. Såvel inne som ute er det blitt gjort store arbeider de senere år. Det er flere fine uterom (bl.a. vinterhage ) og hagen i seg selv er en fryd å se på.
Del av underetasje med separat inngang er innredet som hybel.
Beliggenheten er ideell med kort gangavstand til både skoler og barnehager, og kun 10-12 minutters kjøretur til Oslo. Offentlig transport er lett tilgjengelig, med både tog og buss innen gangavstand, og tilbyr raske og effektive forbindelser.
Eiendommen er vesentlig påkostet og har en god standard, gode løsninger og fine detaljer. Såvel inne som ute er det blitt gjort store arbeider de senere år. Det er flere fine uterom (bl.a. vinterhage ) og hagen i seg selv er en fryd å se på.
Del av underetasje med separat inngang er innredet som hybel.
Beliggenheten er ideell med kort gangavstand til både skoler og barnehager, og kun 10-12 minutters kjøretur til Oslo. Offentlig transport er lett tilgjengelig, med både tog og buss innen gangavstand, og tilbyr raske og effektive forbindelser.
NB: Knappen for å vise hele beskrivelsen har kun en visuell effekt.
NB: Knappen for å vise hele beskrivelsen har kun en visuell effekt.
Salgsoppgaven beskriver vesentlig og lovpålagt informasjon om eiendommen
Se komplett salgsoppgaveNyttige lenker
Nærområdet
EIE eiendomsmegling Bærum
Annonseinformasjon
| FINN-kode | 419333883 |
|---|---|
| Sist endret | 16. jan. 2026 19:45 |
| Referanse | 36251434 |
Annonsene kan være mangelfulle i forhold til lovpålagt opplysningsplikt. Før bindende avtale inngås oppfordres interessenter til å innhente komplett informasjon fra meglerforetaket, selger eller utleier.






























































