Bildegalleri

Velkommen til Arbos gate 1 A! Presentert av Sara Marie Zachariassen Østbye v/ Krogsveen Eiendomsmegling.
Solgt
Majorstuen
Svært lys og klassisk 2-roms med mye sjarm. Rosett og stukkatur. Generøs takhøyde og vinduer fra 2022. Supersentralt!
Prisantydning4 500 000 kr
Nøkkelinfo
- Boligtype
- Leilighet
- Eieform
- Andel
- Soverom
- 1
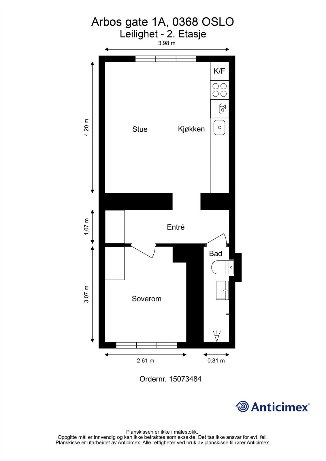
- Internt bruksareal
- 36 m² (BRA-i)
- Bruksareal
- 40 m²
- Eksternt bruksareal
- 4 m² (BRA-e)
- Etasje
- 2
- Byggeår
- 1897
- Energimerking
- G - Rød
- Rom
- 2
- Tomteareal
- 798 m² (eiet)
Fasiliteter
Bredbåndstilknytning
Fellesvaskeri
Kjæledyr tillatt
Kabel-TV
Offentlig vann/kloakk
Parkett
Rolig
Sentralt
Vaktmester-/vektertjeneste
Om boligen
Velkommen til Arbos gate 1 A!
En svært lys og klassisk 2-roms andelsleilighet med mye sjarm. Leiligheten ligger tilbaketrukket i rolig gate, men samtidig supersentralt på Majorstuen! Her har du virkelig alt storbyen har å tilby i umiddelbar nærhet. Høydepunkter:
- Store, klassiske vinduer fra 2022
- Nymalte overflater i 2025
- Rosett og stukkatur
- Romslig soverom som vender mot bakgård
- Oppvaskmaskin og opplegg for vaskemaskin på kjøkkenet
- Kjøkken og bad fra 2011
- Åpen stue og kjøkkenløsning med god plass til sofa og spisebord
- "Alt" av fasiliteter i nærheten
- Arealeffektiv leilighet med en fin planløsning
- Lave kjøpsomkostninger, ingen dok.avgift
- Romslig kjellerbod på 4 kvm
- Generøs takhøyde på 2.69 m
- Et ypperlig førstegangskjøp
Denne leiligheten bør oppleves!
En svært lys og klassisk 2-roms andelsleilighet med mye sjarm. Leiligheten ligger tilbaketrukket i rolig gate, men samtidig supersentralt på Majorstuen! Her har du virkelig alt storbyen har å tilby i umiddelbar nærhet. Høydepunkter:
- Store, klassiske vinduer fra 2022
- Nymalte overflater i 2025
- Rosett og stukkatur
- Romslig soverom som vender mot bakgård
- Oppvaskmaskin og opplegg for vaskemaskin på kjøkkenet
- Kjøkken og bad fra 2011
- Åpen stue og kjøkkenløsning med god plass til sofa og spisebord
- "Alt" av fasiliteter i nærheten
- Arealeffektiv leilighet med en fin planløsning
- Lave kjøpsomkostninger, ingen dok.avgift
- Romslig kjellerbod på 4 kvm
- Generøs takhøyde på 2.69 m
- Et ypperlig førstegangskjøp
Denne leiligheten bør oppleves!
NB: Knappen for å vise hele beskrivelsen har kun en visuell effekt.
NB: Knappen for å vise hele beskrivelsen har kun en visuell effekt.
Salgsoppgaven beskriver vesentlig og lovpålagt informasjon om eiendommen
Se komplett salgsoppgaveNyttige lenker
Nærområdet
Krogsveen Majorstuen og Oslo Vest
Verdien av en god megler.
Annonseinformasjon
| FINN-kode | 419325708 |
|---|---|
| Sist endret | 19. sep. 2025 05:22 |
| Referanse | KR40.25153 |
Annonsene kan være mangelfulle i forhold til lovpålagt opplysningsplikt. Før bindende avtale inngås oppfordres interessenter til å innhente komplett informasjon fra meglerforetaket, selger eller utleier.


































