Bildegalleri

Vogts gate 12 presenteres av Krogsveen.
Sentrum
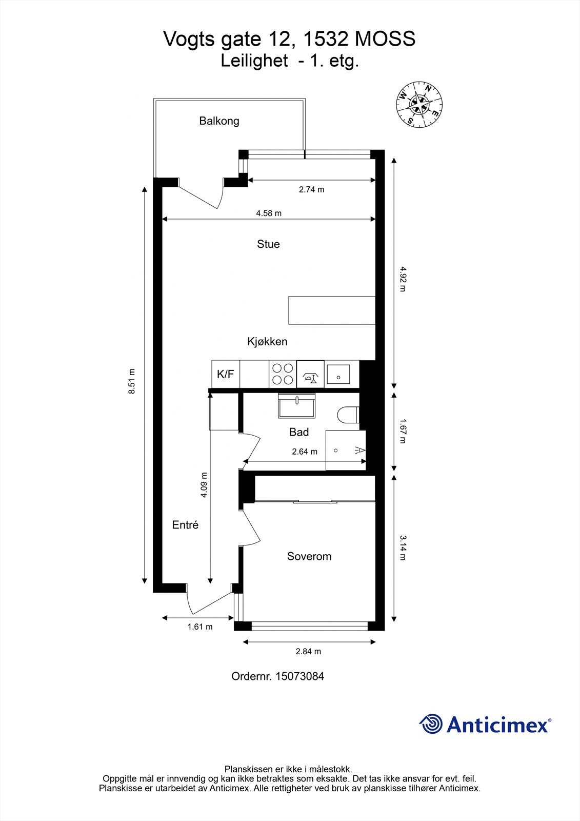
Effektiv 2-roms selveier fra 2009. Balkong med ettermiddags-/kveldssol. Varmtvann inkl. i f/u. Skjermet, midt i byen.
Prisantydning2 600 000 kr
Nøkkelinfo
- Boligtype
- Leilighet
- Eieform
- Eier (Selveier)
- Soverom
- 1
- Internt bruksareal
- 43 m² (BRA-i)
- Bruksareal
- 45 m²
- Eksternt bruksareal
- 2 m² (BRA-e)
- Balkong/Terrasse
- 4 m² (TBA)
- Etasje
- 1
- Byggeår
- 2009
- Rom
- 2
- Tomteareal
- 576 m² (eiet)
Fasiliteter
Balkong/Terrasse
Bredbåndstilknytning
Golfbane
Heis
Kjæledyr tillatt
Offentlig vann/kloakk
Parkett
Sentralt
Bademulighet
Fiskemulighet
Visning
For å delta på visning, ber vi om at du melder deg på. Da sikrer vi at du får nødvendig informasjon og at det er satt av tilstrekkelig med tid. Kontakt megler dersom annet tidspunkt ønskes. Husk å lese salgsoppgaven før visningen, så du stiller forberedt. NB. Visning utgår dersom det ikke er noen påmeldte.
Ønsker du kun å bli holdt orientert, kan du fra eiendommens hjemmeside få varsel om solgtpris, eller kontakte megler.
VisningspåmeldingOm boligen
Effektiv to-roms selveier fra 2009 med skjermet plassering, midt i byen
- Vestlig orientert balkong med ettermiddags-/kveldssol sommerstid
- Enkel adkomst - rett fra bakkeplan til egen ytterdør
- Oppført med god standard for tiden og har i dag normalt brukspreg
- Nye overskap på kjøkken i 2023
- Varmtvann/vannbåren varme inkl. i fellesutgifter = lavt strømforbruk
- Gangavstand til alle byens fasiliteter og tilbud
- Bredt kollektivtilbud i nærområdet, togstasjon inkludert
NB: Knappen for å vise hele beskrivelsen har kun en visuell effekt.
NB: Knappen for å vise hele beskrivelsen har kun en visuell effekt.
Salgsoppgaven beskriver vesentlig og lovpålagt informasjon om eiendommen
Se komplett salgsoppgaveNyttige lenker
Nærområdet
Krogsveen Moss
Velkommen til en enklere boligreise.
Annonseinformasjon
| FINN-kode | 419321175 |
|---|---|
| Sist endret | 03. des. 2025 19:26 |
| Referanse | KR30.25109 |
Annonsene kan være mangelfulle i forhold til lovpålagt opplysningsplikt. Før bindende avtale inngås oppfordres interessenter til å innhente komplett informasjon fra meglerforetaket, selger eller utleier.




















