Bildegalleri

Velkommen til Eiriks gate 18, presentert av Markus Sunde i Eiendomsmeglerne
Inaktiv
Tøyen
Lys 2-roms med oppgradert bad (2025) | A-konto fyring inkl. | Felles takterrasse | Parkering* | Perfekt førstegangskjøp!
Prisantydning4 385 000 kr
Nøkkelinfo
- Boligtype
- Leilighet
- Eieform
- Eier (Selveier)
- Soverom
- 1
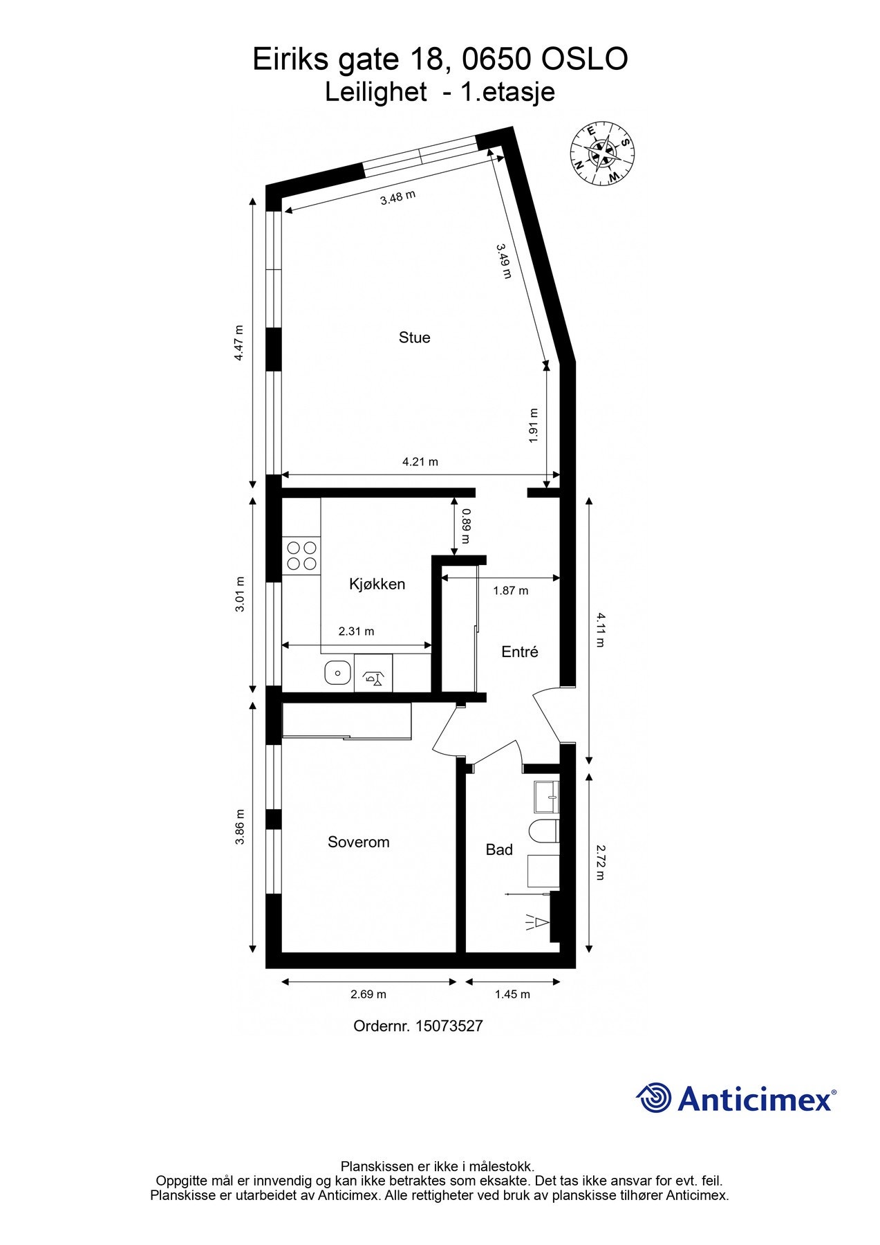
- Internt bruksareal
- 50 m² (BRA-i)
- Bruksareal
- 55 m²
- Eksternt bruksareal
- 5 m² (BRA-e)
- Etasje
- 1
- Byggeår
- 2004
- Energimerking
- E - Mørkegrønn
- Rom
- 2
- Tomteareal
- 3 405 m² (eiet)
Fasiliteter
Barnevennlig
Heis
Offentlig vann/kloakk
Vaktmester-/vektertjeneste
Sentralt
Bredbåndstilknytning
Moderne
Om boligen
Velkommen til Eiriks gate 18!
Presentert av Markus Sunde i Eiendomsmeglerne.
Lys og arealeffektiv 2-roms selveierleilighet fra 2004, sentralt beliggende på Tøyen med alt av byliv, T-bane og parker rett utenfor døren. Leiligheten har en god planløsning med separat kjøkken, romslig stue, oppgradert bad (2025) og et romslig soverom med plassbygd garderobeløsning. Sameiet har en stor, solrik felles takterrasse og moderne fasiliteter. Internett (1000 Mbit), fjernvarme og varmtvann er inkludert i felleskostnadene.
Presentert av Markus Sunde i Eiendomsmeglerne.
Lys og arealeffektiv 2-roms selveierleilighet fra 2004, sentralt beliggende på Tøyen med alt av byliv, T-bane og parker rett utenfor døren. Leiligheten har en god planløsning med separat kjøkken, romslig stue, oppgradert bad (2025) og et romslig soverom med plassbygd garderobeløsning. Sameiet har en stor, solrik felles takterrasse og moderne fasiliteter. Internett (1000 Mbit), fjernvarme og varmtvann er inkludert i felleskostnadene.
- Sentral beliggenhet
- Oppgradert bad (2025)
- Stor felles, solrik takterrasse
- Fjernvarme og internett inkl.
- Heis og bod
- Felles, låsbar sykkelbod i kjeller
- Mulighet for kjøp/leie av garasjeplass
- Kort vei til Tøyen T-bane, Botanisk hage og sentrum
- Trappefri adkomst
Ta kontakt for visning.
NB: Knappen for å vise hele beskrivelsen har kun en visuell effekt.
NB: Knappen for å vise hele beskrivelsen har kun en visuell effekt.
Salgsoppgaven beskriver vesentlig og lovpålagt informasjon om eiendommen
Se komplett salgsoppgaveNærområdet
Eiendomsmeglerne AS
Erfaring og lokalkunnskap
Annonseinformasjon
| FINN-kode | 419169517 |
|---|---|
| Sist endret | 17. sep. 2025 17:24 |
| Referanse | 202250124 |
Annonsene kan være mangelfulle i forhold til lovpålagt opplysningsplikt. Før bindende avtale inngås oppfordres interessenter til å innhente komplett informasjon fra meglerforetaket, selger eller utleier.
































