Bildegalleri

Velkommen til populære Funkisgården og Carl Jeppesens gate 28!
Solgt
Torshov / Sandaker
Lys og innbydende 2-R leilighet i Funkisgården - Fyring, VV og internett ink. - Flott bakgård - Ingen forkjøp/dok.avgift
Prisantydning4 350 000 kr
Nøkkelinfo
- Boligtype
- Leilighet
- Eieform
- Andel
- Soverom
- 1
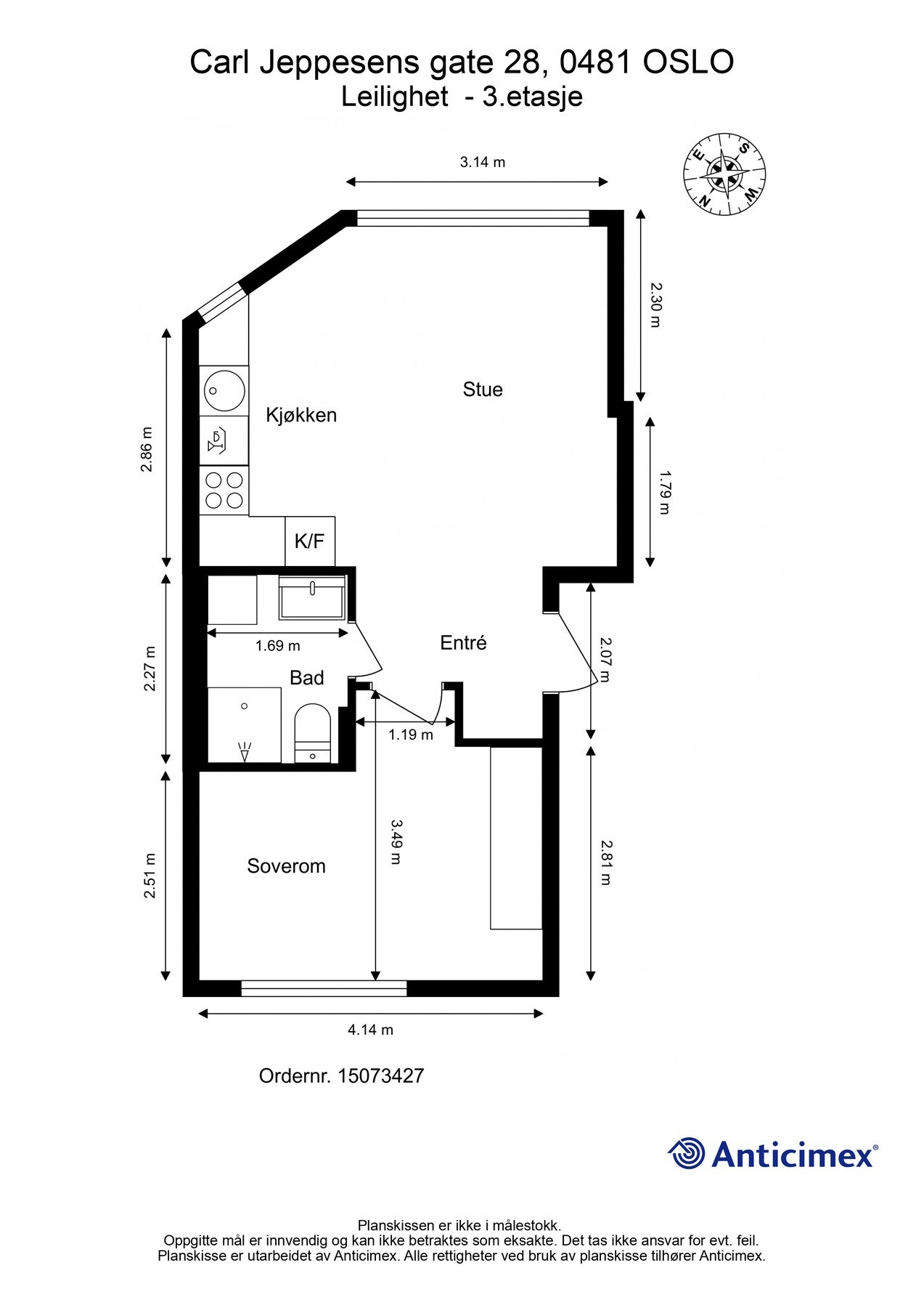
- Internt bruksareal
- 41 m² (BRA-i)
- Bruksareal
- 47 m²
- Eksternt bruksareal
- 6 m² (BRA-e)
- Etasje
- 3
- Byggeår
- 1930
- Energimerking
- F - Mørkegrønn
- Rom
- 2
- Tomteareal
- 170 m² (eiet)
Fasiliteter
Offentlig vann/kloakk
Parkett
Turterreng
Vaktmester-/vektertjeneste
Sentralt
Bredbåndstilknytning
Moderne
Balansert ventilasjon
Om boligen
Velkommen til populære Funkisgården!
Dette er en lys og innbydende 2-roms leilighet med en attraktiv beliggenhet på Torshov. Leiligheten har en gjennomgående planløsning og ligger luftig til i byggets 3. etasje med store vindusflater som slipper inn mye naturlig dagslys.
Hele bygården ble rehabilitert og gjort om til borettslag i 2004/2005. Leiligheten har derfor en pen og velholdt standard fra den tid. Nabolaget er hyggelig og populært, med yrende byliv, kafeer, butikker og grønne parker rett utenfor døren.
- Sentralt, men tilbaketrukket i rolig blindvei
- Luftig beliggenhet i 3. etasje
- Svært god takhøyde (ca. 2,8 m i stuen)
- Trivelig og trygt bomiljø
- Fyring, varmtvann og internett inkl.
- Balansert ventilasjon
- Nye 3-lags isoleringsvinduer i 2015
- Stort soverom med romslig garderobe
- Fantastisk bakgård for beboerne
- Kjellerbod på 6 kvm
- Ingen forkjøpsrett og dok.avgift
- Nærme Storo senter og Handelshøyskolen BI
- Svært godt kollektivtilbud med buss, trikk og T-bane
Dette er en lys og innbydende 2-roms leilighet med en attraktiv beliggenhet på Torshov. Leiligheten har en gjennomgående planløsning og ligger luftig til i byggets 3. etasje med store vindusflater som slipper inn mye naturlig dagslys.
Hele bygården ble rehabilitert og gjort om til borettslag i 2004/2005. Leiligheten har derfor en pen og velholdt standard fra den tid. Nabolaget er hyggelig og populært, med yrende byliv, kafeer, butikker og grønne parker rett utenfor døren.
- Sentralt, men tilbaketrukket i rolig blindvei
- Luftig beliggenhet i 3. etasje
- Svært god takhøyde (ca. 2,8 m i stuen)
- Trivelig og trygt bomiljø
- Fyring, varmtvann og internett inkl.
- Balansert ventilasjon
- Nye 3-lags isoleringsvinduer i 2015
- Stort soverom med romslig garderobe
- Fantastisk bakgård for beboerne
- Kjellerbod på 6 kvm
- Ingen forkjøpsrett og dok.avgift
- Nærme Storo senter og Handelshøyskolen BI
- Svært godt kollektivtilbud med buss, trikk og T-bane
NB: Knappen for å vise hele beskrivelsen har kun en visuell effekt.
NB: Knappen for å vise hele beskrivelsen har kun en visuell effekt.
Salgsoppgaven beskriver vesentlig og lovpålagt informasjon om eiendommen
Se komplett salgsoppgaveNyttige lenker
Nærområdet
EIE eiendomsmegling Ullevål & Sagene
Annonseinformasjon
| FINN-kode | 419160890 |
|---|---|
| Sist endret | 21. aug. 2025 08:57 |
| Referanse | 15251171 |
Annonsene kan være mangelfulle i forhold til lovpålagt opplysningsplikt. Før bindende avtale inngås oppfordres interessenter til å innhente komplett informasjon fra meglerforetaket, selger eller utleier.



































