Bildegalleri

Velkommen til Myrvegen 20 - og denne flotte eneboligen beliggende i et veletablert og ettertraktet område på Malvik!
Malvik
Pen og innholdsrik enebolig |Integrert garasje |Solfylte uteområder og fin utsikt |Familievennlig boligområde |Utleiedel
Prisantydning6 690 000 kr
Nøkkelinfo
- Boligtype
- Enebolig
- Eieform
- Eier (Selveier)
- Soverom
- 4
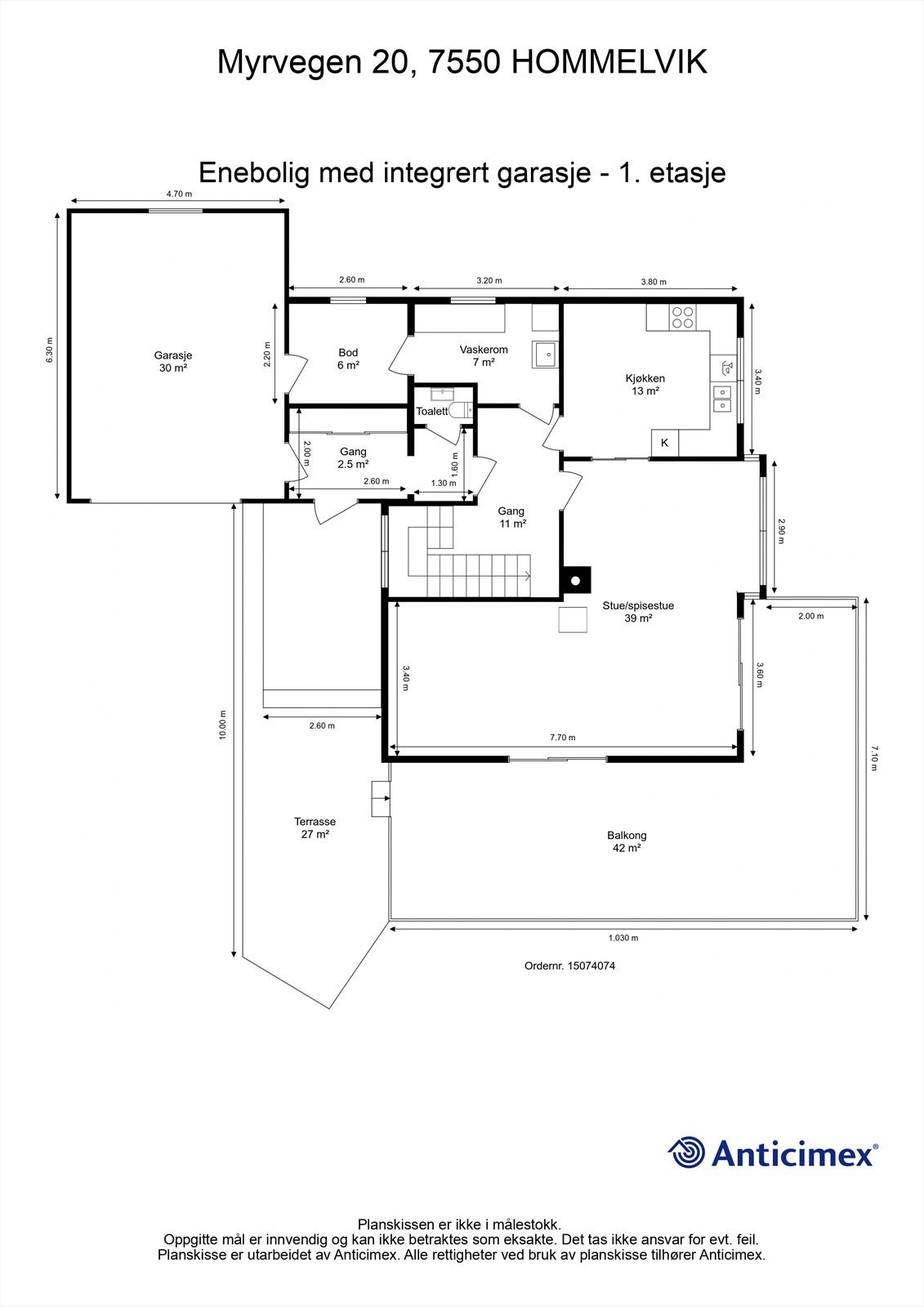
- Internt bruksareal
- 238 m² (BRA-i)
- Bruksareal
- 238 m²
- Balkong/Terrasse
- 92 m² (TBA)
- Etasje
- 3
- Byggeår
- 1991
- Energimerking
- D - Gul
- Rom
- 6
- Tomteareal
- 638 m² (eiet)
Om boligen
Velkommen til Myrvegen 20 - og denne flotte eneboligen beliggende i et veletablert og ettertraktet område på Malvik! Her bor du med kort vei til en rekke servicetilbud, gode kollektivmuligheter og flotte turområder.
Verdt å nevne:
- Pent kjøkken med rikelig skap- og benkeplass
- Lys og luftig stue med gode møbleringsmuligheter og ekstra loftstue
- Tre romslige soverom med plass til garderobe
- Pent flislagt bad med dusj og badekar samt separat toalett og vaskerom
- To terrasser og to balkonger med meget gode solforhold og nydelig utsikt
- Utleiedel med stue/kjøkken, entré, soverom, bad og vaskerom - 9.000kr leieinntekt.
- Integrert garasje, bodareal og flere biloppstillingsplasser
- Stille og rolig beliggenhet i enden av gaten
- Stor lekeplass et steinkast unna
- Veletablert nabolag
Verdt å nevne:
- Pent kjøkken med rikelig skap- og benkeplass
- Lys og luftig stue med gode møbleringsmuligheter og ekstra loftstue
- Tre romslige soverom med plass til garderobe
- Pent flislagt bad med dusj og badekar samt separat toalett og vaskerom
- To terrasser og to balkonger med meget gode solforhold og nydelig utsikt
- Utleiedel med stue/kjøkken, entré, soverom, bad og vaskerom - 9.000kr leieinntekt.
- Integrert garasje, bodareal og flere biloppstillingsplasser
- Stille og rolig beliggenhet i enden av gaten
- Stor lekeplass et steinkast unna
- Veletablert nabolag
NB: Knappen for å vise hele beskrivelsen har kun en visuell effekt.
NB: Knappen for å vise hele beskrivelsen har kun en visuell effekt.
Salgsoppgaven beskriver vesentlig og lovpålagt informasjon om eiendommen
Se komplett salgsoppgaveNyttige lenker
Nærområdet
Krogsveen Trondheim
Velkommen til en enklere boligreise.
Annonseinformasjon
| FINN-kode | 419088288 |
|---|---|
| Sist endret | 10. des. 2025 09:55 |
| Referanse | KR68.2599 |
Annonsene kan være mangelfulle i forhold til lovpålagt opplysningsplikt. Før bindende avtale inngås oppfordres interessenter til å innhente komplett informasjon fra meglerforetaket, selger eller utleier.












































