Bildegalleri

Velkommen til Kråkhaugvegen 19
Enebolig med idyllisk og sjønær beliggenhet på Finnøy | 3 sov | 2 bad | kinorom
Prisantydning2 600 000 kr
Nøkkelinfo
- Boligtype
- Enebolig
- Eieform
- Eier (Selveier)
- Soverom
- 3
- Internt bruksareal
- 210 m² (BRA-i)
- Bruksareal
- 221 m²
- Eksternt bruksareal
- 11 m² (BRA-e)
- Balkong/Terrasse
- 35 m² (TBA)
- Etasje
- 2
- Byggeår
- 1973
- Energimerking
- E - Gul
- Rom
- 4
- Tomteareal
- 423 m² (eiet)
Fasiliteter
Balkong/Terrasse
Barnevennlig
Garasje/P-plass
Hage
Offentlig vann/kloakk
Peis/Ildsted
Rolig
Utsikt
Bademulighet
Fiskemulighet
Om boligen
Velkommen til Kråkhaugvegen 19!
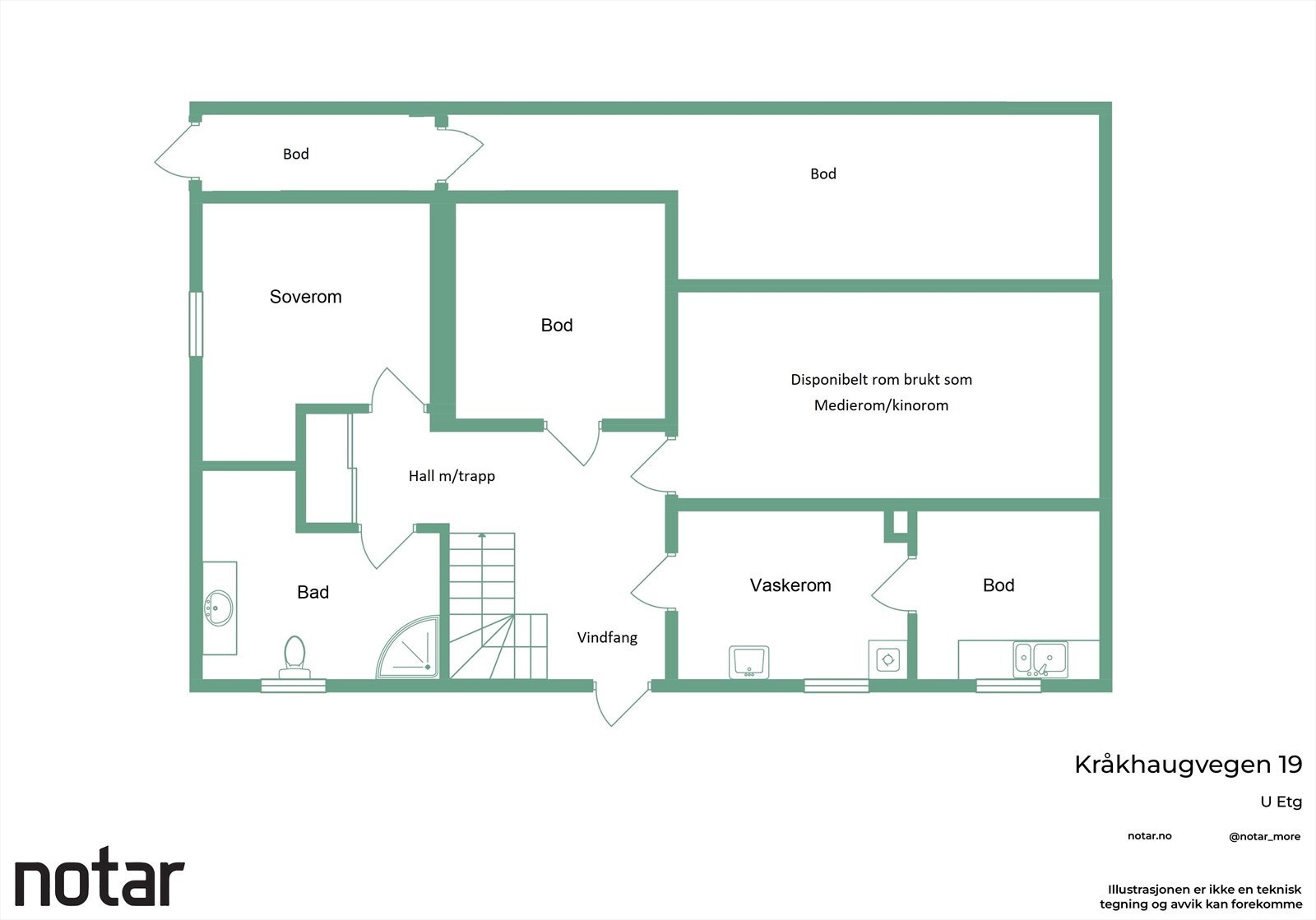
En innholdsrik enebolig fra 1973 på Finnøya med idyllisk beliggenhet like ved sjøen med strandlinje og småbåthavn med yrende båtliv. Med omtrent 210 kvadratmeter får du blant annet romslig stue med peis og varmepumpe, og delvis åpen løsning til kjøkken, soverom med god størrelse og to bad. Det er og tillaget eget kinorom i boligens underetasje. Det er godt med lagringsplass i utvendig bod på ca. 11 m². Sydvendt veranda på 35 m², perfekt for avslapning eller underholdning. Med fantastisk utsikt og direkte tilgang til vannkanten venter utendørseventyr rett utenfor døren. Dette hjemmet ligger i et vennlig samfunn med lokale fasiliteter.
Kontakt megler for påmelding til visning.
En innholdsrik enebolig fra 1973 på Finnøya med idyllisk beliggenhet like ved sjøen med strandlinje og småbåthavn med yrende båtliv. Med omtrent 210 kvadratmeter får du blant annet romslig stue med peis og varmepumpe, og delvis åpen løsning til kjøkken, soverom med god størrelse og to bad. Det er og tillaget eget kinorom i boligens underetasje. Det er godt med lagringsplass i utvendig bod på ca. 11 m². Sydvendt veranda på 35 m², perfekt for avslapning eller underholdning. Med fantastisk utsikt og direkte tilgang til vannkanten venter utendørseventyr rett utenfor døren. Dette hjemmet ligger i et vennlig samfunn med lokale fasiliteter.
Kontakt megler for påmelding til visning.
NB: Knappen for å vise hele beskrivelsen har kun en visuell effekt.
NB: Knappen for å vise hele beskrivelsen har kun en visuell effekt.
Salgsoppgaven beskriver vesentlig og lovpålagt informasjon om eiendommen
Se komplett salgsoppgaveNærområdet
Notar Moa
God magefølelse
Annonseinformasjon
| FINN-kode | 419053008 |
|---|---|
| Sist endret | 11. feb. 2026 17:01 |
| Referanse | NO2.2513 |
Annonsene kan være mangelfulle i forhold til lovpålagt opplysningsplikt. Før bindende avtale inngås oppfordres interessenter til å innhente komplett informasjon fra meglerforetaket, selger eller utleier.























































