Bildegalleri

Velkommen til Tangen terrasse 42G - Presentert av Elisiff Wennersgaard v/ Krogsveen Nesodden
Solgt
Tangen
Familievennlig rekkehus med flott fjordutsikt og garasje - nær Nesoddtangen brygge i et attraktivt nabolag
Prisantydning6 600 000 kr
Nøkkelinfo
- Boligtype
- Rekkehus
- Eieform
- Andel
- Soverom
- 3
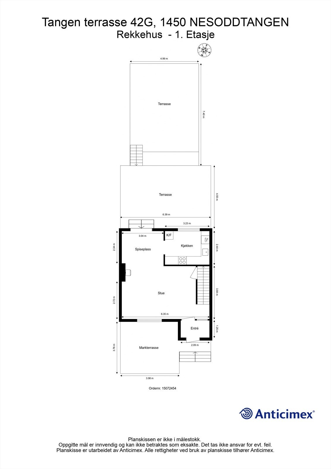
- Internt bruksareal
- 122 m² (BRA-i)
- Bruksareal
- 136 m²
- Eksternt bruksareal
- 14 m² (BRA-e)
- Balkong/Terrasse
- 81 m² (TBA)
- Byggeår
- 1957
- Energimerking
- F - Rød
- Tomteareal
- 13 372 m² (eiet)
Fasiliteter
Balkong/Terrasse
Barnevennlig
Garasje/P-plass
Hage
Kjæledyr tillatt
Kabel-TV
Offentlig vann/kloakk
Parkett
Peis/Ildsted
Rolig
Sentralt
Utsikt
Turterreng
Om boligen
Velkommen til Tangen terrasse 42G!
Boligen ligger attraktivt og barnevennlig på Tangenåsen, med kort vei til skoler, barnehager, Tangen sentrum, strender, friarealer og offentlig transport. Nesoddbåten nås på ca. 15 minutters gange. Nærheten til Oslofjorden, Kyststien og Signalen.
Her får du flott fjordutsikt og gode solforhold. Boligen har tre romslige soverom, hvorav to vender sørvest mot grønne omgivelser. Lys stue med vedovn og utgang til stor markterrasse, pent kjøkken og flislagt bad med gulvvarme. I tillegg en romslig kjeller med bad og opplegg for vaskemaskin (ikke godkjent/omsøkt til varig opphold). Solrike terrasser og en frodig hage kompletterer eiendommen.
Boligen ligger attraktivt og barnevennlig på Tangenåsen, med kort vei til skoler, barnehager, Tangen sentrum, strender, friarealer og offentlig transport. Nesoddbåten nås på ca. 15 minutters gange. Nærheten til Oslofjorden, Kyststien og Signalen.
Her får du flott fjordutsikt og gode solforhold. Boligen har tre romslige soverom, hvorav to vender sørvest mot grønne omgivelser. Lys stue med vedovn og utgang til stor markterrasse, pent kjøkken og flislagt bad med gulvvarme. I tillegg en romslig kjeller med bad og opplegg for vaskemaskin (ikke godkjent/omsøkt til varig opphold). Solrike terrasser og en frodig hage kompletterer eiendommen.
NB: Knappen for å vise hele beskrivelsen har kun en visuell effekt.
NB: Knappen for å vise hele beskrivelsen har kun en visuell effekt.
Salgsoppgaven beskriver vesentlig og lovpålagt informasjon om eiendommen
Se komplett salgsoppgaveNyttige lenker
Nærområdet
Krogsveen Nesodden
Verdien av en god megler.
Annonseinformasjon
| FINN-kode | 419005646 |
|---|---|
| Sist endret | 08. jan. 2026 14:39 |
| Referanse | KR51.2542 |
Annonsene kan være mangelfulle i forhold til lovpålagt opplysningsplikt. Før bindende avtale inngås oppfordres interessenter til å innhente komplett informasjon fra meglerforetaket, selger eller utleier.































