Bildegalleri

Nordvik ved Kristoffer Mjåtveit har gleden av å presentere Neuberggata 2A!
Inaktiv
Vestkanttorvet
Moderne og arealeffektiv toppleilighet med ettertraktet beliggenhet -Kjøkken og overflater fra 2021 -GUA på 34 kvm -Heis
Prisantydning4 490 000 kr
Nøkkelinfo
- Boligtype
- Leilighet
- Eieform
- Andel
- Soverom
- 0
- Internt bruksareal
- 30 m² (BRA-i)
- Bruksareal
- 35 m²
- Eksternt bruksareal
- 5 m² (BRA-e)
- Etasje
- 5
- Byggeår
- 1895
- Energimerking
- G - Rød
- Rom
- 1
- Tomteareal
- 890 m² (eiet)
Fasiliteter
Bredbåndstilknytning
Heis
Ingen gjenboere
Rolig
Sentralt
Utsikt
Turterreng
Visning
Alle våre visninger har påmelding. På denne måten sikrer vi at megler har god oversikt og tid til å imøtekomme alle interessenter. Meld deg på visning ved å trykke på lenken visningspåmelding.
VisningspåmeldingOm boligen
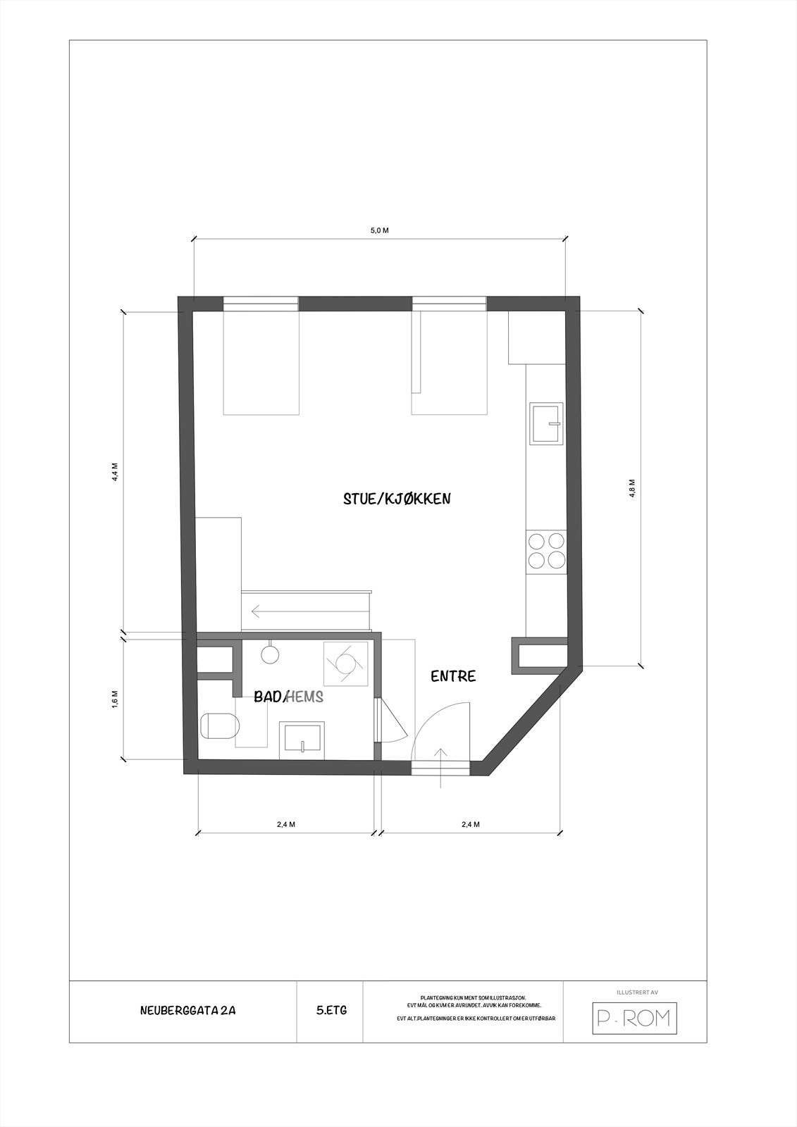
En lys, moderne og arealeffektiv toppleilighet pusset opp i 2021. Leiligheten har en sentral og ettertraktet beliggenhet på Majorstuen med umiddelbar nærhet til Vestkanttorvet, Frognerparken, offentlig kommunikasjon, kafeer, restauranter og shopping.
Planløsningen oppleves optimal, og hver kvadratmeter er utnyttet til det maksimale. Her har du entré, åpen kjøkken og stueløsning, hems og flislagt bad.
Planløsningen oppleves optimal, og hver kvadratmeter er utnyttet til det maksimale. Her har du entré, åpen kjøkken og stueløsning, hems og flislagt bad.
- Gulvareal på 34 kvm.
- Stilrene overflater pusset opp i 2021
- Moderne kjøkken fra Kvik
- Sovehems på 4,4 kvm. (gulvareal)
- Vinduer fra 2021
- Synlige bærebjelker
- Lyst, luftig og usjenert - ingen innsyn eller gjenboere
- Kjellerbod
- Lave felleskostnader
- Heis
- Ingen dok.avgift
- Klassisk bygård fra 1895
- Lukket bakgård med sittegrupper og sykkelparkering
NB: Knappen for å vise hele beskrivelsen har kun en visuell effekt.
NB: Knappen for å vise hele beskrivelsen har kun en visuell effekt.
Salgsoppgaven beskriver vesentlig og lovpålagt informasjon om eiendommen
Se komplett salgsoppgaveNyttige lenker
Nærområdet
Nordvik St.Hanshaugen
Annonseinformasjon
| FINN-kode | 418564330 |
|---|---|
| Sist endret | 24. aug. 2025 16:38 |
| Referanse | 5-0331/25 |
Annonsene kan være mangelfulle i forhold til lovpålagt opplysningsplikt. Før bindende avtale inngås oppfordres interessenter til å innhente komplett informasjon fra meglerforetaket, selger eller utleier.
































