Bildegalleri

Stue med utgang til Rømningsbalkong/brannbalkong

Solgt
Alexander Kiellands plass

Lekker og arealeffektiv leilighet - nydelig felles takterrasse - Overflateoppusset i 2025

Prisantydning3 990 000 kr
Totalpris
4 338 886 kr
Omkostninger
8 974 kr
Fellesgjeld
339 912 kr
Felleskost/mnd.
4 730 kr
Fellesformue
24 541 kr
Formuesverdi
1 053 949 kr

Nøkkelinfo

Boligtype
Leilighet
Eieform
Andel
Soverom
0
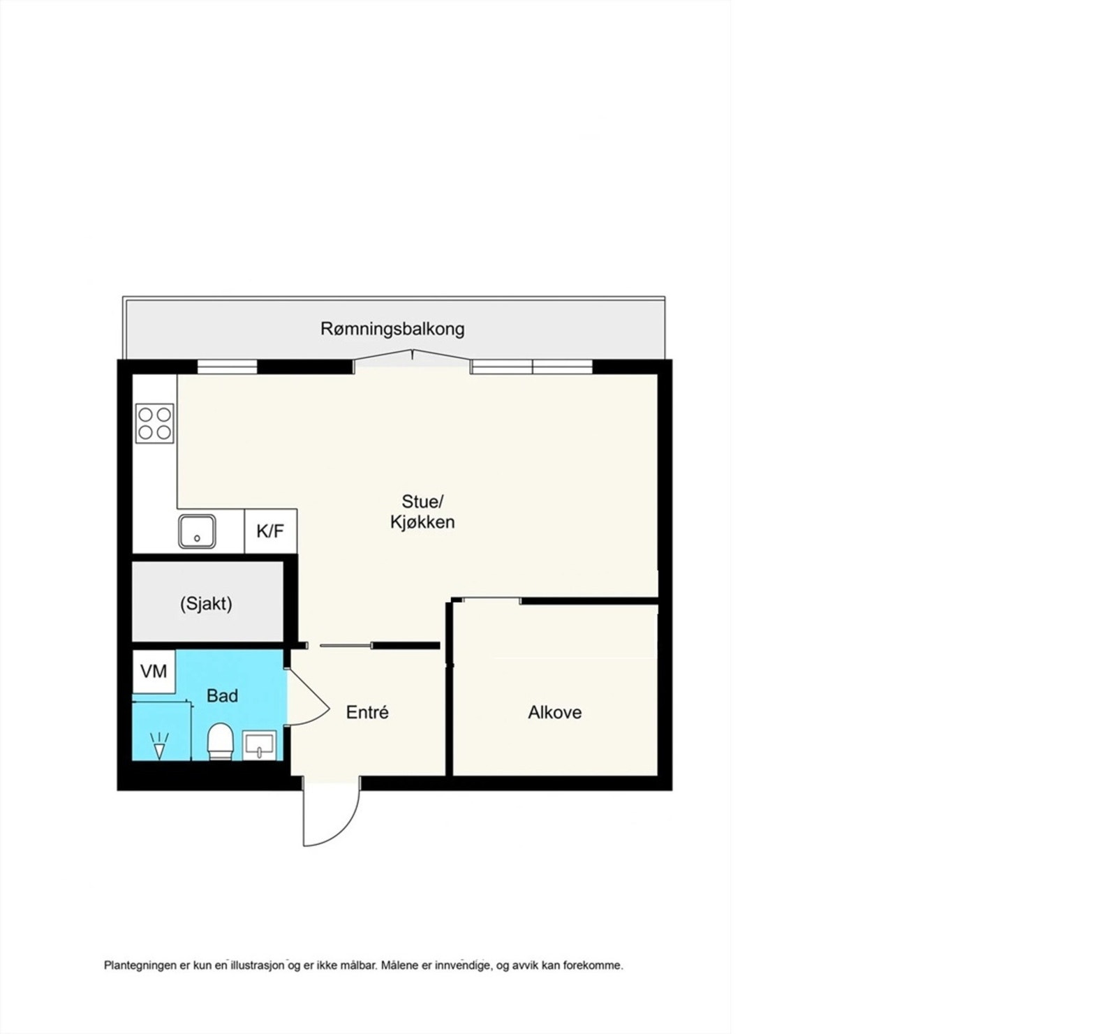
Internt bruksareal
37 m² (BRA-i)
Bruksareal
45 m²
Eksternt bruksareal
8 m² (BRA-e)
Etasje
3
Byggeår
2007
Energimerking
D - Mørkegrønn
Rom
1
Tomteareal
6 790 m² (eiet)

Les mer om bruksareal her

Fasiliteter

Balkong/Terrasse
Heis
Offentlig vann/kloakk
Utsikt
Sentralt
Bredbåndstilknytning
Moderne

Om boligen

Velkommen til Landstads gate 2 - en lys og innbydende leilighet i 3. etasje med heisadkomst, beliggende i et attraktivt og urbant område rett ved Alexander Kiellands plass. Her bor du sentralt med gangavstand til gode kollektivforbindelser, hyggelige parker, caféer og butikker - alt du trenger i hverdagen.

Høydepunkter:

- Overflater og kjøkken tatt i 2025

- Felles takterrasse med sol hele dagen og flott utsikt

- Varmtvann, fyring (A-konto) og bredbånd inkludert i felleskostnader

- Romslig bod på samme etasjeplan (ca. 8 m²)

- Flislagt bad med varmekabler og opplegg for vaskemaskin

- Store vindusflater som gir godt lysinnslipp

- Bygget er fra 2007 med heis og IN-ordning

Dette er en perfekt leilighet for deg som ønsker en moderne og lettstelt bolig med gjennomtenkte løsninger og tilgang til flotte fellesområder, midt i hjertet av byen.

Salgsoppgaven beskriver vesentlig og lovpålagt informasjon om eiendommen

Se komplett salgsoppgave

Nærområdet

Annonseinformasjon

FINN-kode418506774
Sist endret04. sep. 2025 18:39
Referanse6250095

Rapporter annonse

Annonsene kan være mangelfulle i forhold til lovpålagt opplysningsplikt. Før bindende avtale inngås oppfordres interessenter til å innhente komplett informasjon fra meglerforetaket, selger eller utleier.