Bildegalleri

Velkommen til Solbergliveien 95!
Solgt
Oppsal
Stor 3-romsleilighet med sydvendt, innglasset balkong - Moderniseringsbehov - Mulighet for 4-roms - Nærhet til marka
Prisantydning4 200 000 kr
Nøkkelinfo
- Boligtype
- Leilighet
- Eieform
- Andel
- Soverom
- 2
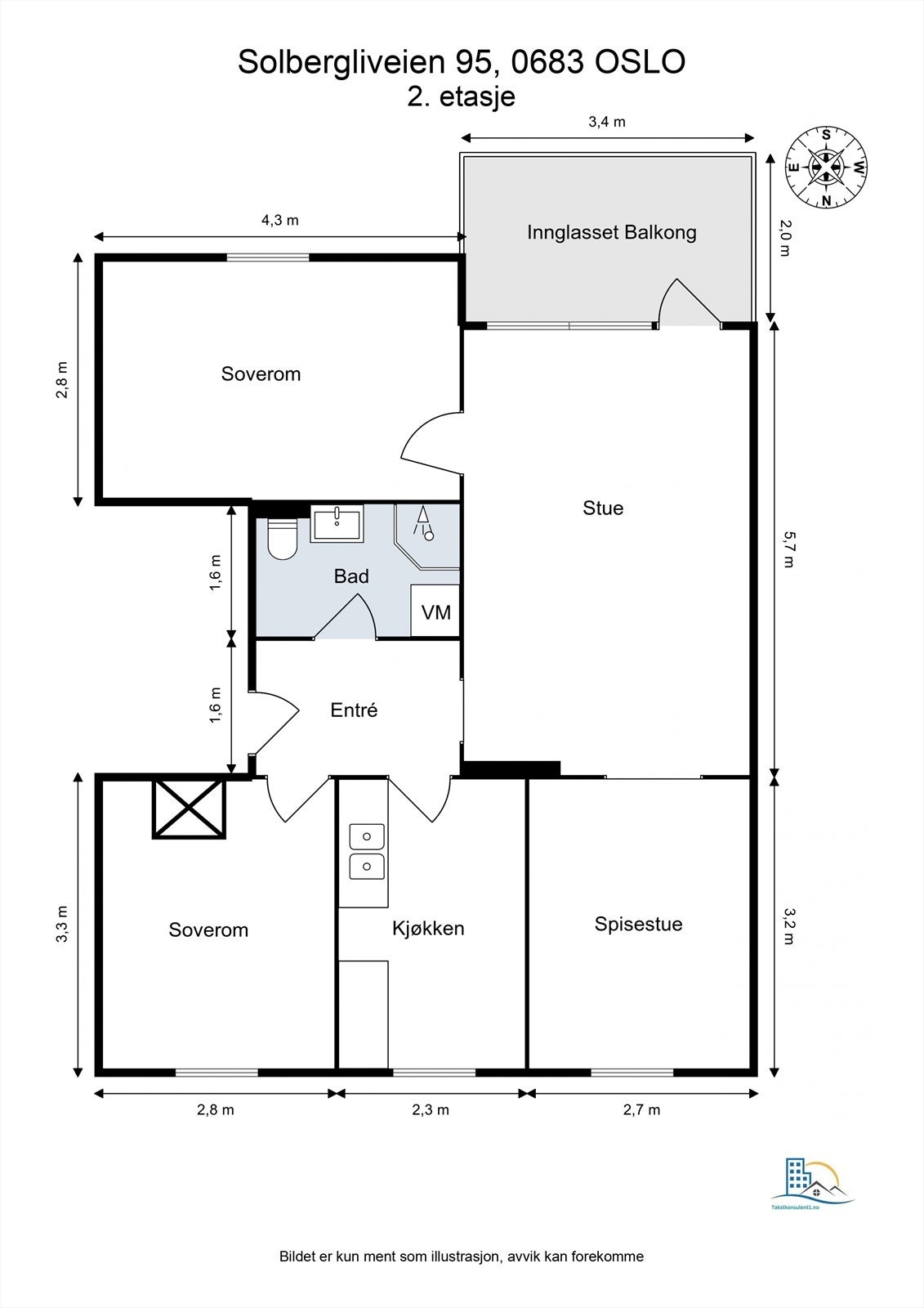
- Internt bruksareal
- 68 m² (BRA-i)
- Bruksareal
- 88 m²
- Eksternt bruksareal
- 12 m² (BRA-e)
- Innglasset balkong
- 8 m² (BRA-b)
- Etasje
- 2
- Byggeår
- 1962
- Energimerking
- F - Rød
- Rom
- 3
- Tomteareal
- 140 050 m² (eiet)
Fasiliteter
Balkong/Terrasse
Barnevennlig
Bredbåndstilknytning
Fellesvaskeri
Kjæledyr tillatt
Ingen gjenboere
Kabel-TV
Rolig
Turterreng
Om boligen
Gjennomgående 3-romsleilighet i 2. etasje. Boligen har en innglasset, sydvendt balkong på 8 kvm. Store vindusflater skaper en lys og luftig atmosfære. Det må påregnes oppgraderinger i leiligheten. Her har du mulighet til å skape drømmehjemmet!
Kort fortalt:
- God planløsning og lysforhold
- Muligheter for å lage et soverom ekstra (Se alternativ plantegning)
- Flislagt bad pusset opp i regi av borettslaget 2008
- God oppbevaringsplass i 4 eksterne boder
- Balkongdør og vinduer fra 2017
- Tv og internett inkl. i felleskostnader
- Perfekt for barnefamilier med flere lekeplasser i umiddelbar nærhet
- Mulighet for parkeringsleie etter venteliste
- Meget god intern beliggenhet i borettslaget iht støy og hovedveier
- Nærhet til Østmarka, skole, barnehager, butikk og off. transport
Kort fortalt:
- God planløsning og lysforhold
- Muligheter for å lage et soverom ekstra (Se alternativ plantegning)
- Flislagt bad pusset opp i regi av borettslaget 2008
- God oppbevaringsplass i 4 eksterne boder
- Balkongdør og vinduer fra 2017
- Tv og internett inkl. i felleskostnader
- Perfekt for barnefamilier med flere lekeplasser i umiddelbar nærhet
- Mulighet for parkeringsleie etter venteliste
- Meget god intern beliggenhet i borettslaget iht støy og hovedveier
- Nærhet til Østmarka, skole, barnehager, butikk og off. transport
NB: Knappen for å vise hele beskrivelsen har kun en visuell effekt.
NB: Knappen for å vise hele beskrivelsen har kun en visuell effekt.
Salgsoppgaven beskriver vesentlig og lovpålagt informasjon om eiendommen
Se komplett salgsoppgaveNyttige lenker
Nærområdet
Krogsveen Hasle
Verdien av en god megler.
Annonseinformasjon
| FINN-kode | 418150459 |
|---|---|
| Sist endret | 29. sep. 2025 12:32 |
| Referanse | KR37.25357 |
Annonsene kan være mangelfulle i forhold til lovpålagt opplysningsplikt. Før bindende avtale inngås oppfordres interessenter til å innhente komplett informasjon fra meglerforetaket, selger eller utleier.
































