Bildegalleri

Nordvik Finnsnes presenterer Vangsveien 394!
Solgt
Sjarmerende eiendom med enebolig, fjøs, garasje og naust i naturskjønne Vangshamn på Senja!
Prisantydning1 750 000 kr
Nøkkelinfo
- Boligtype
- Enebolig
- Eieform
- Eier (Selveier)
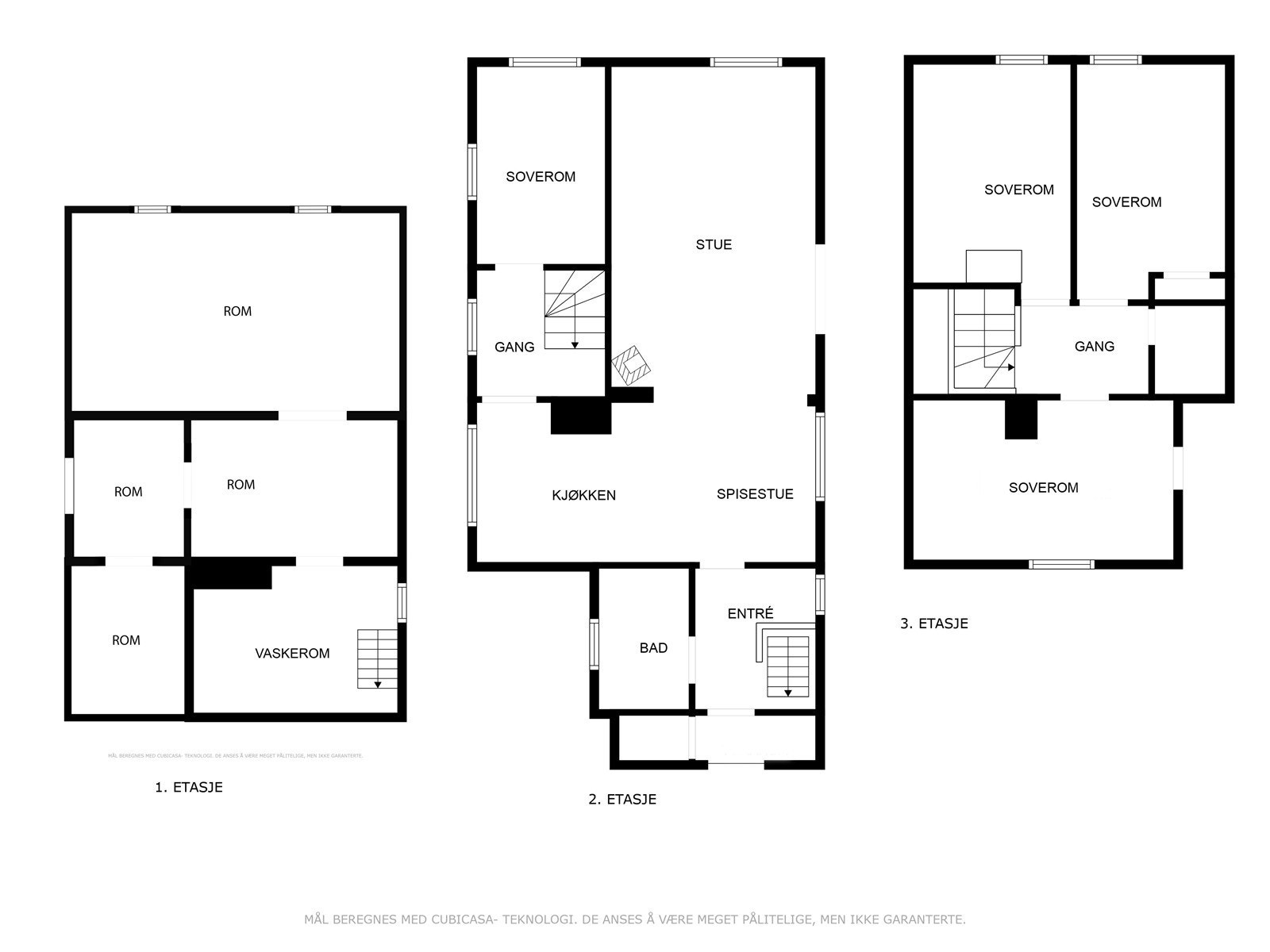
- Soverom
- 4
- Internt bruksareal
- 66 m² (BRA-i)
- Bruksareal
- 224 m²
- Eksternt bruksareal
- 158 m² (BRA-e)
- Balkong/Terrasse
- 30 m² (TBA)
- Etasje
- 2
- Byggeår
- 1940
- Energimerking
- G - Oransje
- Tomteareal
- 104 760 m² (eiet)
Fasiliteter
Balkong/Terrasse
Barnevennlig
Garasje/P-plass
Hage
Kjæledyr tillatt
Peis/Ildsted
Rolig
Turterreng
Om boligen
Velkommen til Vangsveien 394, presentert av Nordvik Finnsnes!
Se for deg å våkne opp til fullstendig stillhet i Vangshamn på Senja det er bare deg og masse herlig natur. Enten du vil på sjøen, i skogen eller på fjellet, er alt rett i nærheten.
Trivelig og innholdsrikt hjem med fire soverom, stue og kjøkken i åpen løsning med utgang til solrik terrasse. Hjemmet har etterslep på løpende vedlikehold og kjøper må påregne en del moderniseringer. Eiendommen byr videre på over 100 mål med skog og mark med mange muligheter, samt fjøs, utebod og eldre garasje.
I bygda finner du døgnåpen dagligvarehandel og hurtigbåtkai med forbindelse til Tromsø. Et perfekt sted for deg ønsker å koble av og nyte friluftslivet uten trengsel og mas.
Se for deg å våkne opp til fullstendig stillhet i Vangshamn på Senja det er bare deg og masse herlig natur. Enten du vil på sjøen, i skogen eller på fjellet, er alt rett i nærheten.
Trivelig og innholdsrikt hjem med fire soverom, stue og kjøkken i åpen løsning med utgang til solrik terrasse. Hjemmet har etterslep på løpende vedlikehold og kjøper må påregne en del moderniseringer. Eiendommen byr videre på over 100 mål med skog og mark med mange muligheter, samt fjøs, utebod og eldre garasje.
I bygda finner du døgnåpen dagligvarehandel og hurtigbåtkai med forbindelse til Tromsø. Et perfekt sted for deg ønsker å koble av og nyte friluftslivet uten trengsel og mas.
NB: Knappen for å vise hele beskrivelsen har kun en visuell effekt.
NB: Knappen for å vise hele beskrivelsen har kun en visuell effekt.
Salgsoppgaven beskriver vesentlig og lovpålagt informasjon om eiendommen
Se komplett salgsoppgaveNyttige lenker
Nærområdet
Nordvik Finnsnes
Annonseinformasjon
| FINN-kode | 418001770 |
|---|---|
| Sist endret | 12. nov. 2025 13:09 |
| Referanse | 28-0042/25 |
Annonsene kan være mangelfulle i forhold til lovpålagt opplysningsplikt. Før bindende avtale inngås oppfordres interessenter til å innhente komplett informasjon fra meglerforetaket, selger eller utleier.































