Bildegalleri

Velkommen til denne flotte 2-roms leiligheten i Oppsaltoppen 15D!
Solgt
Oppsal
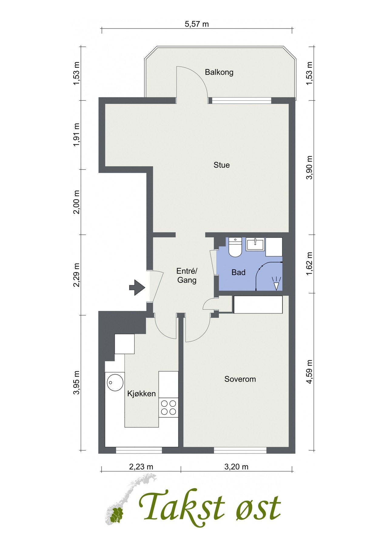
Lys og pen 2-roms med solrik, vestvendt balkong. Flott kjøkken fra 2020. "Alt" inkl. Attraktiv beliggenhet ved Østmarka!
Prisantydning3 790 000 kr
Nøkkelinfo
- Boligtype
- Leilighet
- Eieform
- Andel
- Soverom
- 1
- Internt bruksareal
- 52 m² (BRA-i)
- Bruksareal
- 56 m²
- Eksternt bruksareal
- 4 m² (BRA-e)
- Balkong/Terrasse
- 7 m² (TBA)
- Etasje
- 3
- Byggeår
- 1956
- Energimerking
- E - Mørkegrønn
- Rom
- 2
- Tomteareal
- 19 664 m² (eiet)
Fasiliteter
Balkong/Terrasse
Kabel-TV
Offentlig vann/kloakk
Turterreng
Vaktmester-/vektertjeneste
Fellesvaskeri
Sentralt
Bredbåndstilknytning
Rolig
Om boligen
Velkommen til denne herlige 2-roms leiligheten i Oppsaltoppen 15D!
Dette er en lys og luftig leilighet med en solrik, vestvendt balkong på hele 7 kvm. Leiligheten har en gjennomgående og god planløsning med fin størrelse på alle rom.
Med kort vei til både Østmarka og Østensjøvannet, ligger boligen perfekt til for den som setter pris på tur- og rekreasjonsmuligheter året rundt. I tillegg er det kort vei til servicefasiliteter og offentlig kommunikasjon.
Dette er en lys og luftig leilighet med en solrik, vestvendt balkong på hele 7 kvm. Leiligheten har en gjennomgående og god planløsning med fin størrelse på alle rom.
Med kort vei til både Østmarka og Østensjøvannet, ligger boligen perfekt til for den som setter pris på tur- og rekreasjonsmuligheter året rundt. I tillegg er det kort vei til servicefasiliteter og offentlig kommunikasjon.
- Lekkert, separat kjøkken fra 2020
- Gjennomgående og god planløsning
- Flislagt bad med gulvvarme og opplegg for vaskemaskin
- Ingen TG3
- Fellesvaskeri
- Sykkelbod i oppgangen
- Kjellerbod 4,4 kvm og loftsbod med gulvareal på 9,5 kvm
- Mulighet for leie av parkeringsplass etter venteliste
- Nærhet til idylliske turstier og badevann
- Kort vei til offentlig kommunikasjon
- Perfekt førstegangskjøp!
Mangler du egenkapital? Boligen kan kjøpes med Finit Deleie.
NB: Knappen for å vise hele beskrivelsen har kun en visuell effekt.
NB: Knappen for å vise hele beskrivelsen har kun en visuell effekt.
Salgsoppgaven beskriver vesentlig og lovpålagt informasjon om eiendommen
Se komplett salgsoppgaveNyttige lenker
Nærområdet
EIE eiendomsmegling Sinsen & Carl Berner
Annonseinformasjon
| FINN-kode | 417995483 |
|---|---|
| Sist endret | 14. aug. 2025 07:08 |
| Referanse | 92250195 |
Annonsene kan være mangelfulle i forhold til lovpålagt opplysningsplikt. Før bindende avtale inngås oppfordres interessenter til å innhente komplett informasjon fra meglerforetaket, selger eller utleier.






























