Bildegalleri

Krogsveen v/Christopher Sand ønsker velkommen til Austadgata 28. Foto: Haiman Askari/Knipzet AS
Strømsø
Hel horisontaldelt tomannsbolig med sentral beliggenhet. 4 soverom. Flotte uteområder med gode solforhold. Dobbelgarasje
Prisantydning7 250 000 kr
Nøkkelinfo
- Boligtype
- Tomannsbolig
- Eieform
- Eier (Selveier)
- Soverom
- 4
- Internt bruksareal
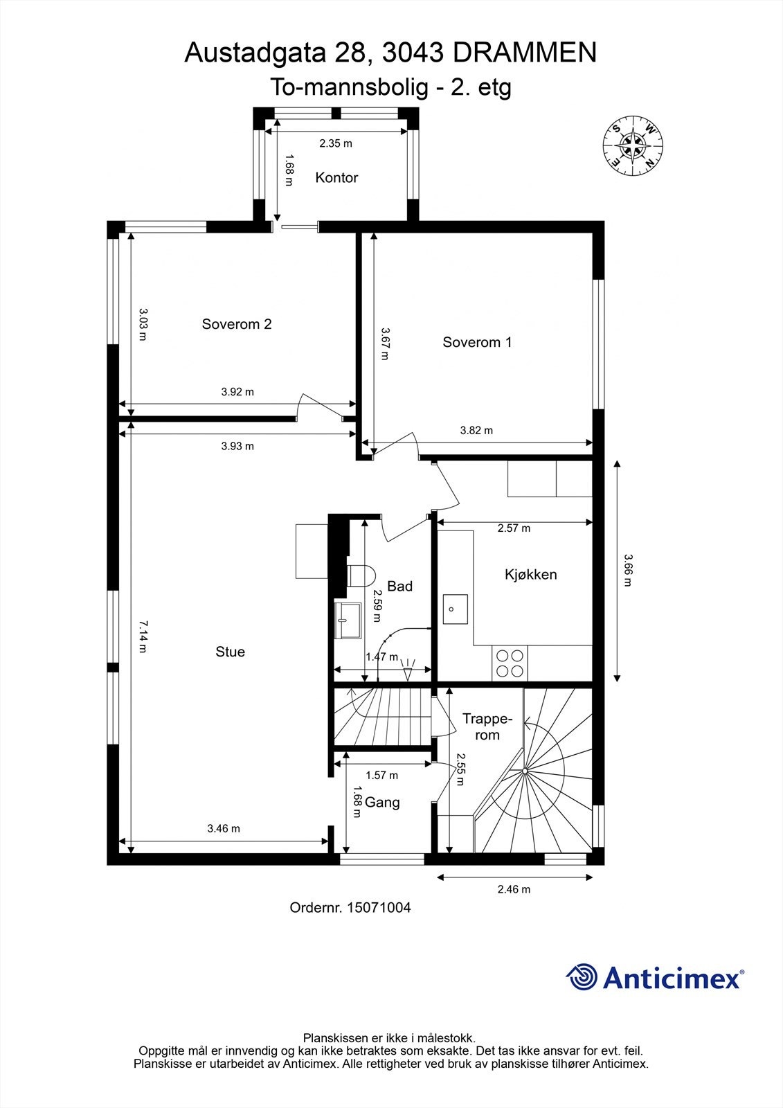
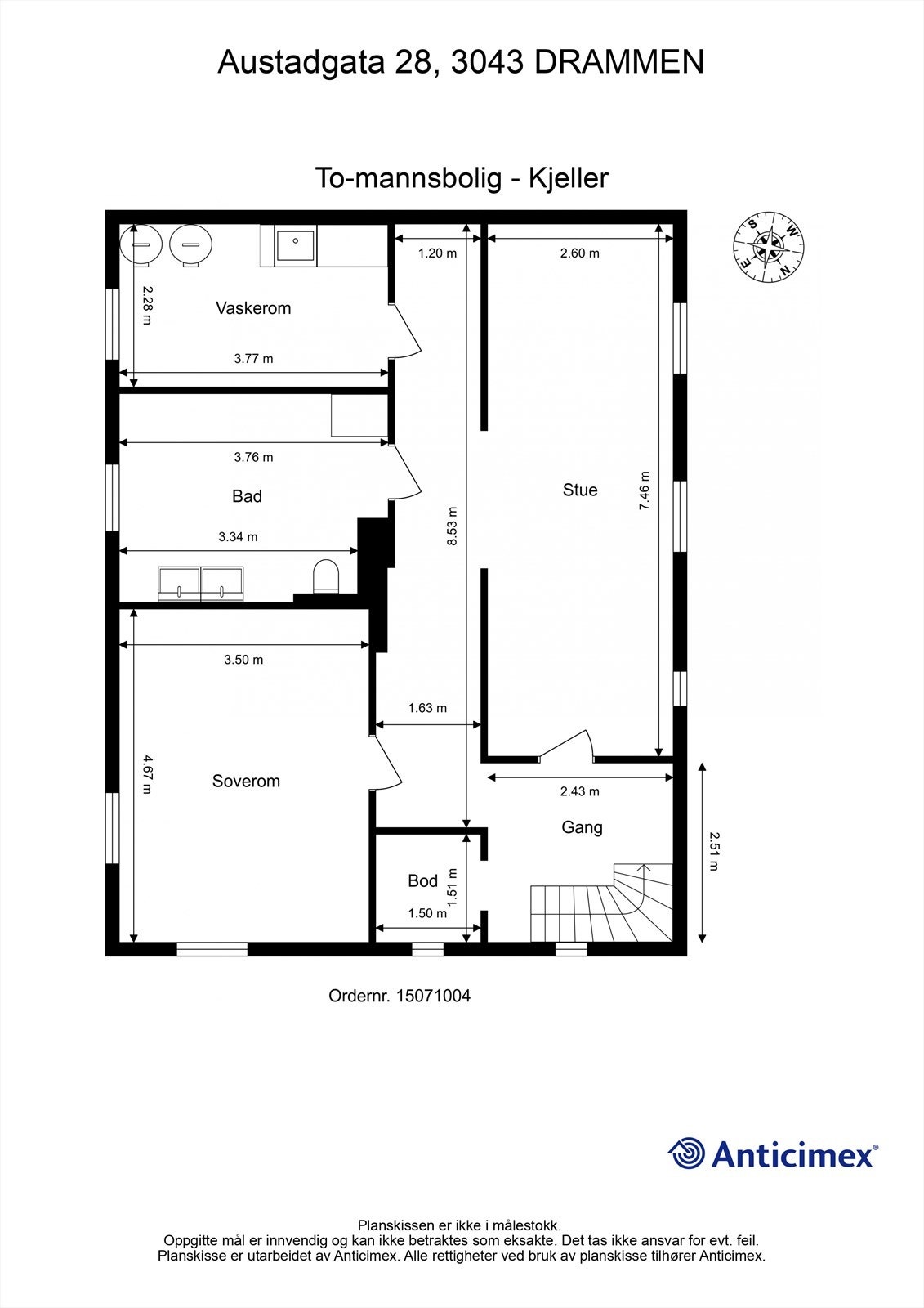
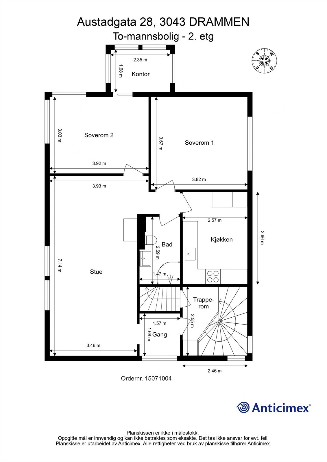
- 276 m² (BRA-i)
- Bruksareal
- 308 m²
- Eksternt bruksareal
- 32 m² (BRA-e)
- Balkong/Terrasse
- 23 m² (TBA)
- Etasje
- 2
- Byggeår
- 1936
- Energimerking
- F - Oransje
- Rom
- 6
- Tomteareal
- 636 m² (eiet)
Fasiliteter
Balkong/Terrasse
Barnevennlig
Bredbåndstilknytning
Garasje/P-plass
Hage
Kjæledyr tillatt
Ingen gjenboere
Kabel-TV
Offentlig vann/kloakk
Parkett
Peis/Ildsted
Rolig
Sentralt
Utvidelsesmuligheter
Turterreng
Visning
søndag, 11. januar
12:00 – 13:00
For å delta på visning, ber vi om at du melder deg på. Da sikrer vi at du får nødvendig informasjon og at det er satt av tilstrekkelig med tid. Kontakt megler dersom annet tidspunkt ønskes. Husk å lese salgsoppgaven før visningen, så du stiller forberedt. Visning utgår dersom det ikke er noen påmeldte. Ønsker du kun å bli holdt orientert, kan du fra eiendommens hjemmeside få varsel om solgtpris, eller kontakte megler.
VisningspåmeldingOm boligen
Austadgata 28 - Hel horisontaldelt tomannsbolig
- 2 separate enheter med eget inngangsparti
- Gode leieinntekter
- Flat tomt med flotte plenarealer og gode solforhold
- Overbygget paviljong på ca. 23 kvm
- Romslig dobbelgarasje med innlagt strøm
- Innredet og renovert kjeller med stue, bad og vaskerom fra 2025
- Fin beliggenhet i et veletablert og sentrumsnært boligområde
- Kort gangavstand til strømsø kjøpesenter og Marienlystområdet
- Kort gangavstand til bussforbindelser med hyppige avganger
- Under 1 km til flere barnehager samt barne- og ungdomsskole
Velkommen til visning!
NB: Knappen for å vise hele beskrivelsen har kun en visuell effekt.
NB: Knappen for å vise hele beskrivelsen har kun en visuell effekt.
Salgsoppgaven beskriver vesentlig og lovpålagt informasjon om eiendommen
Se komplett salgsoppgaveNyttige lenker
Nærområdet
Krogsveen Drammen
Velkommen til en enklere boligreise.
Annonseinformasjon
| FINN-kode | 417861516 |
|---|---|
| Sist endret | 03. jan. 2026 09:55 |
| Referanse | KR20.24423 |
Annonsene kan være mangelfulle i forhold til lovpålagt opplysningsplikt. Før bindende avtale inngås oppfordres interessenter til å innhente komplett informasjon fra meglerforetaket, selger eller utleier.








































