Bildegalleri

Velkommen til Vogts gate 11!
Solgt
Øvre Grünerløkka
Pen og gjennomgående 2-roms i klassisk bygård. Stilrent bad oppgradert i 2020. IN-ordning. V.vann og internett inkl.
Prisantydning3 800 000 kr
Nøkkelinfo
- Boligtype
- Leilighet
- Eieform
- Andel
- Soverom
- 1
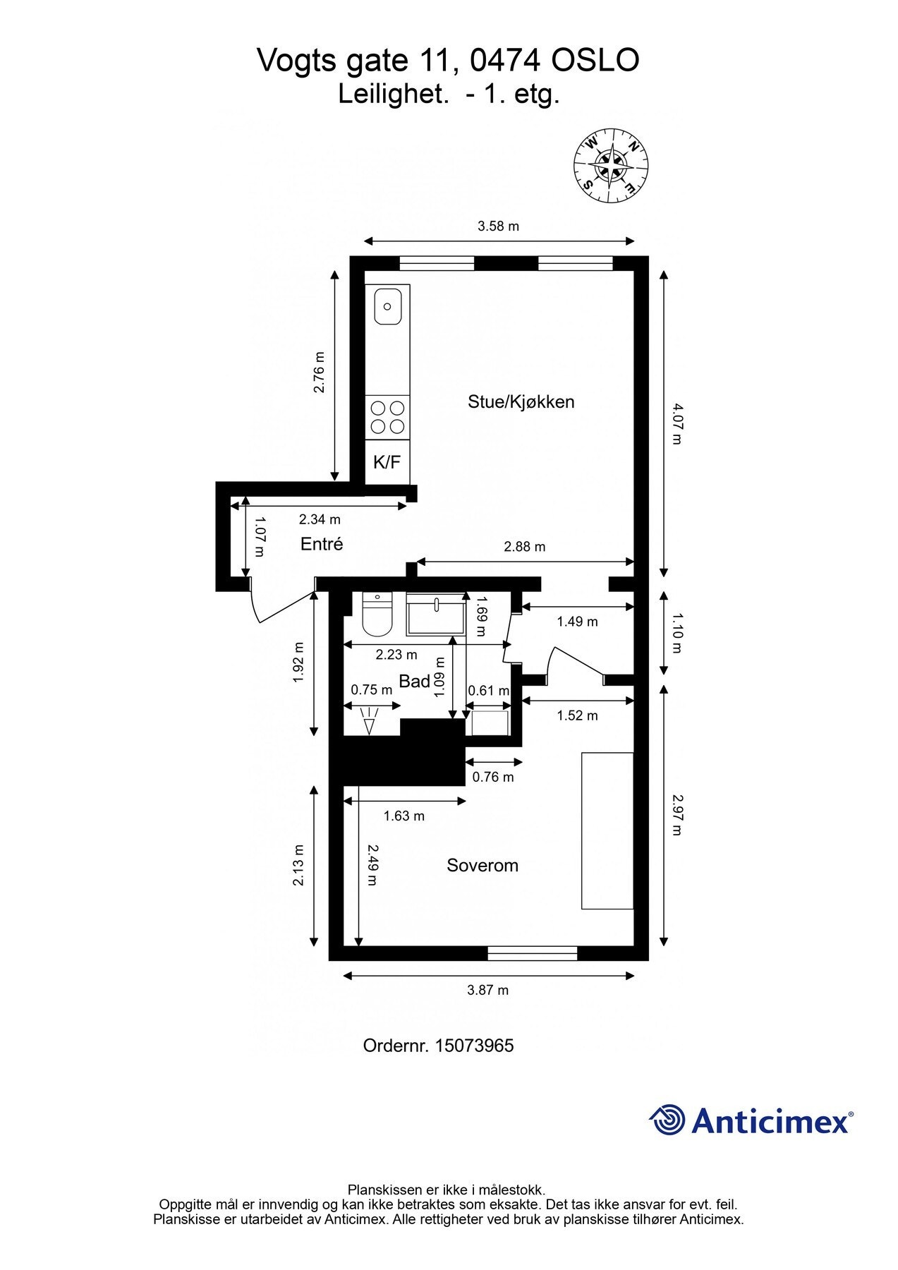
- Internt bruksareal
- 36 m² (BRA-i)
- Bruksareal
- 38 m²
- Eksternt bruksareal
- 2 m² (BRA-e)
- Etasje
- 1
- Byggeår
- 1898
- Energimerking
- G - Rød
- Rom
- 2
- Tomteareal
- 251 m² (eiet)
Fasiliteter
Kabel-TV
Offentlig vann/kloakk
Parkett
Sentralt
Bredbåndstilknytning
Moderne
Rolig
Om boligen
IN-ordning - Ved innfrielse av IN-lånet av fellesgjeld går felleskostnader ned til 5548,- pr. md. pt.
__
Vogts gate 11 - Attraktivt beliggende på Øvre Grünerløkka finner du denne hyggelige og klassiske leiligheten med delikate farger, god takhøyde og fin standard.
God planløsning med en lys stue og et tidløst kjøkken i åpen løsning. Det er plass til både spisegruppe, sofa og annen ønsket innredning. Videre et lekkert baderom oppgradert i 2020 og et romslig soverom ved mot en rolig, skjermet og frodig bakgård.
Her bor du i idylliske omgivelser på øvre Grünerløkka - rett ved Oslos mest yrende kaféliv, og bydelens grønne lunger, samtidig med et rikt kollektivtilbud.
- Pen og gjennomgående 2-roms i meget sentrale omgivelser
- Stilrent baderom med gulvvarme og opplegg for vaskemaskin
- Soverom mot bakgård med mye skapplass
- Nyslipte gulv
- Varmtvann, tv og internett inkl.
- To boder (loft + kjeller)
- Vakker, skjermet bakgård med sittegrupper, plen og sykkelparkering
__
Vogts gate 11 - Attraktivt beliggende på Øvre Grünerløkka finner du denne hyggelige og klassiske leiligheten med delikate farger, god takhøyde og fin standard.
God planløsning med en lys stue og et tidløst kjøkken i åpen løsning. Det er plass til både spisegruppe, sofa og annen ønsket innredning. Videre et lekkert baderom oppgradert i 2020 og et romslig soverom ved mot en rolig, skjermet og frodig bakgård.
Her bor du i idylliske omgivelser på øvre Grünerløkka - rett ved Oslos mest yrende kaféliv, og bydelens grønne lunger, samtidig med et rikt kollektivtilbud.
- Pen og gjennomgående 2-roms i meget sentrale omgivelser
- Stilrent baderom med gulvvarme og opplegg for vaskemaskin
- Soverom mot bakgård med mye skapplass
- Nyslipte gulv
- Varmtvann, tv og internett inkl.
- To boder (loft + kjeller)
- Vakker, skjermet bakgård med sittegrupper, plen og sykkelparkering
NB: Knappen for å vise hele beskrivelsen har kun en visuell effekt.
NB: Knappen for å vise hele beskrivelsen har kun en visuell effekt.
Salgsoppgaven beskriver vesentlig og lovpålagt informasjon om eiendommen
Se komplett salgsoppgaveNyttige lenker
Nærområdet
EIE eiendomsmegling Majorstuen & St. Hanshaugen
Annonseinformasjon
| FINN-kode | 417861070 |
|---|---|
| Sist endret | 21. aug. 2025 16:36 |
| Referanse | 25251229 |
Annonsene kan være mangelfulle i forhold til lovpålagt opplysningsplikt. Før bindende avtale inngås oppfordres interessenter til å innhente komplett informasjon fra meglerforetaket, selger eller utleier.





























