Bildegalleri

Nordvik Bolig v/Sebastian Chodkowski ønsker velkommen til Grefsenveien 48! Foto: Stefan Borup
Storo / Grefsen
Moderne 4-Roms selveier - Kjøkken 2025 og bad 2017 - Terrasse på 17m² - V.vann inkl - Godt investeringsobjekt!
Prisantydning6 990 000 kr
Nøkkelinfo
- Boligtype
- Leilighet
- Eieform
- Eier (Selveier)
- Soverom
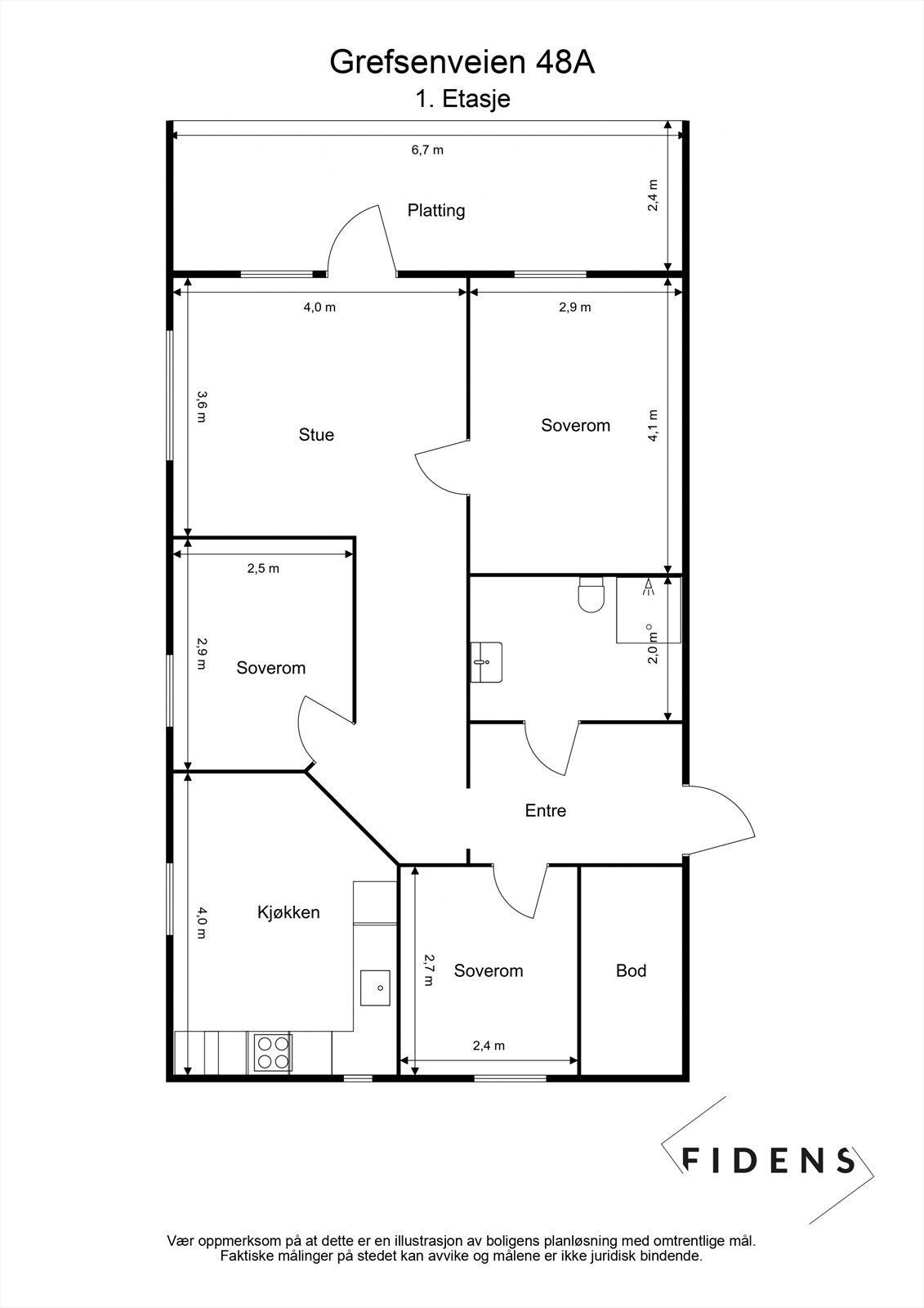
- 3
- Internt bruksareal
- 77 m² (BRA-i)
- Bruksareal
- 81 m²
- Eksternt bruksareal
- 4 m² (BRA-e)
- Balkong/Terrasse
- 17 m² (TBA)
- Etasje
- 1
- Byggeår
- 1996
- Energimerking
- E - Rød
- Rom
- 4
- Tomteareal
- 3 169 m² (eiet)
Fasiliteter
Balkong/Terrasse
Barnevennlig
Bredbåndstilknytning
Heis
Kjæledyr tillatt
Kabel-TV
Offentlig vann/kloakk
Parkett
Rolig
Sentralt
Turterreng
Om boligen
- Godt investeringsobjekt / Nær BI
- Store deler av leiligheten er modernisert i 2025 (se mer info i salgsoppgaven)
- Lys og gjennomgående
- Kvalitetskjøkken fra JKE: En perfekt kombinasjon av Stil og Funksjonalitet (2025)
- Alle hvitevarer er nye og inkludert 2025
- Meget pent flislagt bad/wc renovert i regi av sameiet i 2017 inkl. rørfornying
- Byttet dusjvegger, dusjgarnytyr og baderomsinnredning i 2025
- Stor og skjermet terrasse på 17m²
- 3 gode soverom
- Varmtvann, TV og internett inkl.
- Innvendig bod i leiligheten på ca. 3 m² og bod i kjelleren på 4 m²
- Delvis oppgradert el-anlegg fra Storo Elektro
- Ingen forkjøpsrett
- Sentral og attraktiv beliggenhet
- Den sentrale beliggenheten gir kort vei til kollektivtransport og dagligvarebutikker
- IN-ordning på deler av fellesgjelden
- Store deler av leiligheten er modernisert i 2025 (se mer info i salgsoppgaven)
- Lys og gjennomgående
- Kvalitetskjøkken fra JKE: En perfekt kombinasjon av Stil og Funksjonalitet (2025)
- Alle hvitevarer er nye og inkludert 2025
- Meget pent flislagt bad/wc renovert i regi av sameiet i 2017 inkl. rørfornying
- Byttet dusjvegger, dusjgarnytyr og baderomsinnredning i 2025
- Stor og skjermet terrasse på 17m²
- 3 gode soverom
- Varmtvann, TV og internett inkl.
- Innvendig bod i leiligheten på ca. 3 m² og bod i kjelleren på 4 m²
- Delvis oppgradert el-anlegg fra Storo Elektro
- Ingen forkjøpsrett
- Sentral og attraktiv beliggenhet
- Den sentrale beliggenheten gir kort vei til kollektivtransport og dagligvarebutikker
- IN-ordning på deler av fellesgjelden
NB: Knappen for å vise hele beskrivelsen har kun en visuell effekt.
NB: Knappen for å vise hele beskrivelsen har kun en visuell effekt.
Salgsoppgaven beskriver vesentlig og lovpålagt informasjon om eiendommen
Se komplett salgsoppgaveNyttige lenker
Nærområdet
Nordvik Lørenskog
Annonseinformasjon
| FINN-kode | 417273986 |
|---|---|
| Sist endret | 29. des. 2025 23:48 |
| Referanse | 65-0148/25 |
Annonsene kan være mangelfulle i forhold til lovpålagt opplysningsplikt. Før bindende avtale inngås oppfordres interessenter til å innhente komplett informasjon fra meglerforetaket, selger eller utleier.



































