Bildegalleri

Velkommen til Bentsebrugata 18F. Presentert av Schala & Partners v/ Alexander Lerberg.
Flott, gjennomgående og lys 2-roms | Modernisert i 2023 | Balkong m/ ettermiddagsol | V.vann/fyring inkludert
Nøkkelinfo
- Boligtype
- Leilighet
- Eieform
- Andel
- Soverom
- 1
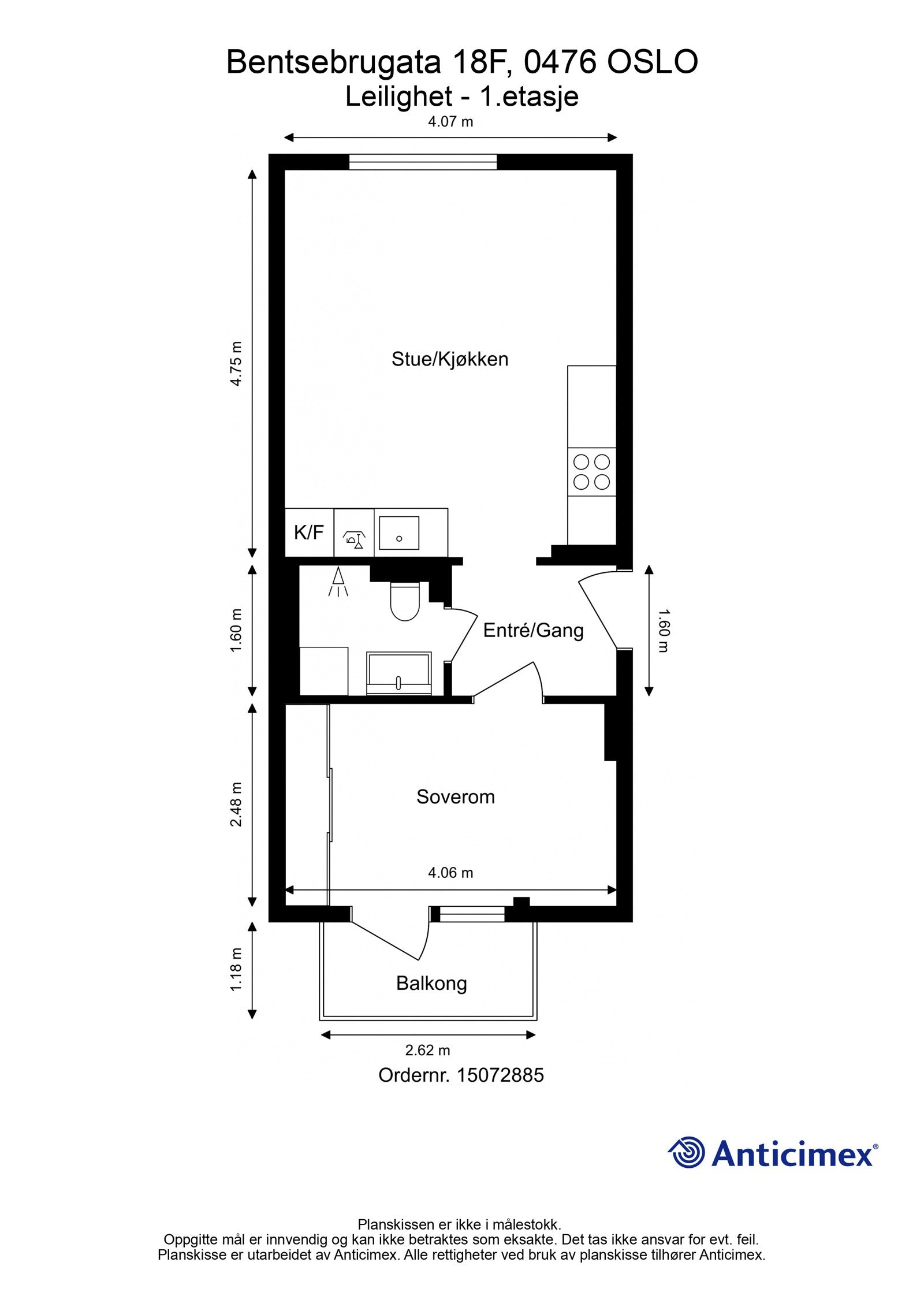
- Internt bruksareal
- 37 m² (BRA-i)
- Bruksareal
- 42 m²
- Eksternt bruksareal
- 5 m² (BRA-e)
- Balkong/Terrasse
- 3 m² (TBA)
- Etasje
- 1
- Byggeår
- 1938
- Energimerking
- B - Gul
- Rom
- 2
- Tomt
- Eiet
Fasiliteter
Om boligen
Velkommen til en lys og luftig 2-roms med nordvestvendt balkong vendt over Akerselven. Betydelig oppgradert i 2023 hvor alle overflater ble pusset opp, flyttet kjøkken og oppgradert baderom. Leiligheten har en god intern beliggenhet med inngangspart på enden av bygget.
Tilbaketrukket og rolig beliggenhet midt på Torshov, samtidig som du har alt av byens fasiliteter og et utbredt kollektivtilbud rett rundt hjørnet.
- Balkong med utsyn over Akerselven.
- Slipte originale tregulv og malte overflater i 2023.
- Oppgradert baderom i 2023.
- Nytt kjøkken fra Ikea i 2023.
- Oppvarming, varmtvann og bredbånd inkl.
- Leiligheten disponerer bod på loft og i kjeller
- Populært og veldrevet borettslag
- Grøntområder og store parkanlegg like utenfor døren
Salgsoppgaven beskriver vesentlig og lovpålagt informasjon om eiendommen
Se komplett salgsoppgaveNyttige lenker
Nærområdet
Schala & Partners Carl Berner
Prisstatistikk
Bentsebrugata 18F
på annonsen
prisantydning per kvadratmeter
Prisfordeling
Pris per m² ligger 17 648 kr over snittet for leiligheter i Sagene - Torshov.
Grafen viser antall leiligheter solgt i Sagene - Torshov siste året fordelt på pris per m² - totalt 2 434 leiligheter
Antall boliger
Kvadratmeterpris tilsvarer prisantydning pluss fellesgjeld per kvadratmeter (p-rom eller BRA-i). Prisene i grafen er avrundet til nærmeste 1000 kr.
Annonseinformasjon
| FINN-kode | 416724648 |
|---|---|
| Sist endret | 25. juli 2025 12:34 |
| Referanse | 17250090 |
Annonsene kan være mangelfulle i forhold til lovpålagt opplysningsplikt. Før bindende avtale inngås oppfordres interessenter til å innhente komplett informasjon fra meglerforetaket, selger eller utleier.






























